EasyManua.ls Logo

SA SA-033-M - Installation Électrique

SA SA-033-M
Print Icon
To Next Page IconTo Next Page
To Next Page IconTo Next Page
To Previous Page IconTo Previous Page
To Previous Page IconTo Previous Page
Loading...
36
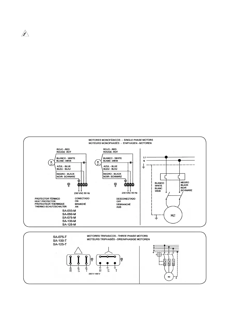
INSTALLATION ÉLECTRIQUE
Lʼinstallation électrique devra être dotée dʼun système de séparation multiple
disposant dʼune ouverture de contacts dʼau moins 3 mm.
Seul un câble rigide peut être utilisé pour le branchement au réseau. En cas
dʼutilisation dʼun câble souple pour le branchement au réseau, ce dernier devra
être doté de pôles pour sa connexion aux bornes du moteur de la pompe.
Les pompes monophasées sont dotées dʼun protecteur thermique incorporé.
Dans ce cas, une installation dotée dʼun interrupteur conforme au schéma des
« Branchements au réseau » sera sufsante.
Pour le moteur triphasé, lʼutilisation dʼun garde-moteur doté dʼune protection
magnétothermique est indispensable.
Quel que soit le type de pompe, lʼinstallation dʼun protecteur différentiel de 0.03 A,
est nécessaire en vue dʼassurer la protection contre les fuites électriques (indiqué
sur les schémas).
Les pompes triphasées doivent être dotées dʼune protection contre les surcharges
assurée par un interrupteur de sûreté pour le moteur.
Les données de régulation du relais thermique du moteur monophasé sont
simplement indicatives. En effet, le moteur incorpore un protecteur.
CONEXIONES ELÉCTRICAS - ELECTRICAL CONNECTIONS
BRANCHEMENTS ELÉCTRIQUES - ELEKTRISCHE ANSCHLÜSSE