EasyManua.ls Logo

Saftronics VG5 Series - Standard Connection Diagrams

Saftronics VG5 Series
115 pages
Print Icon
To Next Page IconTo Next Page
To Next Page IconTo Next Page
To Previous Page IconTo Previous Page
To Previous Page IconTo Previous Page
Loading...
VG5 Installation & Quick-Start Manual 21
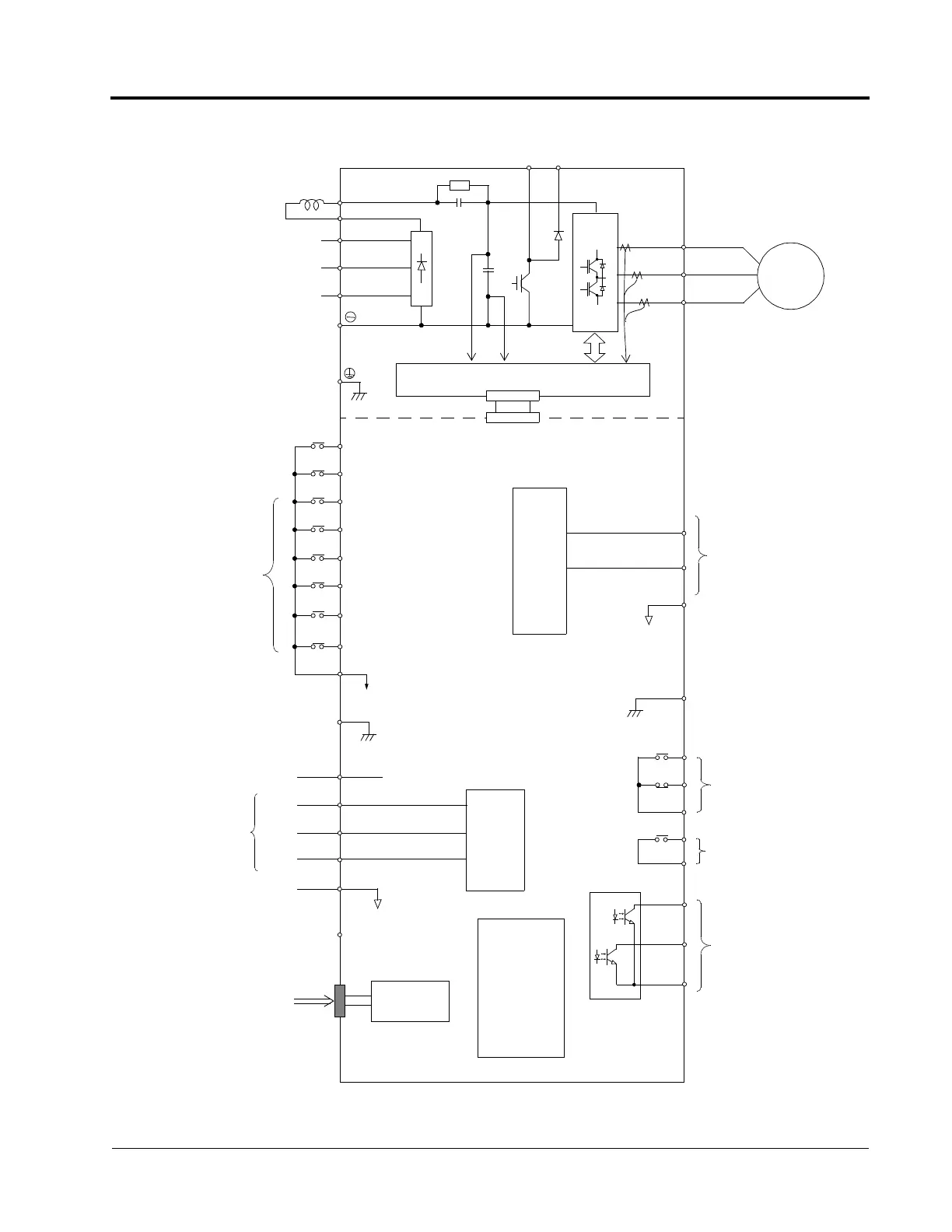
VG5 Standard Connection Diagram
Figure 9 VG5 Terminal Diagram - Model CIMR-VG5U4011
Digital
RS-232
Serial Port
Analog Inputs
(250)
Operator
(10-pin)
IM
1
2
B1 B2
1 - Forward Run when CLOSED
2 - Reverse Run when CLOSED
3
11 (Com)
4
5
6
15
13
14
17
PWM
Multi-Function
Inputs
12
(+15V, 20mA)
(20k)
(0V)
-10 to +10V
4 to 20mA
-10 to +10V23
(Com) 22
12
18
19
20
9
10
Multi-Function
Analog Outputs
Fault Contact Outputs
A/D
±11 bit
Gate Drive
T1
T2
T3
L1
L2
L3
7
8
16
(20k)
-10 to +10V
-10 to +10V21
250VAC, 1A or less
30VDC, 1A or less
33
(-15V, 20mA)
26
27
Multi-Function
PHC Outputs
48V, 50mA or less
25
Multi-Function
Contact Output
DC Link reactor
(optional)
Chapter 1 - Receiving & Installation
Wiring
Artisan Technology Group - Quality Instrumentation ... Guaranteed | (888) 88-SOURCE | www.artisantg.com

Related product manuals