EasyManua.ls Logo

Samson 3251-E - Page 44

Samson 3251-E
102 pages
Print Icon
To Next Page IconTo Next Page
To Next Page IconTo Next Page
To Previous Page IconTo Previous Page
To Previous Page IconTo Previous Page
Loading...
5-10 EB 8052-E EN
Installation
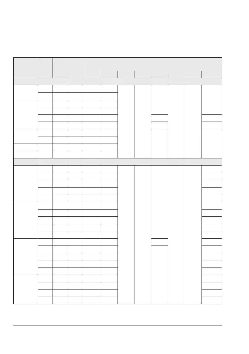
Table 5-4: Mounting dimensions for Types3271 and 3277 Pneumatic Actuators · See
Fig.5-5 for dimensional drawing
Actuator
Trav-
el
Actuator
preloading Dimension when the valve is closed [mm]
[cm²] [mm] [%] [mm] H
F
H
G
H
I
H
K
H
L
H
N
H
O
H
T
NPS3 to 4 · Special version
350
15 0 0 111 75
192 54
66 42
15 25 3.75 115 71
355
700
750
15 50 15 111 75
15 75 22.5 118.5 67.5
30 0 0 96 90 34.5 30
30 25 7.5 103.5 82.5 34.5 30
1000
1400-60
15 100 60 136 105
30 75 45 121 120
1400-120 30 75 90 231 195
2800 30 100 120 231 195
NPS6 · Standard version
355
700
750
15 0 0 263.5 67.5
192 87
48
105 70
145
15 50 15 256 75 145
15 75 22.5 263.5 67.5 145
30 0 0 241 90 120
30 25 7.5 248.5 82.5 120
1000
1400-60
15 100 60 226 105 103
30 0 0 211 120 88
30 75 45 211 120 88
60 0 0 166 165 58
60 25 15 181 150 58
1400-120
15 87.5 105 236 180 63 105
30 0 0 191 225
48
75
30 75 90 221 195 105
60 0 0 191 225 75
60 50 60 191 225 75
2800
5600
30 0 0 191 225 75
30 100 120 221 195 105
60 0 0 191 225 75
60 75 90 191 225 75

Table of Contents

Related product manuals