EasyManua.ls Logo

Samsung MX-C730 - Schematic Diagram; Overall Block Diagram

Samsung MX-C730
73 pages
Print Icon
To Next Page IconTo Next Page
To Next Page IconTo Next Page
To Previous Page IconTo Previous Page
To Previous Page IconTo Previous Page
Loading...
Samsung Electronics 7-1
Schematic Diagram
This Document can not be used without Samsung’s authorization.
7. Schematic Diagram
7-1 Overall Block Diagram
FL
FR
USB
JACK
AUX
JACK
ESS_P3
MPEG
LC87F5NC8A
MICOM
VFD
DISPLAY
H/P
JACK
MIC
JACK
TUNER
JACK
PT6324
VFD
DRIVER
MICOM- UPDATE
MPEG UPDATA
TAPE ASS'Y
SIGNAL
SIGNAL
SIGNAL
CtrL+SIGNAL
SIGNAL
Ctrl
VFD_CB
VFD_CLK
VFD_DATA
PS 9830
PWM
R SPK
H/P SIGNAL
M_STB
M_ACK
M_RXD
M-RESET
PRE-AMP
4560
AUDIO
AMP
IRS2053
PRE-AMP
4560
PRE-AMP
4560
Y,Pb,Pr
REC SIGNAL
POWER
IRF4019
X 2
POWER
IRF4019
X 2
L SPK
12.288 MHz
S M P S
AMP POWER
MAIN POWER
+5V
5V
PVDD
+PVDD
5. 6V(MICOM)
5.6V(p_sense)
12V (MOTOR)
+VFD
12V (TAPE)
VFD
VFD VP
P ON(5V)
74LCX04
PWM_FL_L+
PWM_FL_L-
PWM_FR_R-
PWM_FR_R+
TSD0
TSD1
TSD2
SPK FL
SPK_FR
SIGNAL
SIGNAL
Ctrl
TBCK
TWS
PS_SI
PS_CS
PWM_DATA
PWM_CLK
5 Tray
MECHA
AM 5766
DRAM IC
8082
DTF
8082
DTF
OPEN
CLOSE
RL+
RL-
TM+(OP)
TM- (CL)
CM-(DW)
CM+ (UP)
Ctrl
DATA
CtrL+SIGNAL
Ctrl
Motor Ctrl
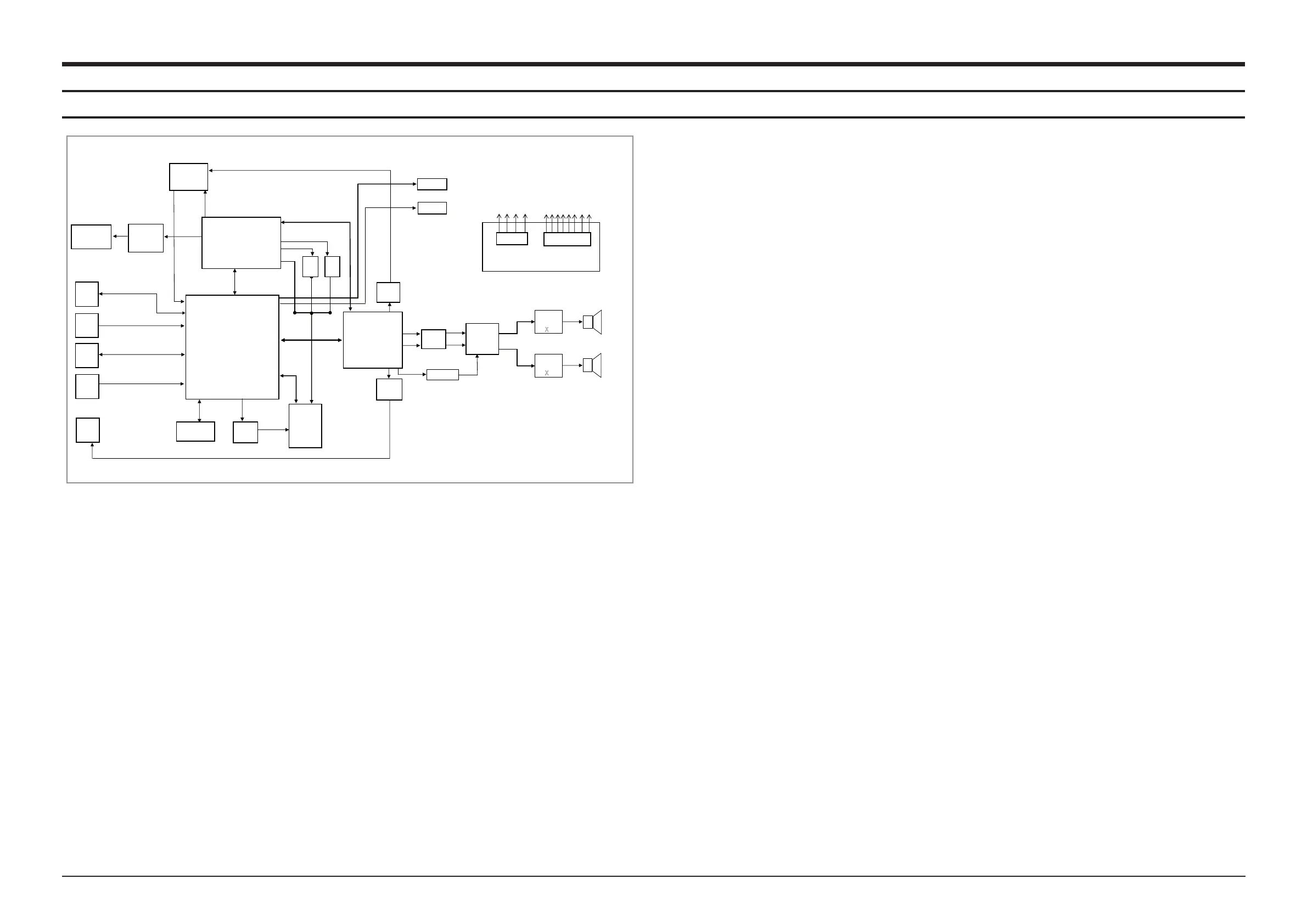
The Main Micom IC is LC87F5NC8A. It’s same as last year. MPEG chip is ES8391SCD. It’s upgrade version of
ES8390SCD.
The Main Micom control every IC in this PCB.
Video signal is come from DVD mecha and go to the MPEG IC. Then MPEG IC decode this signal to real video signal.
Audio signal is come from DVD mecha, TUNER, AUX, MIC. Then MPEG IC decode to digital I2S signal.
This signal goto the PS9830(PWM modulator) to convert PWM signal. PWM signal amplified at IR AMP stage and then
Low Pass Filtered. This signal is real audio signal.

Related product manuals