EasyManua.ls Logo

SANJIANG SEC3002 - Installation and Connections; Panels Interior

SANJIANG SEC3002
26 pages
Print Icon
To Next Page IconTo Next Page
To Next Page IconTo Next Page
To Previous Page IconTo Previous Page
To Previous Page IconTo Previous Page
Loading...
SEC3002 FIRE ALARM CONTROL PANEL
Page 4 of 24
3. Installation and Connections
The panel is supplied with a mental detachable exterior door, a mental front panel for
operation and display, a mental back box and functional PCBs. Space is available inside the
panel for the rated capacity of VRLA backup batteries, an optional communication board and
additional loop board if applicable.
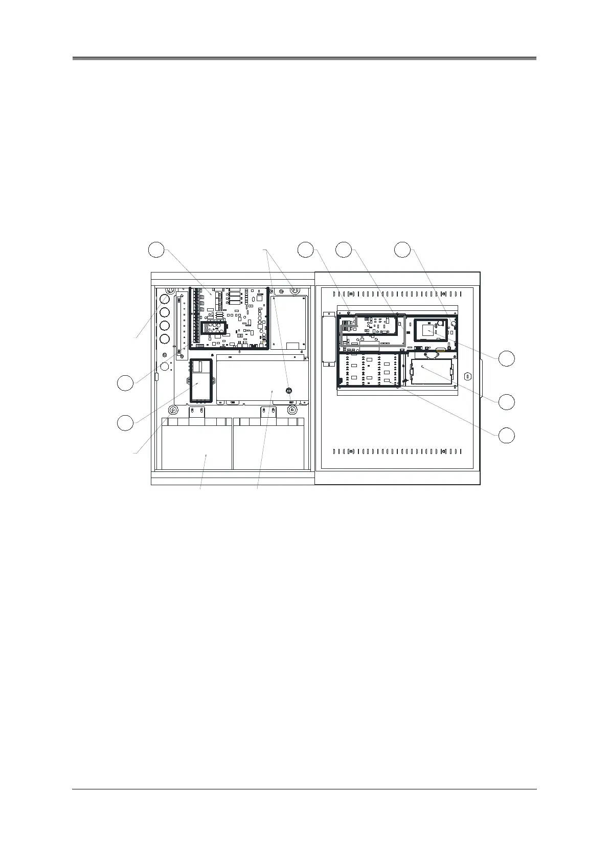
3.1 Panel’s interior
The interior can be accessed by the key of the front panel provided.
Mounting
hole
Mounting
hole
Mounting hole
1 3
4
5
67
8
2
9
10
11
IO Board Communication Board B-Board A-Board Printer
P.S.E Battery PSE Filter Loop SPU (surge protective unit)
Zone Indication and Control Panel LED_Button Board
In general, the SEC3002 consists of 2 sections:
1. The right internal section contains the main processor of A-Board, the I/O communication
interface of B-Board, the Buttons and LEDs Board, the ZCP board, the LCD and the Printer
mounting area.
2. The left internal section contains the P.S.E (power supply equipment), the IO Board, the PSE
Filter unit, the battery compartment, the mounting holes, cable knock-outs, as well as space
for additional loop board if applicable.
P.S.E (refer to the separate manual of SEC3002_PSE for more details)
The P.S.E is an integral unit that provides power both for the panel and the backup
rechargeable battery. And it is capable of monitoring the mains and battery states. With a 3A
fuse in it and a PSE Filter besides, the P.S.E is protected from momentary high level voltage.
B-Board
It provides connections for the main processor A-Board, the LED_Button Board, the Printer,

Related product manuals