EasyManua.ls Logo

Sanyo MDF-U76V - Inventory Rack (Option)

Sanyo MDF-U76V
42 pages
Print Icon
To Next Page IconTo Next Page
To Next Page IconTo Next Page
To Previous Page IconTo Previous Page
To Previous Page IconTo Previous Page
Loading...
37
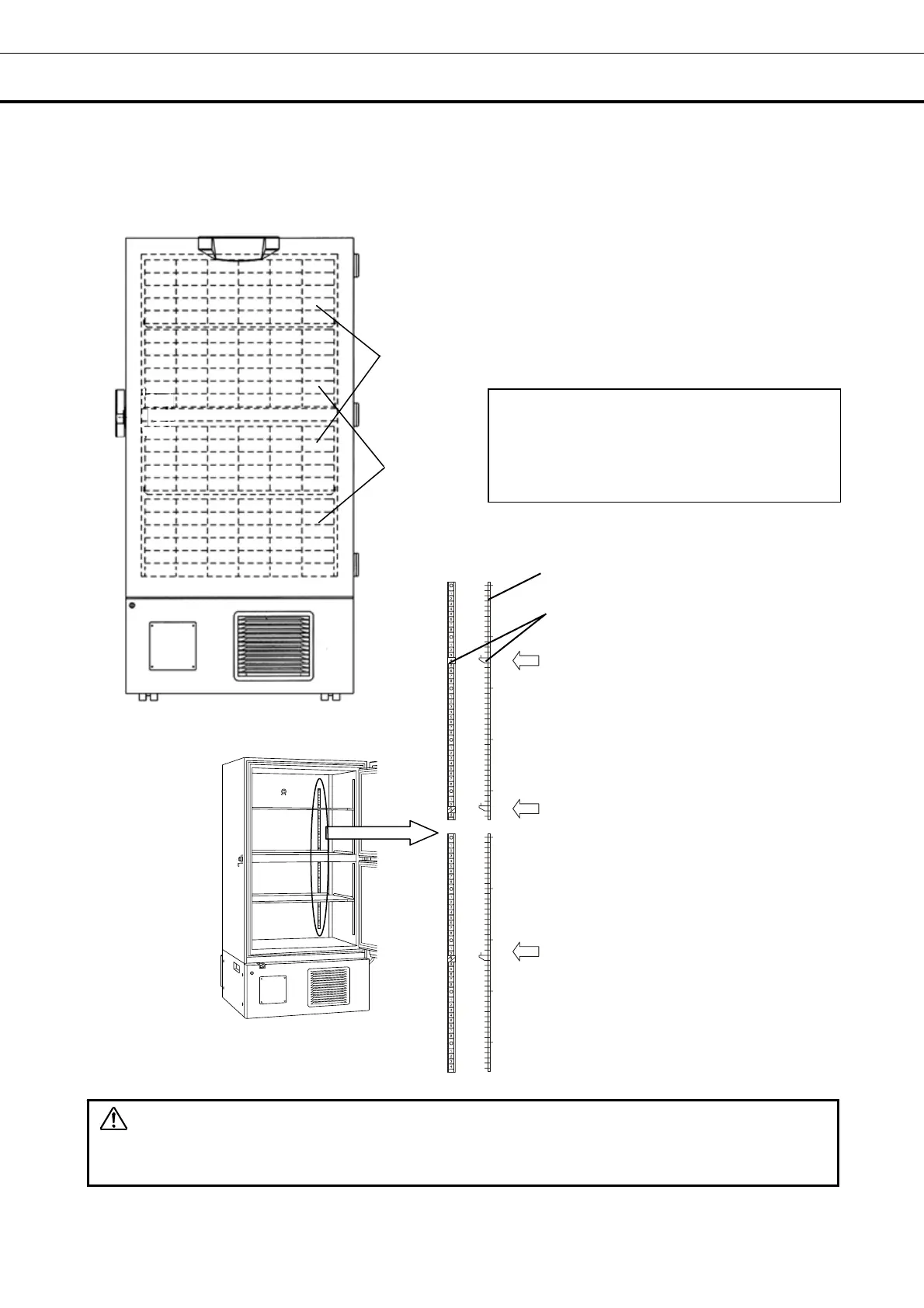
INVENTORY RACK (OPTION)
The optional inventory racks (IR-220U, IR-224U) are useful to store the precious materials in the
chamber effectively. When the racks are used, it is necessary to adjust the height of the shelves. Set
the shelf support as shown in the figure below.
WARNING
Fix the shelf supports and shelves securely. And store the inventory racks securely.
Incomplete installation may cause injury or damage.
NOTE
Only inventory rack IR-220U can be applied
when the independent inner door (MDF-7ID1)
is installed.
IR-220U
IR-224U
No. 4 under second screw from the
top (There is a mark which hollowed
at the shelf support front side.)
No. 3 under fifth screw from the top
(There is a mark which hollowed at
the shelf support front side.)
No. 3 under second screw from the
bottom (There is a mark which
hollowed at the shelf support front
side.)
Shelf support
Shelf stopper

Related product manuals