EasyManua.ls Logo

SATA AE5105 - Chapter Ⅷ Electrical Schematic Diagram

Default Icon
40 pages
Print Icon
To Next Page IconTo Next Page
To Next Page IconTo Next Page
To Previous Page IconTo Previous Page
To Previous Page IconTo Previous Page
Loading...
AE5105/AE5105-3
35
中文
EN
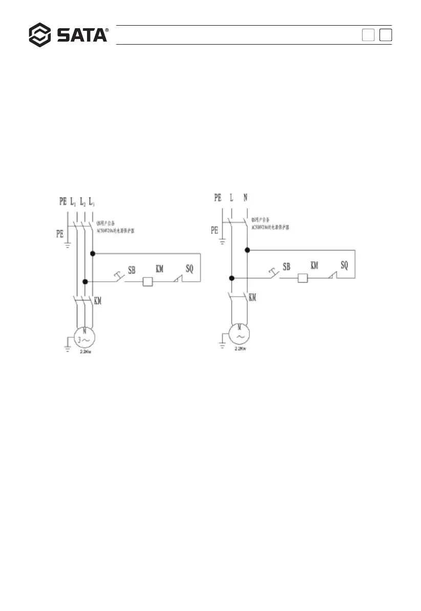
Chapter VIII Electrical Schematic Diagram
The power supply is introduced into the contactor entry terminal on the motor and connected to the control line
according to the electrical schematic, and the lift of the finite switch also needs to be connected to the limit switch.
The connection power supply needs to be introduced according to the purchased motor, which must be installed in
accordance with the relevant regulations of the local or relevant countries, and comply with the laws and regulations of
the relevant countries and regions.
Wiring Instructions:
- Single-phase 220V motors use three-wire copper core cable (fire, zero, ground) with a wire diameter of ≥4 mm and a
cable length of no more than 5 meters
- Three-phase 380V motors use four-wire copper core cables (fire, fire, fire, ground) with a wire diameter ≥ 2.5 mm , and
the cable length of no more than 5 meters
- The power cord on the motor is a debug guide cable, when formally installed, please connect the power cord directly
to the AC contactor
- The external power cord needs to be directly connected to the air-open (air-open specification C63), do not use a
socket to connect the wire
Note: Remove the cover of the electrical box on the hydraulic station and connect it according to the circuit diagram,
and require a power switch next to the lift to cut off the power supply in case of maintenance and emergency. Motor
damage due to incorrect wiring is not covered by the warranty. For questions related to electrical connections, please
contact the manufacturer. Make sure there is oil in the tank and do not run the hydraulic station in an oil-free state.
Press the rising button to test, if the motor is not running, or abnormal noise and heating occurs, at this time should be
stopped immediately and check whether the electrical connection is correct.