EasyManua.ls Logo

Savaria Infinity - Page 26

Default Icon
60 pages
Print Icon
To Next Page IconTo Next Page
To Next Page IconTo Next Page
To Previous Page IconTo Previous Page
To Previous Page IconTo Previous Page
Loading...
26
Infinity and Infinity HD Planning Guide Part No. 000783, 24-m09-2015
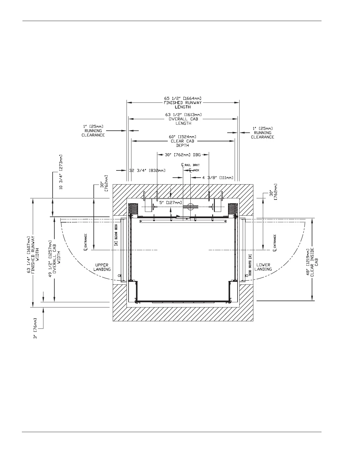
Plan view – Infinity HD 48” x 60” type 2 35-

Table of Contents

Other manuals for Savaria Infinity

Related product manuals