EasyManua.ls Logo

Savaria Infinity - Page 27

Default Icon
60 pages
Print Icon
To Next Page IconTo Next Page
To Next Page IconTo Next Page
To Previous Page IconTo Previous Page
To Previous Page IconTo Previous Page
Loading...
27
Part No. 000783, 24-m09-2015 Infinity and Infinity HD Planning Guide
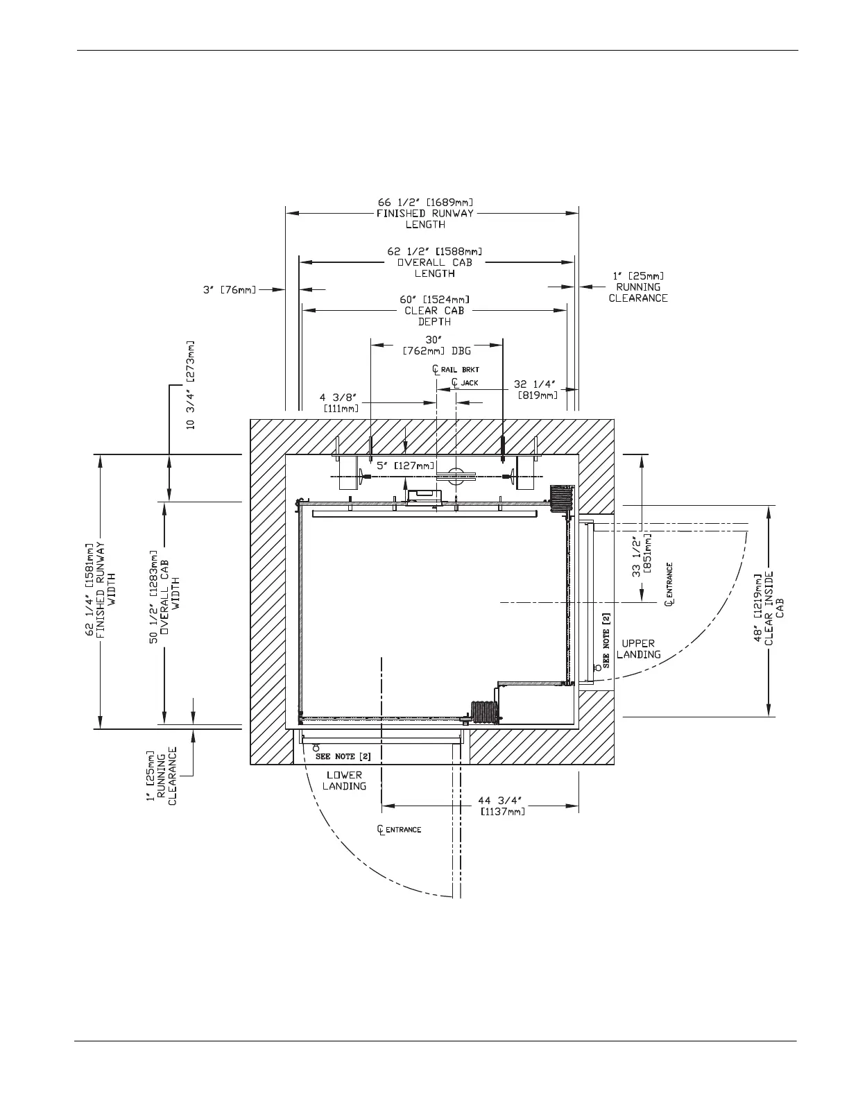
Plan view – Infinity HD 48” x 60” type 3 36-

Table of Contents

Other manuals for Savaria Infinity

Related product manuals