EasyManua.ls Logo

SBC PCD2.M120 - Page 46

Default Icon
288 pages
Print Icon
To Next Page IconTo Next Page
To Next Page IconTo Next Page
To Previous Page IconTo Previous Page
To Previous Page IconTo Previous Page
Loading...
Saia-Burgess Controls AG
Manual Manual PCD 1 / PCD 2 Series │ Document 26 / 737 EN22 │ 2013-11-26
CPUs and expansion housings
3-29
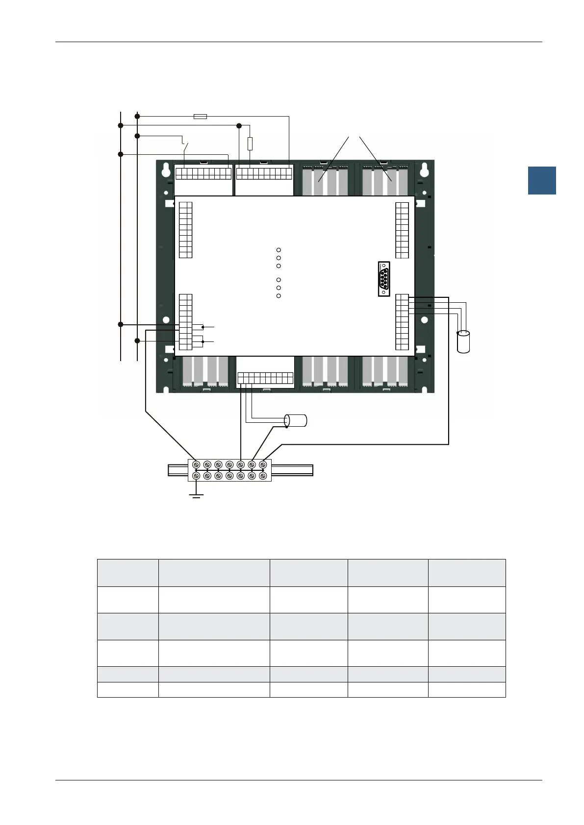
Power supply and connection plan
3
Star-shaped ground wire plan (alternative to earthing bar)
PGU
24 VDC
Battery
WD
Run
Halt
Error
CPU
Supply
0V +24 V
DC
1.5 mm
2
/ max. 25cm
1.5 mm
2
Exxx Axxx
Wxxx
Protective grounding clamp
_
_
_
_
+
+
+
Shielding and
grounding plate
1.5 mm
2
1.5 mm
2
The star-shaped ground wire plan should only be used where there is no earthing
bar.
Examples of ground wire terminals for 35 mm mounting rails
1)
Manufac-
turer
Connection type Type End plate End bracket/
end clamp
Weidmüller Screw connection WPE4
101 010 0000
Weidmüller Screwless spring clip ZPE4
163 208 0000
ZAP/TB4
1632090000
ZEW
9540000000
Wago Screwless cage clamp default:
281-107
grey: 281-301
orange: 281-302
6mm:249-117
10mm:249-116
Wieland Screw connection WKI4SL/35 AP2.5-4 grey 9708/2S35
Wieland Spring clip WKI4SL/35 APF2.5-4GN WEF1/35
1)DINEN60715TH35

Table of Contents

Related product manuals