EasyManua.ls Logo

SBM AMC 12 - Individual Regulation with MULTITHERM C or (AMC 78 to 116)

Default Icon
29 pages
Print Icon
To Next Page IconTo Next Page
To Next Page IconTo Next Page
To Previous Page IconTo Previous Page
To Previous Page IconTo Previous Page
Loading...
22
1 2 543
L (230V AC)
1 2 543
L (230V AC)
1 2 543
L (230V AC)
1 2 543
L (230V AC)
22°C
22°C
Heater 3
L (230V AC)
Neutal
3 4
5
21
Heater 2
L (230V AC)
Neutal
3 4
5
21
Heater 1
L (230V AC)
Neutal
3 4
5
21
1 2 3 4 5 6 7 8
ON
Neutre
aréotherme 1
Neutre
aréotherme 2
Neutre
aréotherme 3
Neutre
aréotherme 8
Max. 8 Aerothermes
Commutateur micro sur platine
dans les aérothermes.
Heater 1
Import
ant:
En régulation centralisée.
-Attribuer à chaque appareil un numéro propre l
de du micro commutateur S2 -Seulement sur l
p
ar
ei
l
N
1
S
3
e
n
p
o
si
ti
o
n
1,
s
ur
l
e
s
a
ut
re
s
e
n
Communication bus:
2 fils; basse tension
0
1
S2
S3
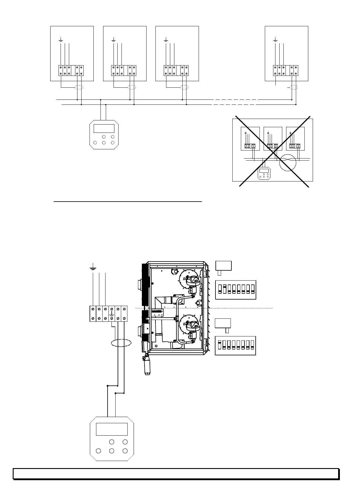
9.3 Individual regulation with MULTITHERM C or S
(only one unit of AMC 78 to 116)
- Connect the thermostat to the terminals 4 and 5 according to the scheme shown below
- Check the setting of the micro switches S2 and S3.
- The modification of the position of micro switches shall be done with the power supply off.
If it is not the case, the modification will not be taken into account by the appliance.
L N L N L N
S3
S2
S3
S2
22°C
1 2 3 4 5 6 7 8
ON
0
1
S2
S3
1 2 3 4 5 6 7 8
ON
0
1
1 2 543
L (230V AC)
Neutal
S2
S3
Heater 1
H
e
a
t
er
2
M
o
d
ule 1
1
2
Ruimtethermostaat
MTS, MTC of Interface print
Maxi = 8 Heaters AMC 12 to 58
Heater
1
Heater
2
Heater
3
Heater
8
Shielded cable special bus
Do not inverse the terminals 4 and 5 !
Bu
rner 1
Burner 2
Shielded cable special bus

Related product manuals