EasyManua.ls Logo

SBM AMC 12 - 10 Internal Electric Diagram; Warm Air Heaters AMC 12 to 58

Default Icon
29 pages
Print Icon
To Next Page IconTo Next Page
To Next Page IconTo Next Page
To Previous Page IconTo Previous Page
To Previous Page IconTo Previous Page
Loading...
24
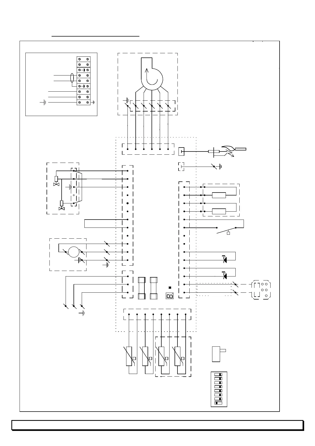
10. INTERNAL ELECTRIC DIAGRAM
10.1 AMC 12 to 58 warm air heaters
N
L
1
2
3
1
2
3
J2
341 9 10 122 7
5
11 6
8
J4
1
2
3
4
1
2
3
4
5
6
1
5
4
2
3
M2
1
5
2
6
3
7
4
8
-T
20K@25°C
-T
20K@25°C
-T
20K@25°C
5 61211 13 14
4
5
22°C
4
7
M1
T2
J6
J12
J9
1 2 3 1098
166HC
Get: MW
Date: 10-06-2009
Auth:
Ver:a
Title:
Nr.:
R108
HR-series 10... 60
J7
F2
F1
2 x 5AT
Sonde
température
ambiante à
l'aérotherme
Thermostat (bus)
LED 1
rouge
(opt.)
LED 2
vert
(opt)
vert/jaune
bleu
marron
noir
vert/jaune
gris
rouge
vert/jaune
bleu
noir
blanc
jaune
orange
blanc
violet
vert/jaune
bleu
noir
Neutre
Thermostat (bus)
Installateur
transparent
blanc
rouge
vert
Position micro commutateur (S2) standard sur 1 et S3 sur 1.
En régulation centralisée.
-Attribuer à chaque appareil un numéro propre l'aide du micro
commutateur S2 -Seulement sur l'appareil N 1 S3 en position
1, sur les autres en position 0
FR
1 2 3 4 5 6 7 8
ON
10
S3
S2
R2 R3
ver
jaune
marron
blanc
blanc
marron
protection
thermique
de l'échangeur
Reconnaissance
de l' appareil
Ventilateur
vanne gas
Bruleur ventilateur
1 2 3 4 5 6 7 8
ON
10
S3
S2
marche/arrêt setting
2
5
4
1
-T
20K@25°C
-T
20K@25°C
protection
thermique
de l'échangeur
flue/ abgas/ fumée
/rookgas sensor
12 11
dP
pressostat
1
2
5
43
L (230V AC)
22°C
Neutre
Thermostat (bus)
Installateur
12
11
Shield
Shield
To connect by an installer
Burner fan
Gas valve
Main fan
Temperature
sensor of the main
fan
Temperature
sensor of the
exhaust gases
Temperature
sensors of the
heat exchanger
To MULTITHERM
Setting of the micro switches S2 and S3 :
see paragraphs 9.1 and 9.2
Multi Therm
Pressure
switch
Reconnaissance
du brûleur
Control board
Ionisation/ignition electrode
Rearming button
Yellow/green
Grey
Red
White
Yellow
Orange
Black
Blue
Blue
Yellow/green
Black
Black
Yellow/green
Maroon
Blue
Yellow/green
Maroon
White
Maroon
White
Green
Yellow
red
White
Violet
Transparent
Red
White
Green
Appliance
identification

Related product manuals