EasyManua.ls Logo

SBM AMC 12 - 9 REGULATION EXAMPLES Pages 21 to; Centralized Regulation with MULTITHERM C or S (AMC 78 to 116); Regulation with a Building Management System (BMS)

Default Icon
29 pages
Print Icon
To Next Page IconTo Next Page
To Next Page IconTo Next Page
To Previous Page IconTo Previous Page
To Previous Page IconTo Previous Page
Loading...
23
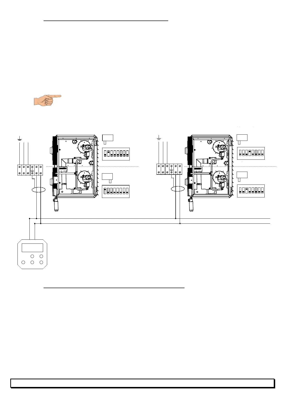
9.4 Centralized regulation with MULTITHERM C or S
(many warm air heaters AMC 78 to 116)
The thermostat can regulate from 1 to 4 heaters AMC 78 to 116 maximum, whether
8 burners.
The modification of the position of micro switches shall be done with the power supply off. If it is not
the case, the modification will not be taken into account by the appliance.
Proceed as following :
- Connect the thermostat to the terminals 4 and 5 of the heaters (in parallel).
- Assign to each unit a proper number from 1 to 8 by switching the micro switch on ON (to set with
S2 on the control board)
- On the appliance where it is assigned the number 1, the micro switch S3 shall be on position 1.
On the other heaters, the S3 switch will be on position 0.
If the micro switch S3 of the MULTITHERM supply is in position 1 in several warm air
heaters, the system will not work.
The operation of the MULTITHERM stay the same that in the case of centralized regulation.
L N L N L N
S3
S2
S3
S2
L N
L N
L N
S3
S2
S3
S2
22°C
1 2 3 4 5 6 7 8
ON
0
1
S2
S3
1 2 3 4 5 6 7 8
ON
0
1
1 2 543
L (230V AC)
Neutal
1 2 543
L (230V AC)
Neutal
S2
S3
1 2 3 4 5 6 7 8
ON
0
1
1 2 3 4 5 6 7 8
ON
0
1
S2
S2
S3
S3
Heater 1
Heater 2
Heater 3
H
e
a
t
er
4
M
o
d
ule 1
M
o
d
ule 2
1
2
3
4
max. 4 modules /
max. 8 heaters
Ruimtethermostaat
MTS, MTC of Interface print
9.5 Regulation from a Building Management System (BMS)
The Interface Board (option) allow regulating warm air heaters AM helps to a Building Management
System (BMS) using 0-10V signal (Ref SBM: 5760003 INTERFACE BOARD MULTITHERM-BMS).
For the supply of the interface, please contact SBM.
Burner 1
Burner 2
Burner 3
Burner 4
Heater
1
Heater
2
4 Warm air heaters AMC 78 to 116
maxi,
Shielded cable special bus

Related product manuals