EasyManua.ls Logo

Schweitzer Engineering Laboratories SEL-787-3 - Wiring Diagram for SEL-787-3 E Model Option

Schweitzer Engineering Laboratories SEL-787-3
32 pages
Print Icon
To Next Page IconTo Next Page
To Next Page IconTo Next Page
To Previous Page IconTo Previous Page
To Previous Page IconTo Previous Page
Loading...
SEL-787-3, -4 Data Sheet Schweitzer Engineering Laboratories, Inc.
20
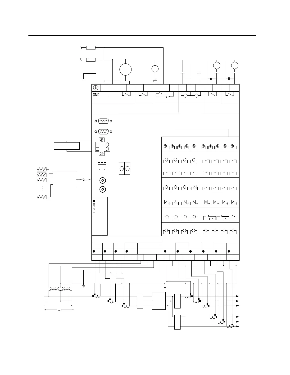
Wiring Diagram for SEL-787-3E Model Option
Figure 17 Wiring Diagram SEL-787-3E Transformer Protection Relay
RX
TX
5 4 3 2 1
9 8 7 6
5 4 3 2 1
9 8 7 6
Port 4 DeviceNet
(Optional)
V–
CAN_L
SHIELD
CAN_H
V+
A
C
B
Typical Wiring
Prot.
Alarm
OUT101
OUT102
OUT103
A01 A02 A03 A04 A05 A06 A07 A08 A09 A10 A11 A12 C01 C02 C03 C04
IRIG-B
-/N+/H
IAW1 IBW1 ICW1 IAW2
TX+
TX–
RX+
RX–
SHIELD
(Optional)
Port 4A EIA-485
IRIG-B Time Source
1000 m
F
O Cable**
1–12 RTDs
Front
Port 3
86T
Optional Input/Output Cards
+
+
+
+
+
+
+
+
+
+
10 RTDs
4 Digital Inputs / 4 Digital Outputs
3 Digital Inputs / 4 Digital Outputs / 1 Analog Output
4 Analog Inputs / 4 Analog Outputs
8 Digital Inputs
8 Digital Outputs
(+)
(–)
86T
IN101 IN102
CONTROL INPUTSINPUT POWER
OUTPUT CONTACTS
SEL-787-3E
Transformer Protection Relay
** SEL Fiber-Optic Cables
240-1506 — 1 m (3.3 ft) ST/ST
240-1507 — 5 m (16.4 ft) ST/ST
240-1508 — 15 m (49.2 ft) ST/ST
Other lengths available by request
Power Supply
110–240 Vac
24–48 Vdc
110–250 Vdc
(Optional
485)
SEL 2812 compatible ST
Fiber-Optic Serial Port
(Optional)
52-3
OUT301
OUT302
OUTPUT CONTACTS
(Optional)
TC
TC
IBW2 ICW2
(+) (+)(–) (–)
86T
86T
Optional Ethernet (single or dual)
OR
PHASE AND NEUTRAL CURRENTS AND VOLTAGE INPUTS
CURRENT INPUTS
Open Delta PT
VC N
52-1
a
(–)(+) (+)
SEL-2600 Series
External RTD Module
With ST Option
(Optional)
E01
E02 E03 E04
E11
E12
Z01 Z04 Z06 Z07Z05Z02
Z03
Z08 Z09 Z10 Z11 Z12
E10E09E08E07E06E05
ICW3 IN VA VB
52-2
a
b
c
a
b
c
XFMR
52-1
52-2
a
52-1
a
52-2
a
A diagram for a four-wire wye
connection is also available in
the instruction manual
4 Digital Inputs / 3 Digital Outputs
IAW3 IBW3

Related product manuals