EasyManua.ls Logo

Scion 2006 xA - Page 199

Scion 2006 xA
231 pages
Print Icon
To Next Page IconTo Next Page
To Next Page IconTo Next Page
To Previous Page IconTo Previous Page
To Previous Page IconTo Previous Page
Loading...
SCION xA (EM00D0U)
188
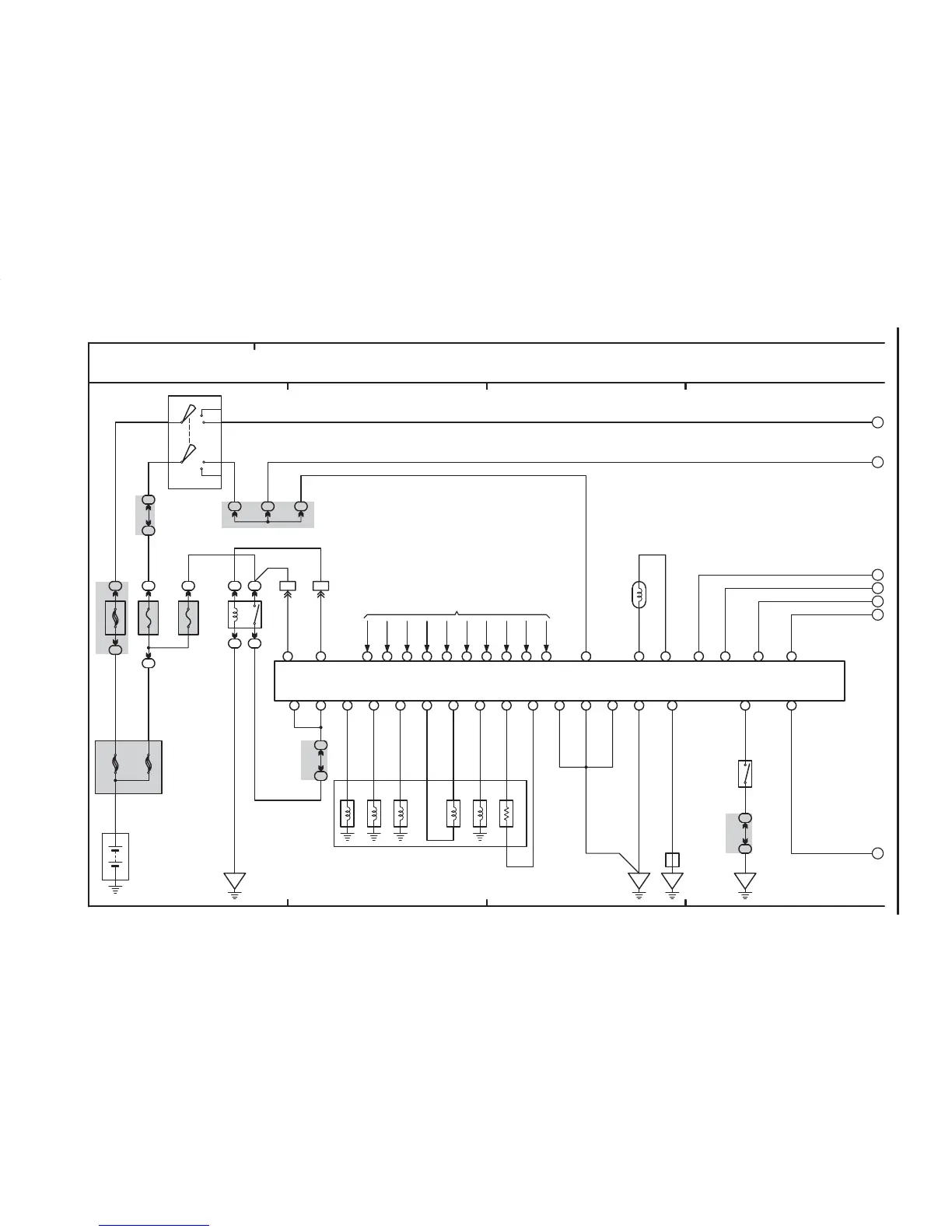
M OVERALL ELECTRICAL WIRING DIAGRAM
1
2
3
4
(
Cont. next page
)(
Cont. next page
)
T 2
O 2
E 1
E 3
(
A
)
, E 4
(
B
)
, E 5
(
C
)
, E 6
(
D
)
OC1–OC1+
A12A13
C14C
C17
A
4C
3 xA
1
2
60A MAIN
42
W–R
W–L
W–L
W–R B
B–G
71A
11O
2
15A AM2
120A ALT
2
AM256
2AM1
ST2
IG2
IG1
ACC
1
1O8
1C1
Power Source Electronically Controlled Transmission and A/T Indicator
2
1
1
2
3
5
2
15A EFI
22
22
1O6
ED
Front Fender
Apron LH
1H8
1A11
1D 9B B819B12B B13 11 B 24 B
3D
A28
13 ID3
35 B B27
2
1
7A 6A 4B
EC
Cylinder Head
6
50A AM1
4
2
IE
Left Kick Panel
1P13
1O2
9C 21C 11C10 C
W–G
W–R
B–R
W–L
W
G
Y–G
BR
BR
BR
BR
BR
BR
W–BW–B
W–B
B–Y
W–B
B
B–R
R
B
B–R GR
BR
BB–Y
B
B–Y
51023841
6
18 A 20 A 32 A
B–Y
EFI Relay
G–B
2
22
W–B
1
8C
S1 S2 ST SLT+ SLT– SL THO
W
B
Y
G
LG
OO
GR
E2
BR
D3
+B S1 S2 ST SLT+ SLT– SL THO1 E2
BATT STP TC SPD VC VTA1 THW NT+ NT– L 2 D R
E01 E02 E03 E1 EC ODMS
Battery
1G8
F10
3
(
w/o VSC
)
(
w/ VSC
)
I10
G–W
G
R–Y
R–W
G–O
B–Y
G–W
G
R–Y
R–W G–O
ODLP
B–R
B–R
Electronically Controlled
Transmission Solenoid
Engine Control Module
Fusible Link Block
Ignition SW
O/D Main SW
Turbine Speed
Sensor
No. 1
No. 2
Engine Control System
<2–6><28><210><2–11><212>
12 D
STA
30 D
NSW
D8
MREL
2ID2
GR
1H7
B–R
D9
IGSW
B–R
IG
Right Kick
Panel
J 8
Junction
Connector
A
2D
+B2
B–R
A
B
C
D
E
F
G

Table of Contents

Other manuals for Scion 2006 xA

Related product manuals