EasyManua.ls Logo

Scion 2006 xA - Page 221

Scion 2006 xA
231 pages
Print Icon
To Next Page IconTo Next Page
To Next Page IconTo Next Page
To Previous Page IconTo Previous Page
To Previous Page IconTo Previous Page
Loading...
SCION xA (EM00D0U)
210
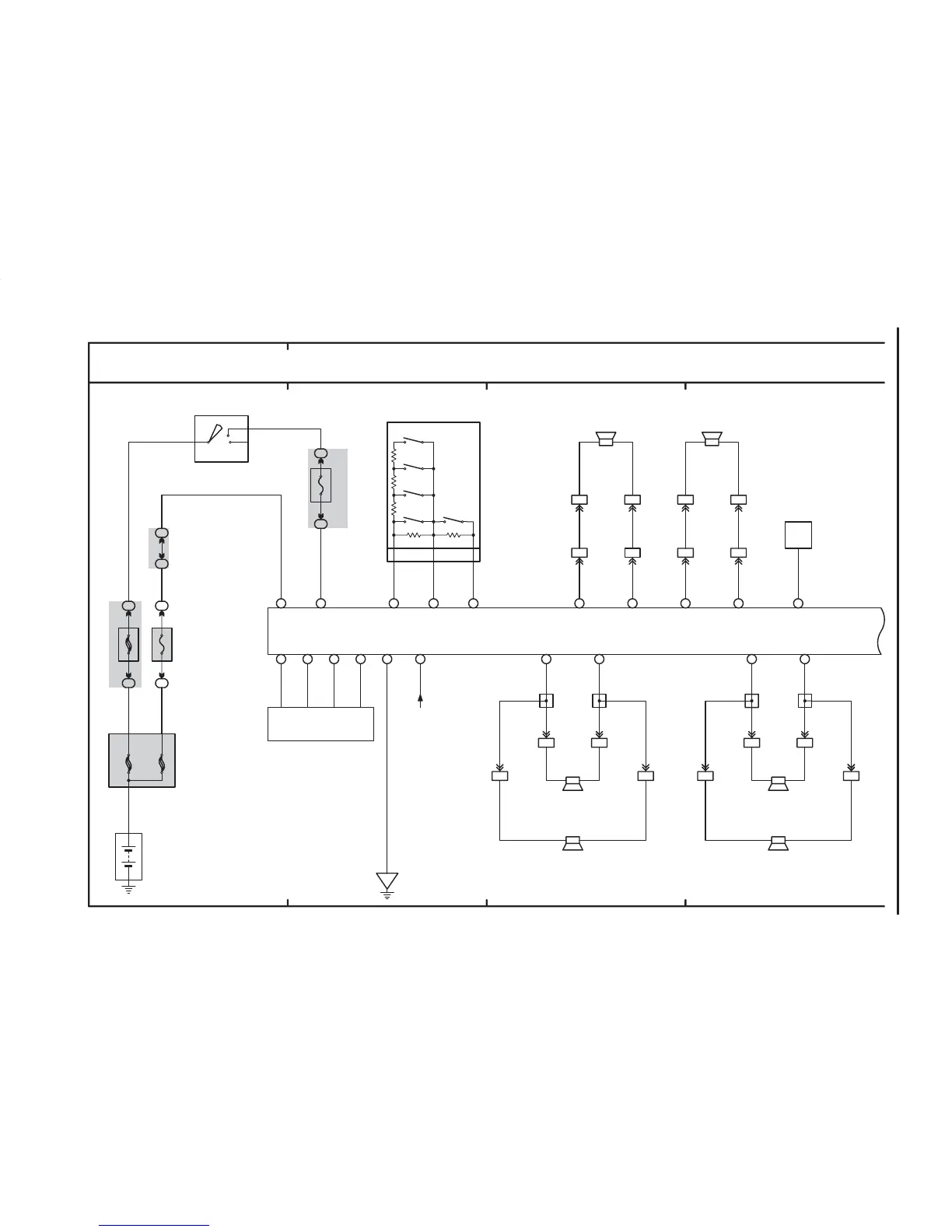
M OVERALL ELECTRICAL WIRING DIAGRAM
1
2
3
4
IB24
1
L–Y
IB2
B
Y
17 xA
60A MAIN
W–L
W–L
B
B–G
120A ALT
2
AM1 IG1
ACC
1
1O8
1C1
50A AM1
Battery
Power Source Audio System
15A DOME
2
1N3
1A4
1O3
15A
ACC
1N9
IF
RL–RL+
12
RR–RR+
W–BW–B
A6A2A31A
13
GR
L–Y
L–Y
I10
W–L
Y
B7
2
3
B
W
R
2B 6B
3B4B
ACCB
GND FL+ FL–
24
2
1
IB25
1122
R
W
5
IB212
12
P
V
BA1
F10
3
(
w/o VSC
)
(
w/ VSC
)
6 BA1 5 BB1 6 BB1
8 IA1 9 IA1
Y
B
W
R
R 9 R10
T 4
F13
R–L
R–B
ANT
B8
B
1
B
A14
R 2
(
A
)
, R 3
(
B
)
, R16
(
C
)
, R17
(
D
)
Antenna Amplifier
Fusible Link Block
Front Speaker LH
Ignition SW
Radio and Player
Rear Speaker LH Rear Speaker RH
Tweeter
LH
17C15C16C19C
ALO ARO ASGN AUXO
Stereo Jack Adaptor
S17
123
ALO ARO ASGN AUXO
B
R
L
Y
3C
SPD
V–W
Combination Meter
<18–5>
7C 8C6C
P
O
LG
SW1 SW2SWG
Instrument Panel Brace LH
D
D
Junction
Connector
J 3
D
V
B
B
B
11 IA1IA110 IA1
V
P
R–B
R–L
FR+ FR–
12
2B 5B
12
LG
L
2 IH2 1 IH2
T 5
F14
LG
L
Front Speaker RH
Tweeter
RH
LG
L
LG
L
IH2
A
A
CA
C
L
C
7
Junction
Connector
J 3
Junction
Connector
J 3
Junction
Connector
J 3
LG
P
6IH2
(
Cont. next page
)
SEEK+
SEEK–
VOL+
VOL–
MODE
12 10 11
S16
Spiral Cable
4

Table of Contents

Other manuals for Scion 2006 xA

Related product manuals