EasyManua.ls Logo

Scotsman MF 88 - Unit Dimensions; Machine Technical Specifications

Scotsman MF 88
21 pages
Print Icon
To Next Page IconTo Next Page
To Next Page IconTo Next Page
To Previous Page IconTo Previous Page
To Previous Page IconTo Previous Page
Loading...
Page 5
Page 5
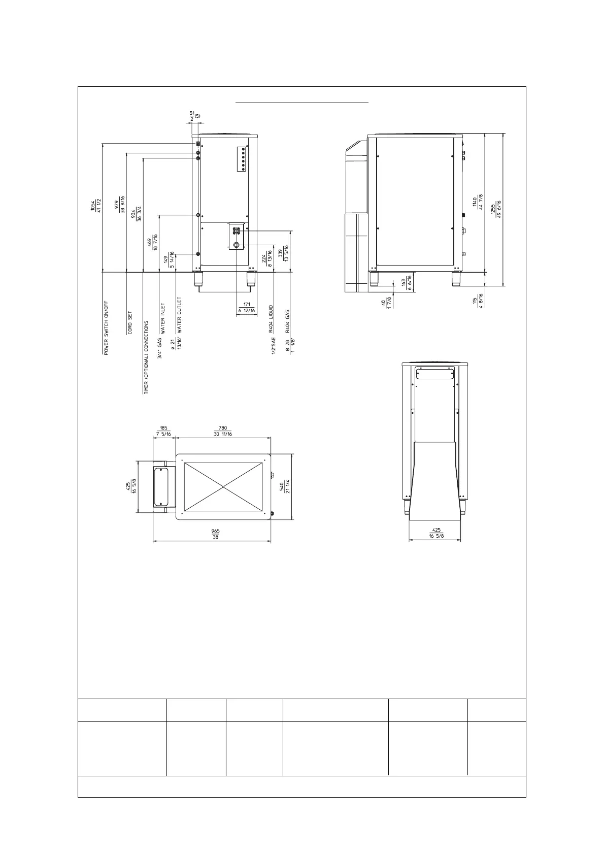
SPECIFICATIONS (CONT'D)
Dimensions:
HEIGHT: 1140 mm
HEIGHT (with legs): 1290 mm
WIDTH: 540 mm
DEPTH: 780 mm
NET WEIGHT: 250 Kg
MF/MFN 88 - SPLIT - MACHINE SPECIFICATIONS
Basic electrical Refrigerant Drive Motor Ice Type
230/50/3N 2.65 Amps/1410 rpm 7050 Kcal/hr
R404a 8200 W
400/50/3N 5A 1.53 Amps/1410 rpm 28000 Btu/h
Max
Fuse Size
Cooling Reg.
at -24°C / +40°C
SUPER
FLAKE /
NUGGET

Related product manuals