EasyManua.ls Logo

Seagate ST318436LW - Figure 6 B. Mounting Configuration Dimensions for LC and LCV Model

Seagate ST318436LW
110 pages
Print Icon
To Next Page IconTo Next Page
To Next Page IconTo Next Page
To Previous Page IconTo Previous Page
To Previous Page IconTo Previous Page
Loading...
32 Barracuda 18XL Product Manual, Rev. A
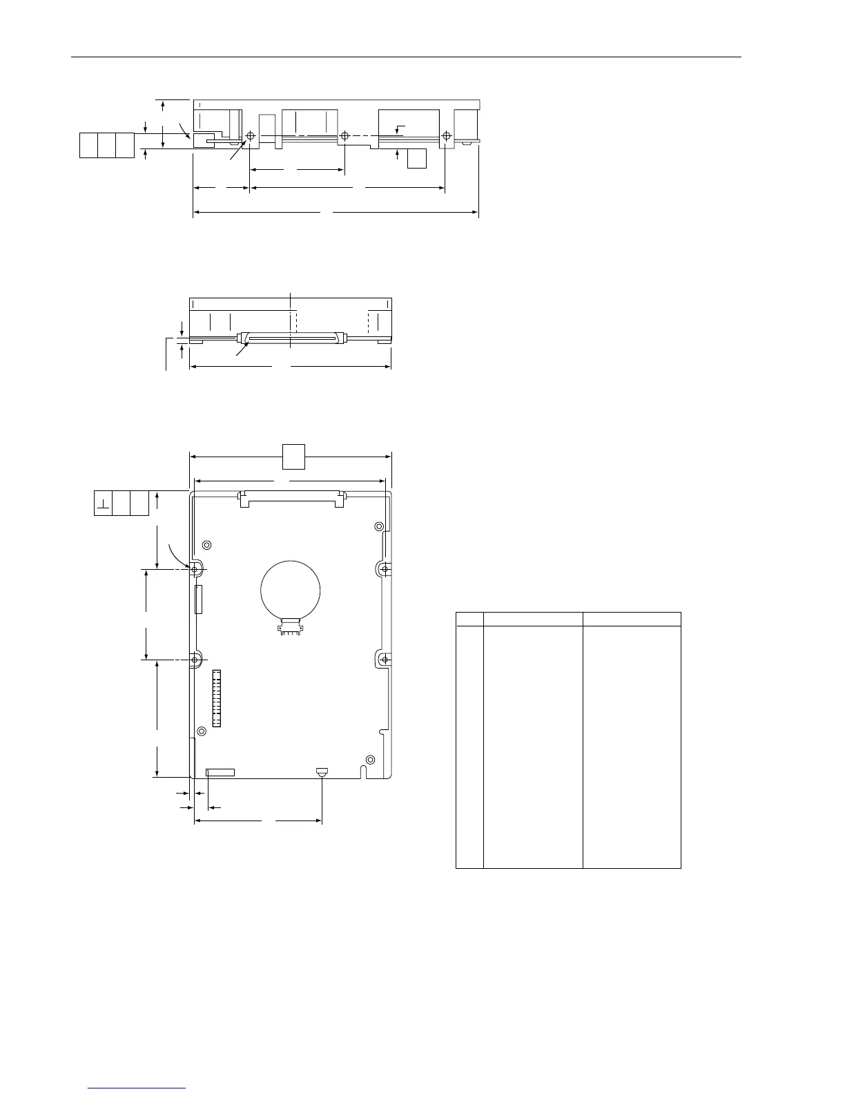
Figure 6b. Mounting configuration dimensions for LC and LCV model
[5]
[7]
Mounting holes three on each side, 6-32 UNC. Max screw length
into side of drive 0.15 in. (3.81 mm). Screw tightening torque 6.0
in-lb (.675 NM) max with minimum thread engagement of 0.12 in.
(3.05 mm). Mounting holes four on bottom, 6-32 UNC. Max screw
length into bottom of drive 0.15 in. (3.81 mm). Screw tightening
torque 6.0 in-lb (.675 NM) max with minimum thread engagement
of 0.12 in. (3.05 mm).
Interface connector is flush with the end of drive within
±0.020 in. (.5 mm). The interface connector location may extend
beyond HDA dimension B by 0.020 in. (.5 mm).
Connector J1 is centered (side to side) on drive within ±0.020 in.
(.508 mm).
Dimension G is from bottom rear drive mounting holes center(s)
to the face of the connector at the center of the drive. It is also the
dimension to the end of the drive HDA.
Dimensions G and S are unique requirements for SCA drives
only, required for conformance with latest SFF Spec #8337.
Centerline of pad for Pin 1 of J6.
Maximum connector non-perpendicularity to side planes pointed
to by X.
Nominal values. These cannot be added to any toleranced
dimension to achieve a valid toleranced dimension.
Dimension N is from drive mounting hole to end of drive chasis
(not to the end of the PCBA).
Maximum amount of non-parallelism with plane -Z-.
Notes:
[1]
[2]
[3]
[4]
[5]
[6]
[7]
[8]
[9]
[10]
D
[7]
[7]
G [4]
-X-U
-X-
C
[3]
M
Connector Centerline
Pin 1
F
J2
J6 LED
[9] N
[1]
R
P [6]
E
J
L
B
K
[1]
H
Inches
A
B
C
D
E
F
G
H
J
K
L
M
N
P
R
S
T
U
26.14
146.69
101.60
95.25
3.18
44.45
41.28
28.50
101.60
6.35
41.60
4.597
59.69
10.29
52.53
8.10
.38
.38
1.029
5.775
4.00
3.750
.125
1.750
1.625
1.122
4.000
.250
1.638
0.181
2.350
.405
2.265
.319
.015
.015
max
max
± .015
± .010
± .010
± .010
± .020
± .020
± .010
± .010
± .010
+ .015
.010
± .010
[8]
[8]
± .010
max
max
max
max
± .25
± .25
± .25
± .25
± .50
± .50
± .25
± .25
± .25
+ .38
.25
± .25
[8]
[8]
± .25
max
max
Dimension Table
Millimeters
-Z-
[2]
A
S
[10]
-Z-T//

Table of Contents

Other manuals for Seagate ST318436LW

Related product manuals