EasyManua.ls Logo

SECOLink P16 - System Module Integration; Module Connectivity to Control Panels; Module Compatibility Matrix

SECOLink P16
8 pages
Print Icon
To Next Page IconTo Next Page
To Next Page IconTo Next Page
To Previous Page IconTo Previous Page
To Previous Page IconTo Previous Page
Loading...
3.15A
P16
P32
P64
COM
+BELL
DAT
CLK
COM
-PGM
+PGM
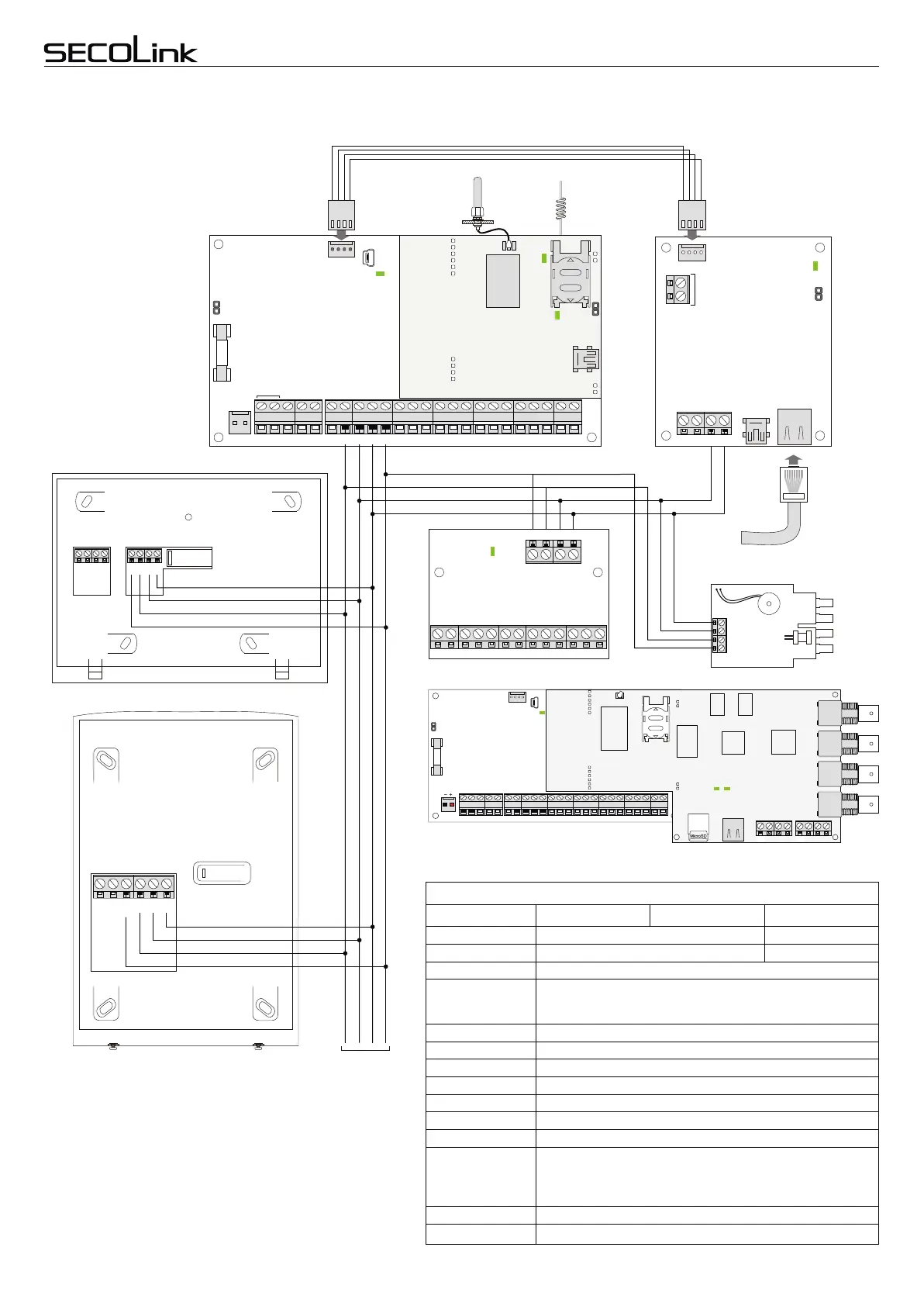
Wiring of system modules
KM24, KM24A, KM24G
KM20B, KM20BT
COM
+12V
+12V
COM
CLK
DAT
Z2
Z1
DAT
CLK
COM
+AUX
CLK
DAT
+12V
COM
+12V
Z1
Z2
COM
KRbus
EXM800
Z1
COM
Z2K7
Z3
K6
Z4
K5 Z5
K4
COM
Z1
COM
Z2/K7
Z3/K6
COM
Z4/K5
Z5/K4
DAT
COM
CLK
+12V
Z6
K3
Z7K2
Z8
K1
COM COM
+AUX
COM
Z6/K3
Z7/K2
COM
Z8/K1
+AUX
3.15A
P16
P32
P64
COM
+BELL
DAT
CLK
COM
-PGM
+PGM
Wiring of system modules
KM24, KM24A, KM24G
KM20B, KM20BT
COM
+12V
+12V
COM
CLK
DAT
Z2
Z1
DAT
CLK
COM
+AUX
CLK
DAT
+12V
COM
+12V
Z1
Z2
COM
KRbus
EXM800
Z1
COM
Z2K7
Z3
K6
Z4
K5 Z5
K4
COM
Z1
COM
Z2/K7
Z3/K6
COM
Z4/K5
Z5/K4
DAT
COM
CLK
+12V
Z6
K3
Z7K2
Z8
K1
COM COM
+AUX
COM
Z6/K3
Z7/K2
COM
Z8/K1
+AUX
Ethernet cable
COM CLK DAT+12V
LAN800
+12V
COM
CLK
DAT
+12V
COM
CLK
DAT
20VAC COM -PGM +PGM COM CLK DAT +AUX Z1 COM Z2 +AUX Z3 COM Z4 -Z5F +Z5F Z6 +AUX Z7 COM Z8+BELL
ANT
OPENOPEN
LOCKLOCK
GSVU
+AUX
+AUX
Z4
-Z5F
+Z5F
Z6
+AUX
Z7
COM
Z8
COM
Z3
COM
Z2
Z1
Z2/PGM
Z1
+12V
COM
CLK
DAT
COM
CLK
DAT
+12V
Z1
PGM
Z2
+AUX
COM
CLK
DAT
20 VAC
RING TIP
Not used
PROX8
+12V
COM
CLK
DAT
Modules compatibility with control panels Pxx
KM20B, KM20BT
Module
Compatible (firmw.: v.5.030 and +) Not compatible
KM24, KM24A Compatible (firmw.: v.2.051 and +) Not compatible
KM24G Compatible (firmw.: v.3.009 and +)
PROX8 Limited compatibility (firmw.: v.0.10)
Only first 31 users will be able to control the system. Only first 32
zones will be monitored by PROX8 LEDs.
EXM800 Compatible (firmw.: all versions)
Compatible (firmw.: all versions)
Compatible (firmw.: all versions)
Compatible (firmw.: all versions)
Compatible (firmw.: all versions)
Compatible (firmw.: all versions)
Compatible (firmw.: all versions)
EXM3F
RCM800WL
EXT016, EXT216
EXT116S
PWR20
GSVU
GSV6, GSV6T,
GSV6U
Compatible (firmw.: from v.1.025)
It is recommended to use GSVU module with P series control
panels. GSV6x module is only useful
when it is necessary to install module outside the cabinet.
LAN800
VIDNET
Compatible (firmw.: from v.1.42)
Compatible (firmw.: all versions)
P16 P32 P64
BAT
CLK DAT +AUX Z1 COM Z2 +AUX Z3 COM Z4 -Z5F +Z5F Z6 +AUX Z7 COM Z820VAC COM -PGM +PGM+BELL COM
OPENOPEN
LOCKLOCK
CAM2 CAM3CAM4 COM COM COMCAM1 COM
CAM1 CAM2 CAM3 CAM4
P16
P32
P64
VIDNET
Control panels Pxx are designed in the way, that most commonly used modules can be directly plugged-on to the panel board (GSM module GSVU, video module
VIDNET). All other modules that do not have a direct interface with the panel must be connected to data bus - KRbus.
Page 4
Intruder alarm system
Wiring manual
Control Panels P16, P32, P64

Related product manuals