EasyManua.ls Logo

SEM 22 - Disintegrator Dimensional Information

SEM 22
30 pages
Print Icon
To Next Page IconTo Next Page
To Next Page IconTo Next Page
To Previous Page IconTo Previous Page
To Previous Page IconTo Previous Page
Loading...
508.366.1488 | www.semshred.com
24
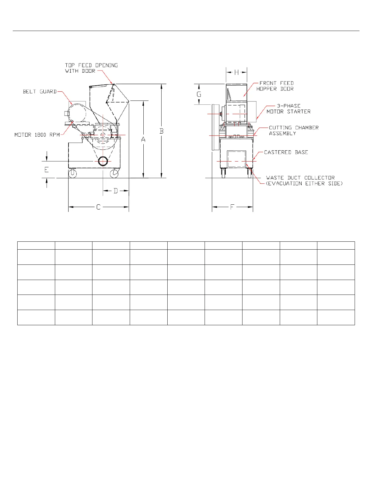
18. Disintegrator Dimensional Information
MODEL
A
B
C
D
E
F
G
H
3
50.50”
(1283mm)
62”
(1575mm)
42”
(1067mm)
16”
(406mm)
7.25”
(184mm)
28.50”
(724mm)
4.25”
(108mm)
12”
(305mm)
1012
50.50”
(1283mm)
62”
(1575mm)
42”
(1067mm)
16”
(406mm)
7.25”
(184mm)
28.50”
(724mm)
10”
(254mm)
12”
(305mm)
1012/5
55.50”
(1410mm)
62”
(1575mm)
48”
(1219mm)
18”
(457mm)
8”
(203mm)
34”
(864mm)
10”
(254mm)
16”
(406mm)
22
55.50”
(1410mm)
69”
(1753mm)
45”
(1143mm)
19.75”
(502mm)
12”
(305mm)
38”
(965mm)
12”
(305mm)
20”
(508mm)
23
55.50”
(1410mm)
69”
(1753mm)
48”
(1219mm)
19.75”
(502mm)
12”
(305mm)
42”
(1067mm)
12”
(305mm)
24”
(610mm)

Related product manuals