EasyManua.ls Logo

Senco AC4504 - Anvendelsesgrenser; Manøveranordninger; Kontroller Før Påslaging; Påslaging

Senco AC4504
120 pages
Print Icon
To Next Page IconTo Next Page
To Next Page IconTo Next Page
To Previous Page IconTo Previous Page
To Previous Page IconTo Previous Page
Loading...
1. Koble maskinen til strømforsyningen ved å sette inn
støpselen i den passende utgangen.
2. Slå på maskinen ved å sette PÅ/AV-bryteren i
stillingen «PÅ». (Maskinen virker til det maksimale
drifttrykket på 10 bar har blitt nådd og da stopper
automatisk)
3. Juster trykket ved utgang med bruk av tilhørende
regulator i henhold til verktøyet som brukes og typen
av behandling. Kontroller trykket på den tilhørende
trykkmåleren ;
PÅSLAGING
De autoriserte operatørene kan kun slå
maskinen på når de obligatorisk har fullført
kontrollene som beskrives i punkt 23.
Før å bruke maskinen må de autoriserte operatørene
lese og forstå alle deler av denne manualen.
Når maskinen brukes, må det obligatorisk
kontrolleres at ikke noen personer som ikke er
autoriserte kommer i nærheten av maskinen.
De autoriserte maskinoperatørene må ikke
etterlate maskinen ubevoktet under drift og
under pågående vedlikeholdsprosedyrer.
Risk for brennskader ved utforsettlig kontakt
med det tosylindriske pumpleanlegget og
elmotoren. Advarsel: det nnes en restrisiko.
Produsenten avslår allt ansvar for skader på
personer, dyr eller objekter som kommer an
på normene og advarslene som beskrives
i denne manualen ikke har blitt fulgt.
Produsenten avslår allt ansvar for det ultimate
resultatet av behandlingen, ettersom dette kun
kommer an på typen av verktøy som brukes og de
autoriserte maskinoperatørenes faglige dyktighet.
KONTROLLER FØR PÅSLAGING
Før maskinen slås på må de autoriserte
maskinoperatørene gjennomføre
de følgende kontrollene.
Det er strengt forbudt å ta maskinen i drift i et
miljø med et potentielt explosiv atmosfær og/eller
i nærheten av brennbart støv (f.eks. trestøv, mjøl,
sokker og alt i mellom).
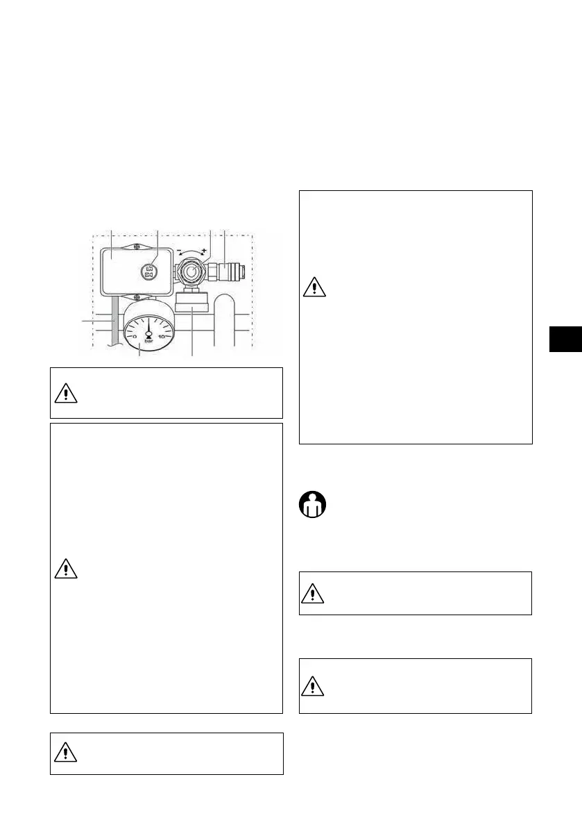
MANØVERANORDNINGER
Som vises i .
1.
Strømledning
2.
Trykkbryter
3.
PÅ-AV bryter
4.
Trykkregulator ved utgangen
5.
Hurtigkranen
6.
Trykkmåleren ved utgangen
7.
Måler til trykket i beholderen.
2 3 4 5
1
7 8
ANVENDELSESGRENSER
Den her maskinen ble utformet og produsert for anvendelsen
som beskrives i punkt 9. For å forsikre de ansvarlige
maskinoperatørenes sikkerhet og maskinens effektivitet er alle
andre anvendelser og håndteringer helt forbudt.
Begrenser i anvendelsen: det er strengt forbudt å
bruke maskinen til uegnete formål som avvikler fra
den egnete anvendelsen.
Maskinen må holdes utenfor rekkevidde av barn.
Under anvendelse må det kontrolleres at ingen
personer som ikke er autoriserte kommer i nærheten
av maskinen.
Det er strengt forbudt å bruke luftrør (forlengelse),
tilbehør og verktøy som ikke er egnete og/eller ikke
oppfyller kraven i gjeldende lov.
Det er strengt forbudt å løfte maskinen med kraner
og/eller gaffeltrucker.
Det er strengt forbudt å rette stråler av komprimert
luft mot personer, dyr eller objekter.
Det er strengt forbudt å bruke maskinen til å
transportere eller løfte personer, dyr eller objekter.
Det er strengt forbudt å sette seg på maskinen.
Det er strengt forbudt å taue maskinen med noen
anordninger og/eller noen kjøretøy i det hele tatt.
Det er strengt forbudt å yte maskinen manuelt opp
eller ned på skråninger med farlig stigning.
Risk for brennskader ved utforsettlig kontakt med det
tosylindriske pumpeanlegget og elmotoren. Advarsel:
det nnes en restrisiko.
Det er forbudt å snu trykkmåleren ved
utgangen utøver slagets slutt for å
unngå skader på membranen.
4. Koble verktøyet til luftrøret (forlengelse)
5. Koble luftrøret (forlengelse) til maskinens hurtigkran.
Det er helt forbudt å bruke luftrørene
(forlengelser), tilbehør og verktøy som
motsvarer bestemmelsene i bruks – og
vedlikeholdsanvisninger fra respektive produsenter.
6. Gjennomfør behandlingen (maskinen starter
automatisk når drifttrykket senker under 7 bar).
7. Slå av maskinen i henhold til beskrivelsen i punkt 25
når behandingen fullføres.
1. Kontroller at det ikke nnes en person som ikke er autorisert i
nærheten av maskinen.
2. Kontroller at sikkerhetsanordingene er alle ordentlig installert
og at de fungerer.
3. Kontroller at maskinen har blitt plassert på rett sted.
4. Kontroller at PÅ/AV-bryteren eller velgeren står på AV.
5. Kontroller at tappventil til kondensaten er stengt.
6. Bruk det obligatoriske personlige beskyttelsesutsyret.
7. Pass på at du har lest og forstått alle deler av bruks- og
vedlikeholdsanvisningene.
55
NO

Table of Contents

Related product manuals