EasyManua.ls Logo

Senco AC4504 - Machinegebruik; Plaats Van Gebruik; Gebruikslimieten; Besturingsapparaten

Senco AC4504
120 pages
Print Icon
To Next Page IconTo Next Page
To Next Page IconTo Next Page
To Previous Page IconTo Previous Page
To Previous Page IconTo Previous Page
Loading...
verboden om de machine te gebruiken voor gebruik,
afwijkend van het voorziene gebruik.
Het is verplicht om de machine buiten het bereik van
kinderen te houden.
Tijdens het gebruik is het verplicht om na te gaan
of niet-geautoriseerde personen zich in de buurt
van het apparaat bevinden. Het is ten strengste
verboden om luchtslangen (verlengstukken), ttingen en
gereedschappen te gebruiken die niet geschikt zijn en/of
niet voldoen aan de geldende voorschriften.
Het is ten strengste verboden om de machine te laten
vervoeren met kranen en/of vorkheftrucks.
Het is ten strengste verboden om persluchtstralen te
richten op personen, dieren en voorwerpen.
Het is ten strengste verboden de machine te gebruiken
om personen, dieren en zaken te vervoeren en/of te
tillen. Het is ten strengste verboden om op de machine
te stappen.
Het is ten strengste verboden om de machine te slepen
met welk middel en/of voertuig dan ook.
Het is ten strengste verboden om de machine met de
hand te verplaatsen op hellingen.
Verbrandingsgevaar door toevallig contact met de twee-
cilindrische pompset en de elektromotor. Voorzichtig! Er
bestaat een residueel risico.
CONTROLELIJST VOOR HET INSCHAKELEN
Alvorens de machine in te schakelen, moeten de
bevoegde operatoren de volgende controles uitvoeren.
MACHINE INSCHAKELEN
De geautoriseerde operatoren kunnen de machine
pas inschakelen nadat de in beschreven verplichte
controles zijn uitgevoerd.
Vòòr het gebruik van deze machine moeten de
geautoriseerde operatoren deze handleiding in zijn
geheel gelezen en begrepen hebben.
Tijdens het gebruik is het verplicht om te controleren
of niet-geautoriseerde personen zich in de buurt van
de machine bevinden. De geautoriseerde operatoren
mogen de machine niet onbeheerd laten gedurende
werking en onderhoud.
Gevaar voor verbranding door toevallig contact
met de bi-cylindrische pompset en de elektrische motor.
Voorzichtig! Er is een residueel risico.
De fabrikant wijst alle aansprakelijkheid af voor
schade aan personen, dieren en dingen, vanwege het
niet in acht nemen van de normen en waarschuwingen
Het is ten strengste verboden om de machine te
gebruiken in omgevingen met een potentieel explosieve
atmosfeer en/of in aanwezigheid van brandbaar stof (bv.
houtstof, meel, suikers en tussenproducten).
Beperkingen in het gebruik: het is ten strengste
BESTURINGSAPPARATEN
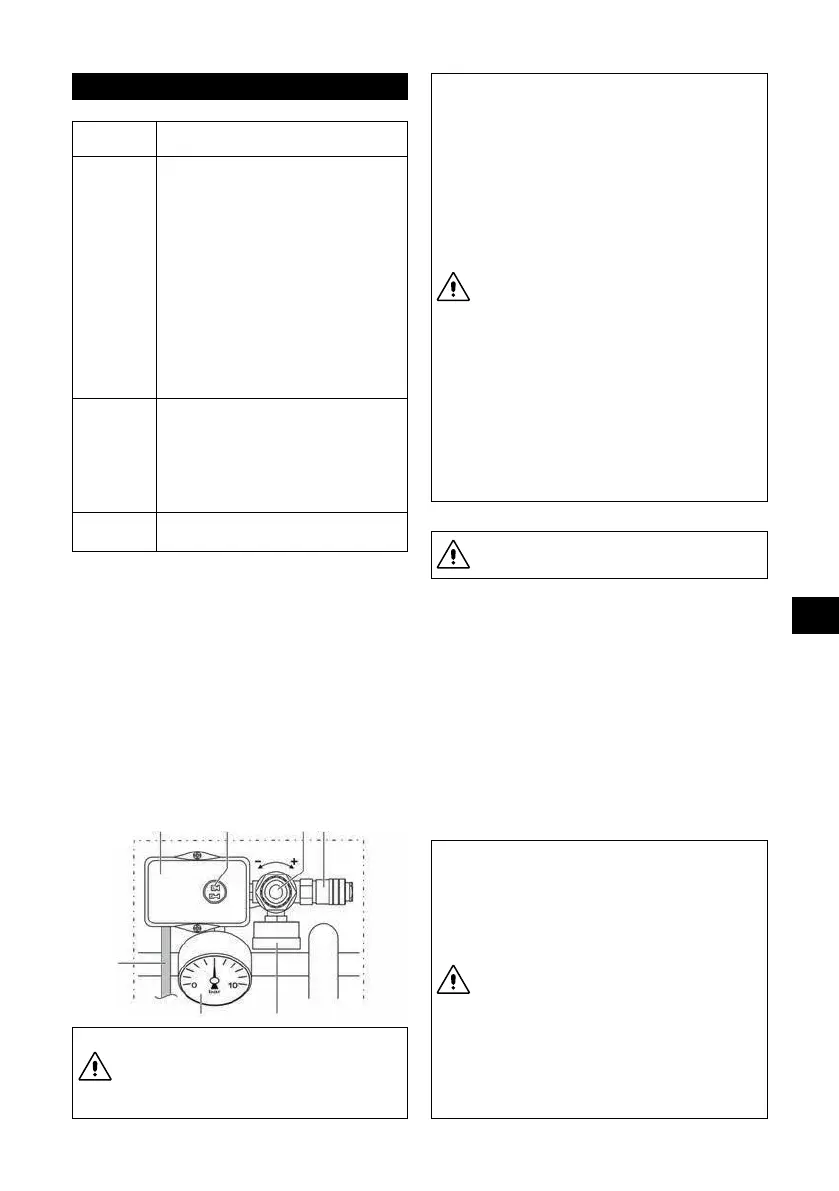
Zoals getoond
1. Voedingskabel
2. Drukschakelaar
3. “AAN-UIT”-schakelaar
4. Drukregelaar aan de uitvoer
5. Snelle luchtuitblaasband
6. Drukmeter aan de uitvoer
7. Tankdrukmeter
2 3 4 5
1
7 8
GEBRUIKSLIMIETEN
Deze machine werd uitsluitend ontworpen en geproduceerd voor
het in beschreven gebruik. Elk ander gebruik is daarom absoluut
verboden om op elk moment de veiligheid van de operatoren en
de efciëntie van de machine zelf te garanderen.
1. Zorg ervoor dat er zich geen onbevoegde personen in de
buurt van de machine bevinden.
2. Controleer of de geïntegreerde veiligheidsvoorzieningen
correct geïnstalleerd zijn en werken.
3. Zorg ervoor dat de machine goed gepositioneerd is.
4. Zorg ervoor dat de “AAN-UIT” schakelaar of keuzeschakelaar
op “UIT (0)” staat.
5. Zorg ervoor dat de condensafvoerklep gesloten is.
6. Gebruik de verplichte persoonlijke beschermingsmiddelen
(PBM’s) .
7. Zorg ervoor dat u de “gebruiks- en onderhoudsinstructies”
in alle opzichten gelezen en begrepen hebt.
onderhoudsinstructies” in alle opzichten gelezen en begrepen
hebt.
PLAATS VAN GEBRUIK
TOEPASSIN-
GSGEBIED
Industriële en civiele sectoren.
PLAATS VAN
GEBRUIK
het niet is onderhevig aan atmosferische
actoren) voldoende verlicht, geventileerd,
met een omgevingstemperatuur en -
vochtigheid die voldoen aan de par. 2,
geschikt in overeenstemming met de
wettelijke bepalingen die van kracht zijn in
het land van gebruik inzake veiligheid en
gezondheid op de werkplaats. De machine
moet op een oppervlak geplaatst zijn dat
zijn stabiliteit garandeert met betrekking
tot zijn gewicht en zijn totale afmetingen.
LET OP: HET IS VERPLICHT OM DE MACHINE
BUITEN HET BEREIK VAN KINDEREN TE
HOUDEN.
VOORZIEN
GEBRUIK
Luchtcompressie (zonder olie) voor het gebruik
van geschikt pneumatisch gereedschap
dat voldoet aan de geldende voorschriften.
(bijv: pistolen voor het blazen, opblazen,
wassen, schilderen of zandstralen; schroeven;
puntlassers, klinknagels of smeerapparaten).
OPERATORS
Een geautoriseerde operator die voldoet aan de
professionele eisen zoals beschreven.
MACHINE GEBRUIK
71
NL

Table of Contents

Related product manuals