EasyManua.ls Logo

Senco AC4504 - Ograniczenia Użytkowania; Urządzenia Sterujące; Kontrole Przed Włączeniem Urządzenia; Uruchamianie Maszyny

Senco AC4504
120 pages
Print Icon
To Next Page IconTo Next Page
To Next Page IconTo Next Page
To Previous Page IconTo Previous Page
To Previous Page IconTo Previous Page
Loading...
1. Podłącz urządzenie do sieci elektrycznej, wkładając
wtyczkę zasilania do właściwego gniazdka;
2. Włącz maszynę, pociągając przycisk „wł.-wył.” na
pozycję “WŁ.” (I)
(maszyna pracuje do momentu osiągnięcia
maksymalnego ciśnienia roboczego 10 bar, a
następnie zatrzymuje się automatycznie);
3. Wyreguluj ciśnienie na wyjściu za pomocą
odpowiedniego regulatora, odpowiednio do
używanego narzędzia i rodzaju obróbki.
Sprawdź ciśnienie we właściwym ciśnieniomierzu ;
Uruchamianie maszyny jest surowo zabronione w
środowiskach potencjalnie wybuchowych i/lub w
obecności łatwopalnych pyłów (np. pyły drzewne,
pyłów z produkcji, cukrów czy śrutów.
Ograniczenia w użyciu: niewłaściwe korzystanie
różniące się od przewidywanego zastosowania jest
surowo zabronione(par.9)
Obowiązkowe jest utrzymanie maszyny poza
zasięgiem dzieci. Podczas użytkowania należy
obowiązkowo upewnić się że nieautoryzowani
ludzie nie zbliżają się do maszyny. Zabrania się
używania rur powietrznych (przedłużeń) armatury i
nieodpowiednich narzędzi i/lub nie przestrzegania
obowiązujących przepisów. Przyłączanie maszyny
do dźwigów i/lub wózków widłowych jest surowo
zbronione. Surowo zabrania się kierowania
strumieniami sprężonego powietrza na osoby,
zwierzęta i przedmioty. Surowo zabrania się
używania maszyny do transportu i / lub podnoszenia
osób, zwierząt i przedmiotów. Zabrania się
wchodzenia na maszynę. Zabrania się holowania
maszyny przez kogokolwiek
środkami transportu i / lub pojazdami.
Surowo zabrania się ręcznego przemieszczania
maszyny na zboczach wznoszących się i / lub
opadających z o niebezpiecznym stopniu.
Istnieje niebezpieczeństwo poparzenia w wyniku
przypadkowego kontaktu z
dwucylindrycznym zespołem pompującym i silnikiem
elektrycznym.
Uwaga! Istnieje ryzyko rezydualne.
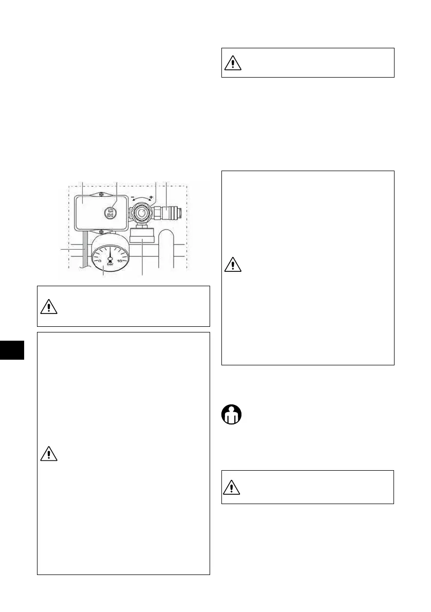
URZĄDZENIA STERUJĄCE
Pokazane na rys. 5.
1. kabel zasilający
2. Przełącznik ciśnienia
3. Przełącznik “wł.-wył.”
4. Regulator ciśnienia na wyjściu
5. Taśma szybkiego wylotu powietrza
6. Ciśnieniomierz na wyjściu
7. Ciśnieniomierz zbiornika
KONTROLE PRZED WŁĄCZENIEM URZĄDZENIA
Przed włączeniem maszyny upoważnieni
operatorzy muszą obowiązkowo wykonać
następujące czynności sprawdzające.
Urządzenia sterujące Pokazane na rys. 5
1. kabel zasilający
2. Przełącznik ciśnienia
3. Przełącznik “wł.-wył.”
4. Regulator ciśnienia na wyjściu
5. Taśma szybkiego wylotu powietrza
6. Ciśnieniomierz na wyjściu
7. Ciśnieniomierz zbiornika
URUCHAMIANIE MASZYNY
Autoryzowani operatorzy mogą włączyć urządzenie
tylko po wykonaniu kontroli opisanej w par. 23.
Przed użyciem tego urządzenia upoważnieni
operatorzy muszą przeczytać i zrozumieć ten
podręcznik w całości. Podczas użytkowania
obowiązkowe jest sprawdzenie, czy nieautoryzowani
ludzie nie zbliżają się do maszyny.
Nie jest dozwolone aby autoryzowani operatorzy
pozostawili maszynę bez nadzoru podczas
operacji i interwencji konserwacyjnych.
Istnieje niebezpieczeństwo poparzenia
w wyniku przypadkowego kontaktu
z dwucylindrycznym zespołem pompującym
i silnikiem elektrycznym.
UWAGA! Istnieje ryzyko rezydualne.
Producent nie ponosi żadnej odpowiedzialności
za szkody na osobach, zwierzętach i rzeczach,
wynikające z powodu nieprzestrzegania norm
oraz ostrzeżeń opisanych w tej instrukcji.
Producent nie ponosi żadnej odpowiedzialności za
końcowy wynik przetwarzania, ponieważ zależy to
wyłącznie od rodzaju użytego narzędzia i umiejętności
zawodowych upoważnionych operatorów.
Zabrania się przykręcania regulatora ciśnienia
w miejscu wyjścia poza koniec skoku, w
celu uniknięcia uszkodzenia membrany.
2 3 4 5
1
7 8
OGRANICZENIA UŻYTKOWANIA
Ta maszyna została zaprojektowana i wyprodukowana
wyłącznie w celu opisanego przeznaczenia, każde inne
użycie i działanie jest zatem absolutnie zabronione, w celach
zapewnienia w każdej chwili bezpieczeństwa odpowiedzialnych
operatorów a także wydajności samej maszyny.
4. Podłącz narzędzie do rurki powietrznej
(przedłużenie);
5. Podłącz rurkę powietrzną (przedłużenie) do kurka
szybkiego wylotu powietrza w urządzeniu;
80
PL

Table of Contents

Related product manuals