EasyManua.ls Logo

Serai 30F D - ELECTRICAL INSTALLATION; TECHNICAL DATA OF THE CONTROL PANEL

Default Icon
10 pages
Print Icon
To Next Page IconTo Next Page
To Next Page IconTo Next Page
To Previous Page IconTo Previous Page
To Previous Page IconTo Previous Page
Loading...
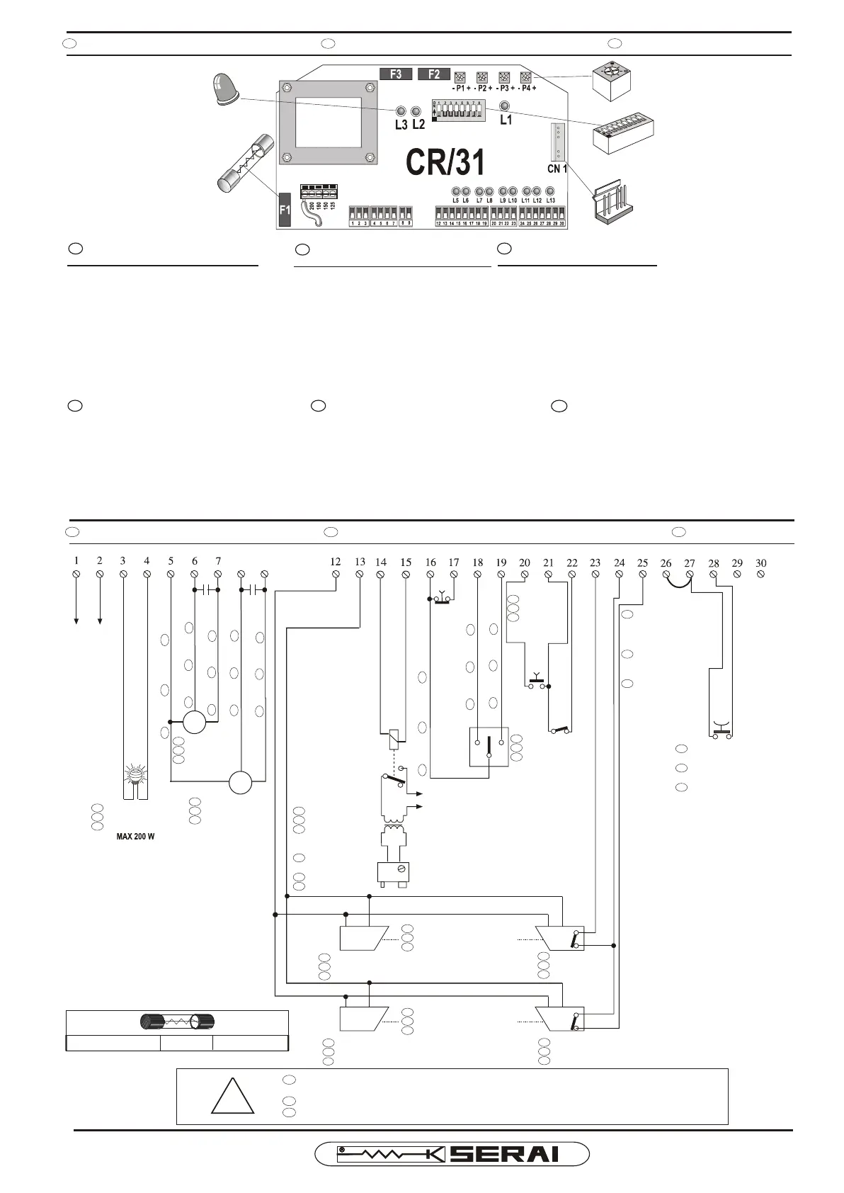
F1 = 5 A 250 V~ F2 = 1 A F3 = 0,315 A
98
NC
STOP
NC
NA
NC
NC
RELE
12V~
230 V~
15 W
230/12V~
12 V~
DIP-SWITCH
FUSE
(5A) 250 V~
CN 1
LED
TRIMMER
(0,315A) 1 A
DAL 1965
24 V~
MAX
250 mA
MAX 30mA
CLIGNOTANT 230 V~
F
D
FLASH 230 V~
BLINKLEUCHTE 230 V~
GB
SCHEMA CR/31
F
ELECTRICAL DRAWING CR/31
SCHEMA CR/31
GB
D
COUPER L'ALIMENTATION AVANT DE PRATIQUER TOUTE INTERVENTION SUR
LES BRANCHEMENTS
TURN OFF POWER SUPPLY BEFORE WIRING-UP
SPEISELEITUNG UNTERBRECHEN, BEVOR MAN AUF DIE ANSCHLÜSSE WIRKT
F
D
GB
!
2° MOTEUR 230 V~
F
GB
D
2st. MOTOR 230 V~
2. ANTRIEB 230 V~
OUVRE
F
GB
D
OPEN
ÖFFNET
FERME
F
GB
D
CLOSE
SCHLIESST
COMMUN
F
GB
D
COMMON
SCHALTUNGSNULL
OUVRE
F
GB
D
OPEN
ÖFFNET
FERME
F
GB
D
CLOSE
SCHLIESST
COMMUN
F
GB
D
COMMON
SCHALTUNGSNULL
OUVRE/FERME
F
GB
D
OPEN/CLOSE
ÖFFNET/
SCHLLIESST
PROFIL PALPEUR
F
GB
D
SENSITIVE EDGE
EMPFINDLICHE
KANTE
CELLULE PHOTOEL. D'OUVERTURE
F
GB
D
OPENING PHOTOCELL
ÖFFNUNGSLICHTSCHRANKE
RECEPTEUR
F
GB
D
RECEIVER
EMPFÄNGER
RECEPTEUR
F
GB
D
RECEIVER
EMPFÄNGER
CELLULE PHOTOEL. DE FERMETURE
F
GB
D
CLOSING PHOTOCELL
SCHLIESSLICHTSCHRANKE
EMETTEUR
F
GB
D
TRANSMITTER
SENDER
EMETTEUR
F
GB
D
TRANSMITTER
SENDER
BRANCHEMENT POUR
OPTION CONTRE-COUP
DEBLOCAGE SERRURE
ELECTRIQUE
F
GB
D
BOND FOR KICKBACK
LOCK RELEASE
OPTION
ANSCHLUSS FUR
MOGLLICHKEIT ZUR
ENTBLOCKUNG DES
ELEKTROSCHLOSSES
TRANSFORMATEUR
F
GB
D
TRANSFORMER
TRANSFORMATOR
TR/01
SR 19.61
SERRURE
ELECTRIQUE
F
GB
D
ELECTRIC LOCK
ELEKTROSCHLOSS
INSTALLATION ELECTRIQUE
F
ELECTRICAL INSTALLATION
ELEKTRISCHE ANLAGE
GB
D
A T T E N T I O N
La centrale est protégée par un fusible
thermique qui intervient en coupant la tension
quand la température du transformateur
dépasse 100°C.
Le portail s'arrête et reprend sa marche après
15 minutes quand le transformateur devient
froid selon la température ambiante.
F
A C H T U N G
Die steuerung ist von einer thermischen
schmelzsicherung geschützt, die, wenn die
temperatur des transformators 100°C
übersteigt, dazwischentritt, und spannung
abnimmt.
Das tor bleibt stehen und bewegt sich nach
zirka 15 minuten, wenn sich der transformator
der umgebungstemperatur gemäß abkühlt.
D
A T T E N T I O N
The control panel is protected through a
thermic fuse which intervenes by cutting
power supply off when the temperature of
the transformer exceeds 100°C.
The gate stops and resumes its working
cycle after about 15 minutes when the
transformer gets cold according to the
ambient temperature.
GB
M1
OUVRE
F
GB
D
OPEN
ÖFFNET
FERME
F
GB
D
CLOSE
SCHLIESST
M2
1° MOTEUR 230 V~
F
GB
D
1st. MOTOR 230V~
1. ANTRIEB 230 V~
M/83/1 SR14.83/1
POUSSOIR OUVRES/FERMES
POUR UN VANTAIL 2° MOTEUR
F
GB
D
ONE-WING OPEN CLOSE PUSH-
BUTTON 2d MOTOR
DRUCKER ZUM AUF/ZUMACHEN
FÜR EINE FLÜGEL ZWEITEN
MOTORS
DONNEES TECHNIQUES DE LA CENTRALE
Dimensions..............................................................
Temperature..........................................................
Poids .........................................................................
Alimentation...........................................................
Sortie relais: pour moteurs uniphases
Puissance max/tension......................................
Avance du clignotement...................................
Temps de fonctionnement des moteurs:...
Retard de fermeture 1° motor.......................
Pause portail ouvert..........................................
TECHNICAL DATA OF THE CONTROL PANEL
Dimensions.......................................................
Temperature...................................................
Weight...............................................................
Power supply.................................................
Exit relay: for single-phase motors
Max power/voltage.....................................
Flasher lead time........................................
Motors working time..................................
1st motor start..............................................
Open-gate pause............................................
TECHNISCHE DATEN DER STEUERUNG
Abmessungen......................................................
Temperatur ........................................................
Gewicht ................................................................
Spannung..............................................................
Ausgangrelais: für einphasige motoren
Max leistung/strom.........................................
Frühzündung des blinklichts....................
Betriebszeit des motors:..............................
Schiessung verzögerung des ersten motors
Pause mit oeffenem tor...................................
......
235x155x90 mm
-20° ÷ +70°C
2,2 kg
230V~ 10% 50/60 Hz
400 W / 230 V~
1 ÷ 10 s
4 ÷ 70 s
1 ÷ 10 s
6 ÷ 155 s
±
F
GB
D
Pag. 6/10
KIT/30FD-39FD FED
L N
230V~ ±10%
50/60Hz

Related product manuals