EasyManua.ls Logo

Sharp CD-BK250W - Page 24

Sharp CD-BK250W
68 pages
Print Icon
To Next Page IconTo Next Page
To Next Page IconTo Next Page
To Previous Page IconTo Previous Page
To Previous Page IconTo Previous Page
Loading...
CD-BK250W/CD-BK2600W/CD-BK270W
– 24 –
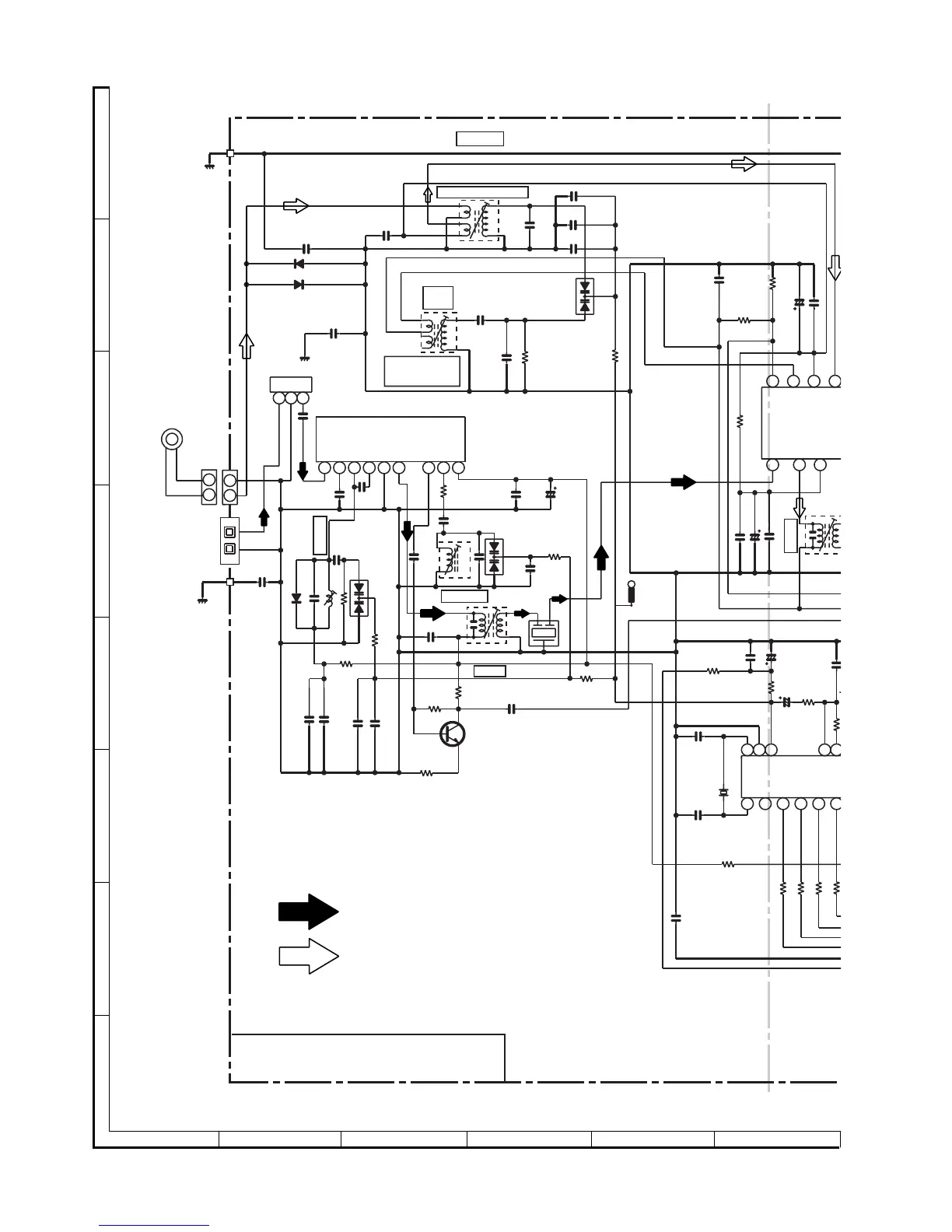
Figure 24 SCHEMATIC DIAGRAM (5/11)
A
B
C
D
E
F
G
H
1
23456
• NOTES ON SCHEMATIC DIAGRAM can be found on page 39.
AM BAND
COVERAGE fL
AM ANT.
FM SIGNAL
AM SIGNAL
1
1
2
2
3
2
1
9
8
7
6
5
4321
22
21
20
19
1
8
654321
24 23 22 21
3
2
1
VSS
AOUT
AIN
PD
DO
CL
DI
CE
X IN
X OUT
REG
AM RF IN
AM OSC IN
FM AFC
AM OSC OUT
AM MIX OUT
FM IF IN
1
3
2
MAIN PWB-A1(3/3)
+B
+B
AM
ANTENNA
BUFF
C301
0.01
CT1
0.01
C340
0.001
C330
15P
C331
0.047
C303
10P(CH)
BF301
BAND PASS FILTER
R372 1K
IC302
R365
10K
R302
10
C318
100P
R316
4.7K
R325
47K
R309
10K
C384
0.001
T302
FM IF
C305
4.7P
(CH)
C314
0.0047
R313
33K
R381
10K
X352
4.5 MHz
C363 0 022
T351
AM IF
C317
0.001
R311
100K
L312 FM RF
C332
0.022
C315
0.0047
C304
0.01
R314
22
C324
3.9P(UJ)
D305
DS1SS133
R378 1K
R327
33
CF303
VD302
SVC211C
VD303
SVC211C
T306
AM
OSC.
C338 0.001
D301 DS1SS133
D302 DS1SS133
C361 0.022
C362 3.3/50
VD301
SVC348S
R382
150
IC301
C397
0.022
C382
15P(CH)
R323
68K
R322
680
R375
470
C334
22P
(CH)
C335
560P
C380
10/50
C323
0.022
T303
AM TRACKING fL
C393
1/50
R380
1.5K
T301 FM OSC.
R373 1K
R374 1K
CNP301
C306
0.022
C307
10/50
C310
15P(CH)
Q302
KTC3194 Y
C309
0.001
C392
0.001
C394
47/25
C308 4.7P(CH)
C316
0.022
C352 10/50
C389 0.022
C312
0.022
R351 5.6K
C350 0.022
C313
22P
R358
3.9K
C342
0.022
C311
18P
C381
12P(CH)
R336
10K
TP301
IC301
TA7358AP
FM FRONT END
SO302
FM ANTENNA
TERMINAL

Related product manuals