EasyManua.ls Logo

Sharp CD-BK250W - Page 26

Sharp CD-BK250W
68 pages
Print Icon
To Next Page IconTo Next Page
To Next Page IconTo Next Page
To Previous Page IconTo Previous Page
To Previous Page IconTo Previous Page
Loading...
CD-BK250W/CD-BK2600W/CD-BK270W
– 26 –
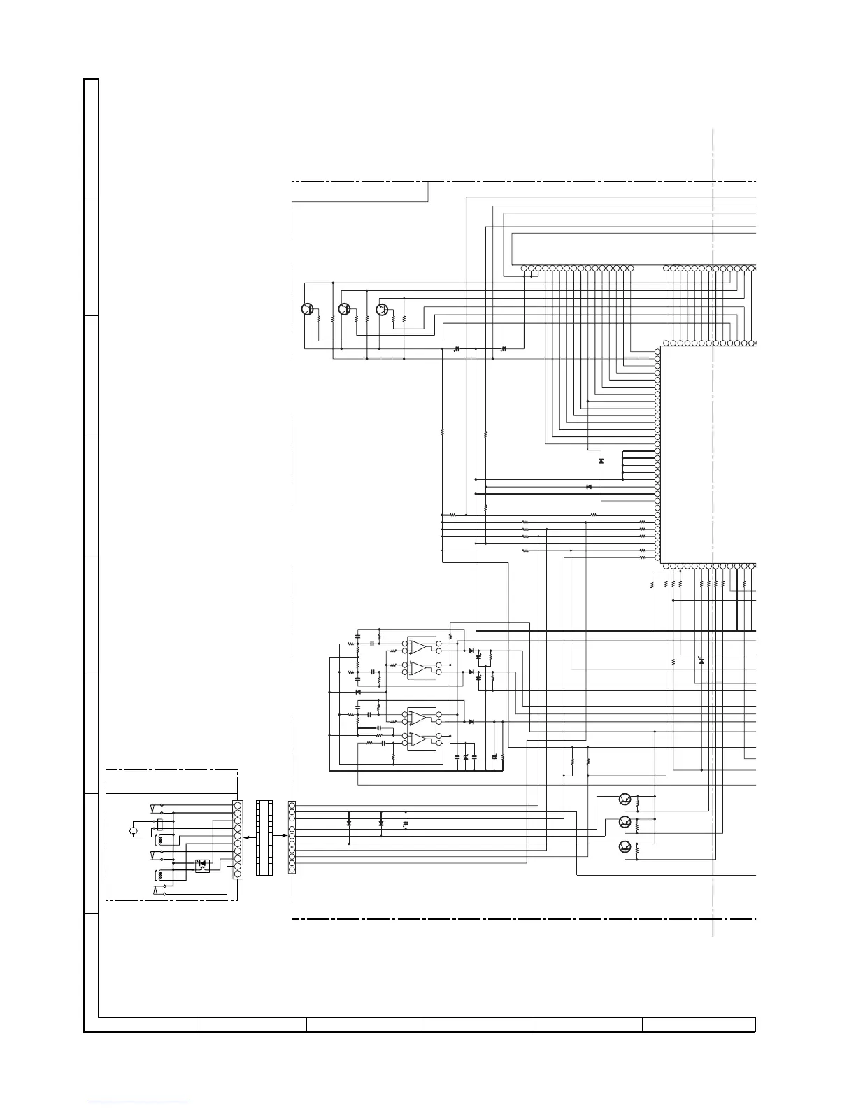
Figure 26 SCHEMATIC DIAGRAM (7/11)
A
B
C
D
E
F
G
H
1
23456
• NOTES ON SCHEMATIC DIAGRAM can be found on page 39.
M12V
P22
P21
P20
P19
P18
P17
P16
P15
P14
P13
P12
P11
P10
F
F
F
49
48
47
44
43
42 41
40
39
38
37 36
35
34 33 32
P09
P08
P07
P06
P05
P04
P03
P02
P01
G08
G09
G10
G11
31 30 29 28 27 26 25 24 23 16 15 14 13
9
93
92
91
90
89
88
87
86
85
8483
82
81
80
79
78
77
76
75
74
73
72
71
70
P1
P2
P3
P4
P5
P11
P12
P13
P14
G11
G10
G9
G8
P6
P7
P8
P9
P10
VLOAD
P15
P16
P17
P18
P19/DIST0
69
68
67
66
65
64
63
62
61
60
59
58
57
56
LCK 0
KARAOKE LATCH
FPB
MIC SW
NO USE / MPEG_POW
DISTOUT/SW OUT
RDS-READY/ESS_DO
RDS-RDCL/ESS_DI
RDS-RDDA/ESS_STB
RDS-RST/ESS_ACK
P22/DIST3
P21/DIST2
P20/DIST1
NO USE
REMOCON
VSS
SMUTE
T_SOL_A
T_MOTOR
T_SOL_B
JOG 0
44 43 42 41 40 39 38
TIMER LED
VDD
AC RLY_CONT
SPK
_
DET
SP
_
RLY
50 49 48 47 46 45
55
54
53
52
51
PLAY SW_B
CD CLAMP
SW
T2
RUN
FPA
T1
RUN
NO USE
8
7
6
5
4
3
2
1
8
7
6
5
4
3
2
1
T2 PLAY
T2 RUN
+MTR
SOL2
SOL1
T1 RUN
GND
F_REC
R_REC
4
5
1
6
3
2
7
8
9
10
+B
+B
+B
+B
+
+B
+B
+B
+B
+B
+B
+B
+B
+B
+B
+B
+B
+B
+B
-B
-B
-B
-B
1
10
+
-
M
TAPE MECHANISM
PWB-D
9
10
8
7
6
5
4
3
2
1
TAPE
MOTOR
PLAY
F. PLAY
CASSETTE
SOLENOID
SOLENOID
PH
FFC702
CNS702
D701
DS1SS133
D705
DS1SS133
R770
10K
R772
10K
C706
47/50
R724
1K
R726
2.2K
R727
2.2K
R728
2.2K
R729
1K
R732
1K
R733
1K
R734
1K
LED701
R761
10K
IC701
IX0427AW
SYSTEM
MICROCOMP
U
R572
100K
C572
0.022
ZD561
DZ6.2BSB
C573
0.022
C569
2.2/50
R578
100K
R731
10K
R778
10K
R779
10K
R777
10K
Q708
KTA1271 Y
Q707
KTA1271 Y
Q706
KTA1273 Y
C712
47/50
D709
DS1SS133
D710
DS1SS133
R756
10K
R758
10K
R759
10K
R760
10K
R755
1K
R752
33
R579
15K
C571
0.022
C566
2.2/50
R747
1K
R746
1K
R748
1K
R749
100K
R750
100K
R751
100K
R571
390K
D563
DS1SS133
D562
DS1SS133
R580
180K
IC562
KIA4558P
OPE AMP.
C567
0.0068
D561 DS1SS133
R573
56K
R568
220K
R566
220K
R565
33K
R567
68K
R563
270
R562
820K
R574
1M
R576
2.2M
R561
10K
C568
0.0068
C561
270P
R570
12K
C565
0.0027
R738
22K
R739
1K
R740
1K
R741
1K
R569
100K
C570
0.022
R575
470K
C707
1/50
D716
DS1SS133
FL701
FL DISPLAY
R735
1K
R736
1K
C564
0.0027
C562
270P
IC561
KIA4558P
OPE AMP.
Q701
KTC3199 GR
Q702
KTC3199 GR
Q703
KTC3199 GR
C563
2.2/50
R577
150K
DISPLAY PWB-B1
R754
10K
R753
1K

Related product manuals