EasyManua.ls Logo

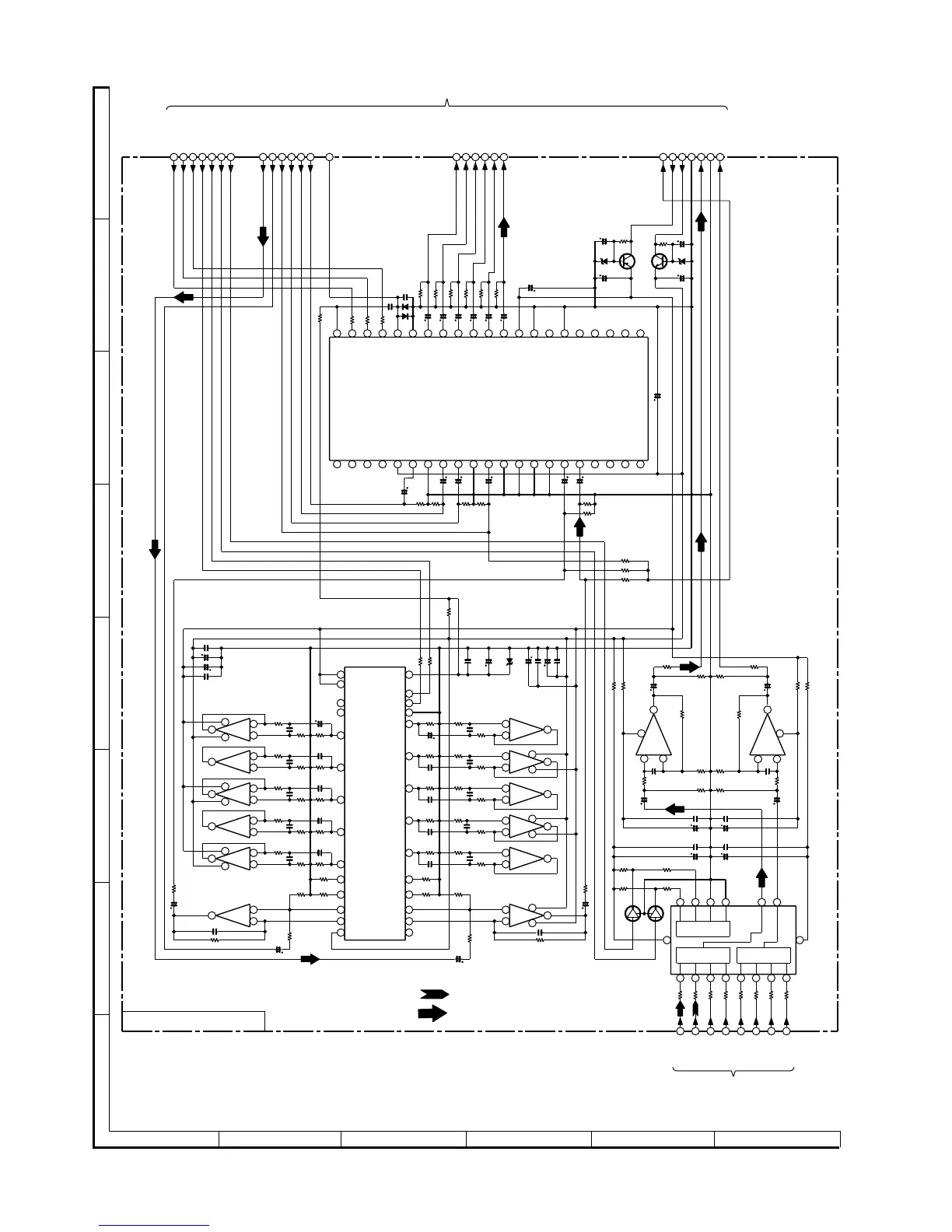
Sharp CD-K491W - Schematic Diagram - Part 9; Graphic Equalizer and Volume Control Schematic

Sharp CD-K491W
87 pages
Print Icon
To Next Page IconTo Next Page
To Next Page IconTo Next Page
To Previous Page IconTo Previous Page
To Previous Page IconTo Previous Page
Loading...
CD-K491W
– 30 –
A
B
C
D
E
F
G
H
1
23456
• NOTES ON SCHEMATIC DIAGRAM can be found on page 16.
Figure 30 SCHEMATIC DIAGRAM (9/20)
TO MAIN SECTION P
25 8-C
TO MAIN SECTION P25 8-D
A
B
+
+
+
GND
(1/2)
(1/2)
(1/2)
(1/2)
(2/2)
(2/2)
(1/2)
(1/2)
(1/2)
(2/2)
(2/2)
(2/2)
LBASS3(NC)
LBASS2(NC)
LBASS1(NC)
(NC)RBASS2
(NC)RBASS1
(NC)RBASS3
–7V
LT IN
RT IN
GND
–7V
–7V
–7V
–7V
–7V
–7V
–7V
–7V
–7V
VR CLK
VR DATA
LT IN
RT IN
–15V
ICZ07
NJM4565M
ICZ05
NJM4565M
+7V
+12V
GND(A)
GND(A)
+7V
+7V
+7V
+7V
+7V
+7V
+7V
D GND
+7V
+7V
0X
1X
2X
3X
0Y
1Y
2Y
3Y
Y COM
X COM
INH
Vss
IN1
F5
IN2
F6
F7
F4
F5
F3
F2
VEE
F2
F1
F4
NC
IN1
IN2
F7
F6
CLK
DI
F3
VDD
VCC+7V
TEST2
VSS
TEST1
S
OUT4(NC)
OUT3(NC)
OUT2(NC)
OUT1(NC)
SWIN
GNDS
GNDR
C IN
R IN
BYPASSR
BYPASSL
LTRE(NC)
(NC)CR2
(NC)CR1
(NC)CL2
(NC)CL1
AVSS
R OUT
L OUT
C OUT
SL OUT
SW OUT
LA TCH
DATA
CLK
SR OUT
A GND
D GND
AVDD
DVDD
GND
MAIN PWB - A ( 4 / 5 )
FM SIGNAL
+B
+B
–B
+B
+B
–B
–B
+B
+B
+B
+B
C-IN
SWIN
SRIN
SLIN
L-OUT
R-OUT
A
B
DI
CLK
VR LA TCH
GND(D)
C-IN
SWIN
SRIN
SLIN
L-OUT
R-OUT
GND(D)
DI
VR CLK
VR DATA
FUNC A
FUNC B
CLK2
SW OUT
SR OUT
SL OUT
C OUT
R OUT
L OUT
SW OUT
SR OUT
SL OUT
C OUT
R OUT
L OUT
–B
–B
–B
+B
–B
+B
+B
QZ01,QZ02:
VOLTAGE
REGULATOR
SPE-ANA
LT IN
RT IN
GND(A)
–15V
SPE-ANA
+12V
GND(A)
L IN
R IN
–B
+B
–B
–B
–B
–B
+B
+B
1
2
3
1
2
3
–B
TUN L
TAPE L
AUX1 L
AUX2 L
TUN R
TAPE R
AUX1 R
AUX2 R
PLAYBACK SIGNAL
1
5
2
4
7
8
9
6
3
13
1
1
8
2
3
2
3
1
2
3
5
6
7
5
5
6
6
7
7
RZ01
6.8K
8
2
3
2
3
2
3
5
5
5
6
6
6
7
7
7
8
8
4
4
4
8
8
4
4
4
ICZ08
TC4052BF
DUAL 4CH ANALOG
MULTIPLEXER
ICZ03
NJM4565M
ICZ02
NJM4565M
ICZ04
NJM4565M
ICZ06
NJM4565M
CZ30
100/10
CZ32
100/10
ICZ01
LC7522
GRAPHIC EQUALIZER ELECTRIC VOLUME
CZ61
1/50
CZ60
1/50
CZ59
1/50
CZ57
1/50
CZ58
1/50
CZ56
1/50
DZ01
DZ02
ICZ10
M62446FP
6CH ELECTRONIC VOLUME
ZDZ02
MTZJ7.5C
CZ66
1/50
CZ65
10/50
5
4
3
2
1
6
7
8
9
RZ66
100
RZ67
100
RZ68
100
RZ65
100
CZ62
22/16
RZ02
6.8K
CZ27
100/10
CZ26
100/10
CZ01
1/50
CZ02
1/50
CZ04
10/16
CZ03
10/16
CZ67
22/16
CZ34
10/16
CZ38
10/16
CZ36
47/16
CZ40
47/16
4
32
1
RZ60
2.7K
CZ46
10/16
RZ59
2.7K
8
5
6
7
CZ47
10/16
RZ55
100K
RZ57
1K
CZ43
10/16
RZ63
100K
RZ64
100K
RZ56
100K
RZ58
1K
CZ42
10/16
ICZ09
NJM4565M
BUFFER AMP.
QZ03
KRC107 M
QZ04
KRC107 M
RZ53
1K
RZ54
1K
CZ16(ML)
0.012
CZ12(ML)
0.0015
CZ08
270P
CZ15
0.012(ML)
CZ11
0.0015(ML)
CZ07
270P
CZ33
0.022
CZ31
0.022
CZ29
0.022
CZ45
47P
CZ44
47P
CZ35
0.022
CZ39
0.022
CZ37
0.022
CZ41
0.022
CZ10
(ML)
0.027
CZ06
0.0047
CZ09
0.027
CZ05
0.0047
CZ28
0.022
CZ25
0.022
CZ49
1/50
CZ51
1/50
CZ50
1/50
CZ48
1/50
CZ55
0.001
CZ54
0.022
RZ40
330K
RZ42
680
RZ34
330K
RZ36
680
RZ28
270K
RZ30
680
RZ22
120K
RZ24
680
RZ16
120K
RZ14
1M
RZ18
680
RZ11
1M
RZ05
1M
RZ12
1M
RZ06
1M
RZ08
100K
RZ39
330K
RZ41
680
RZ33
330K
RZ35
680
RZ27
270K
RZ29
680
RZ21
120K
RZ23
680
RZ15
120K
RZ17
680
RZ07
100K
RZ80
10K
RZ82
10K
RZ81
10K
RZ79
10K
RZ84
10K
RZ83
10K
RZ76
1K
RZ78
1K
RZ77
1K
RZ70
10K
RZ72
10K
RZ71
10K
RZ69
10K
RZ86
1K
RZ43
1K
RZ09
100
RZ10
100
RZ45
1K
RZ47
1K
RZ49
1K
RZ51
1K
RZ46
1K
RZ48
1K
RZ50
1K
RZ52
1K
RZ62
10K
RZ61
10K
RZ93
1K
RZ94
1K
RZ87
470K
RZ88
470K
RZ89
470K
RZ90
22K
RZ91
22K
RZ38
1M
RZ32
1M
RZ26
1M
RZ20
1M
RZ37
1M
RZ31
1M
RZ25
1M
RZ19
1M
RZ13
1M
CZ22
0.33/50
CZ21
0.33/50
ZDZ01
MTZJ7.5C
QZ01
KTA1271 Y
CZ64
1/50
RZ85
1K
CZ63
10/50
CZ52
1/50
CZ53
1/50
RZ74
10K
RZ73
10K
RZ03
6.8K
CZ69
100P
RZ04
6.8K
CZ70
100P
CZ14
(ML)
0.27
CZ18
(ML)
0.18
CZ20(ML)
0.033
CZ24(ML)
0.039
CZ13
0.27
(ML)
CZ17
0.18
(ML)
CZ19
0.033(ML)
CZ23
0.039(ML)
RZ95
220
RZ44
1K
CZ71
1/50
ZDZ03
MTZJ5R1A
RZ75
10
77 28 19 18 86
18
87
1 2 3 4
5
6
7
8
9
+B
DZ01,DZ02:1SS133
(2/2)
(1/2)
–+
+– +–
+– +–
+7V
+7V
VR LA TCH
67 68
69
70
71
72 73
54 55
58 56 57 76 27
42 41 40 39
38 37 36 35 34 33 32 31 30 29 28 27 26 25
(NC)RTRE
24 23 22
L IN
GNDC
SLIN
SRIN
10
11 12 13 14 15 16 17 18 19
20
21
14
13
10
11
12
15
16
19
18
17
20
21
22
23
+
+
+
+
+
1
1
1
16
12
14
15 11
10
78
15
84
85 82
17
80 81
76 57 56 58 55 54
F1
24
25
26
27
28
ICZ02, ICZ04, ICZ06:
BUFFERAMP.
ICZ03, ICZ05, ICZ07:
BUFFER AMP.
ICZ09
NJM4565M
BUFFER AMP.
QZ02
KTC3203 Y

Related product manuals