EasyManua.ls Logo

Sharp CD-M10000 - Page 25

Sharp CD-M10000
68 pages
Print Icon
To Next Page IconTo Next Page
To Next Page IconTo Next Page
To Previous Page IconTo Previous Page
To Previous Page IconTo Previous Page
Loading...
– 25 –
CD-M10000W/CP-M10000
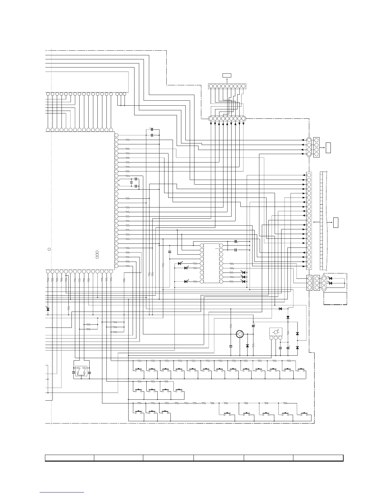
Figure 25 SCHEMATIC DIAGRAM (6/10)
7
8 9 10 11 12
30
29
28
27
26
25
24
23
22
21
20
19
18
17
16
15
14
13
18
17
16
15
14
13
12
11
10
9
8
7
6
5
4
3
2
1
3
21
100
99
98
97
96
95
9493
92
91
90
89
88
87
86
4
3
2
1
P4
P3
P2
P1
G11
G10
G9
G8
G7
G6
G5
G4
G3
G2
G1
45
44
43
42
41
40
39
38
37
36
35
34
33
32
31
12
11
10
9
8
7
6
5
5 V BACK UP
5
21
16
15
9
4
3
2
1
10
11
13
14
17
6
7
8
12
18
20
19
1
2
3456789
1
2
3456789
1
21
TO MAIN PWB
P23 10-H
FC701
4
1
3
2
4
1
3
2
TO POWER PWB
P26 5-G
1
3
2
1
3
2
1
3
2
LED
PWB-B3
CNP903
CNP601
BA
REW_PLAY
STOP
PLAY
T2 RUN
KEY 2
KEY 1
KEY 0
31
51
32
33
VDD
-20dBATT
DSA_STB
T-BIAS
T-T1/T2
REC/PLAY
RES OUT
DRF
WRQ
RESET
X2
X1
XVPP/IC
XT2
SPN
VDD
CD CLK
CD DI
CD DO
CD CE
CE
CLK
DI
DO
AVSS
DSA_ACK
SPEANA2
AVDD
AVREF
P-IN
JOG 1
JOG 0
REMOCON
VSS
SMUTE
T_SOL B
T_SOL A
T_MOTOR
TIMER LED
SPEANA1
SPEANA0
DSA_DATA
123
67
8910111213141516
2325 2426
F
F
F
G01
G02
G03
G04
G05
G06
G07
G08
G09
G10
G11
P01
P02
P03
P04
WRQ(DSP)
DRF
CD CE
CD DO
CD DI
CD CLK
RES OUT
CLAMP SW
O/C SW
DISC NO SW
A_+10 V
KARAOKE LATCH
MIC_IN
SPAN
SP_RLY
SP DET
SW +5 V
-20dB ATT
-15 V
M_+12 V
A_GND
SPA_SIG
S_MUTE
REC/PLAY
T_T1 T2
T_BIAS
D_GND
DO
DI
CLK
CE
VDD
OE
Q11
Q10
Q9
Q8
Q4
Q3
Q2
Q1
Q0
LCK
CLOCK
DATA
VSS
Q7
Q6
Q5
CNP8
+B
+B
+B
+B
+B
+
B
+B
+B
+B
+B
+B
+B
+B
-B
-B
+B
+B
+B
+B+B
2
1
3
TO
CD SERVO PWB
P21 12-B
VF1
-VF
VF2
P_IN
R700
10K
RD12
100K
SW712
DISC SKIP
SW711
DISC 3
RD11
33K
RD10
18K
SW710
DISC 2
SW709
DISC 1
RD09
10K
RD08
5.6K
RD07
3.9K
RD06
2.7K
RD05
2.2K
RD04
1.5K
R770 1K
IC701
IX0460AW
SYSTEM
MICROCOMPUTER
IC702
BU2092F
INPUT/OUTPUT EXPANDER
D718
DS1SS133
C728
0.01
Q709
KRC102 M
RESET
R796
47K
C729
3.3/50
R797
100K
SW703
TIMER
SW713
OPEN/CLOSE
SW734
TUNER
SW733
VIDEO
RD36
100K
SW732
TUNING UP
RD35
33K
SW731
RECORD/
PAUSE
RD34
15K
RD33
10K
SW717
REVERSE
MODE
SW730
REVERSE
PLAY
RD15
180K
SW724
TUNING
DOWN
RD26
820
RD28
1.5K
RD27
1K
SW722
CD
RD25
680
SW725
MEMORY
SET
SW726
FAST
REWIND
RD30
2.7K
SW723
TAPE
RD32
5.6K
SW728
PLAY
RD29
2.2K
SW727
FAST
FORWARD
RD31
3.9K
SW729
STOP
SW701
ON/
STAND-BY
RD03
1K
SW702
CLOCK
RD02
820
RD01
680
SW714
DIMMER
SW715
MONSTER
BASS
RD14
820
RD13
680
SW716
EQUALIZER
R703 10K
R706 10K
R721
4.7K
R757
10K
R795
10K
R763
10K
R764
10K
R765
10K
C702 0.022
C701 47/25
LED708
RL706 1K
LED706
RL707 1K
LED707
RL705
1K
LED705
4204UYT7
LED702
4204UYT7
LED701 4204UYT7
RL701
1K
RL702
1K
C726
220/10
C725
0.022
C724
18P
XL701
4.1943 MHz
R773 1K
R775 1K
R776 1K
R777 1K
R778 1K
R779 1K
R780 1K
R781 1K
R782 1K
R783 1K
R784 1K
R785 1K
R786 1K
R787 1K
R788 1K
R789 1K
R790 1K
R791 1K
R771 1K
R772 1K
R769 1K
BI703
CNS703
C733
47/25
R799
100
D720
DS1SS133
CNP701
RX701
REMOTE SENSOR
C732
0.022
D722
DS1SS133
D723
DS1SS133
JOG701
JOG VOLUME
C720
0.001
C721
0.001
R768 1K
R767 1K
R766 1K
R762 1K
R761 1K
R760 1K
R759 1K
R758 1K
R756 470
R755 470
R754 2.2K
R753 1.8K
D721
DS1SS133
RL708 1K
C723
15P
R708
10K
C727
470P
BI705
CNS705
RL704 1K
RL703 1K
CNP704
LED704
31URT21
LED703
31URT21
CNS704
BI704
LED706-708:
4204UGT7

Related product manuals