EasyManua.ls Logo

Sharp LC-26GA5F - Page 106

Sharp LC-26GA5F
160 pages
Print Icon
To Next Page IconTo Next Page
To Next Page IconTo Next Page
To Previous Page IconTo Previous Page
To Previous Page IconTo Previous Page
Loading...
106
LC-26GA5E
LC-32GA5E
LC-26GA5E
LC-32GA5E
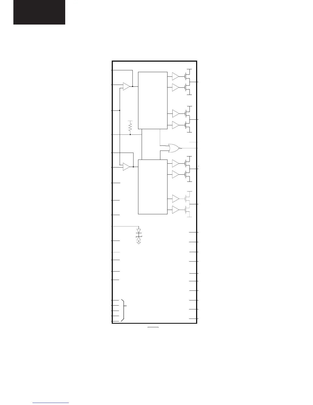
2.3. Block Diagram IC1301
O
O
VDDA
+5VGEN
DCAP2
DCAP1
CPUMP
10
11
20
1
33
29
26
7
19
31
28
24
27
36
2
3
15
14
12
16
18
SLEEP
5V
5V
REF
6
VDD1
PGND1
VDD1
PGND1
VDD2
VDD2
PGND2
PGND2
4
5
V5D
8
AGND1
AGND2
V5A
22
DGND
VDD1
PGND2
35
PGND1
VDD2
Processing
&
Modulation
Processing
&
Modulation
9
AGND3
17
13
NC
21
23
25
30
32
34
VDD1
VDD2

Related product manuals