EasyManua.ls Logo

Sharp LC-32GD8EE - Page 109

Sharp LC-32GD8EE
169 pages
Print Icon
To Next Page IconTo Next Page
To Next Page IconTo Next Page
To Previous Page IconTo Previous Page
To Previous Page IconTo Previous Page
Loading...
109
LC-32/37GD8E/RU
LC-32/37BT8E/RU
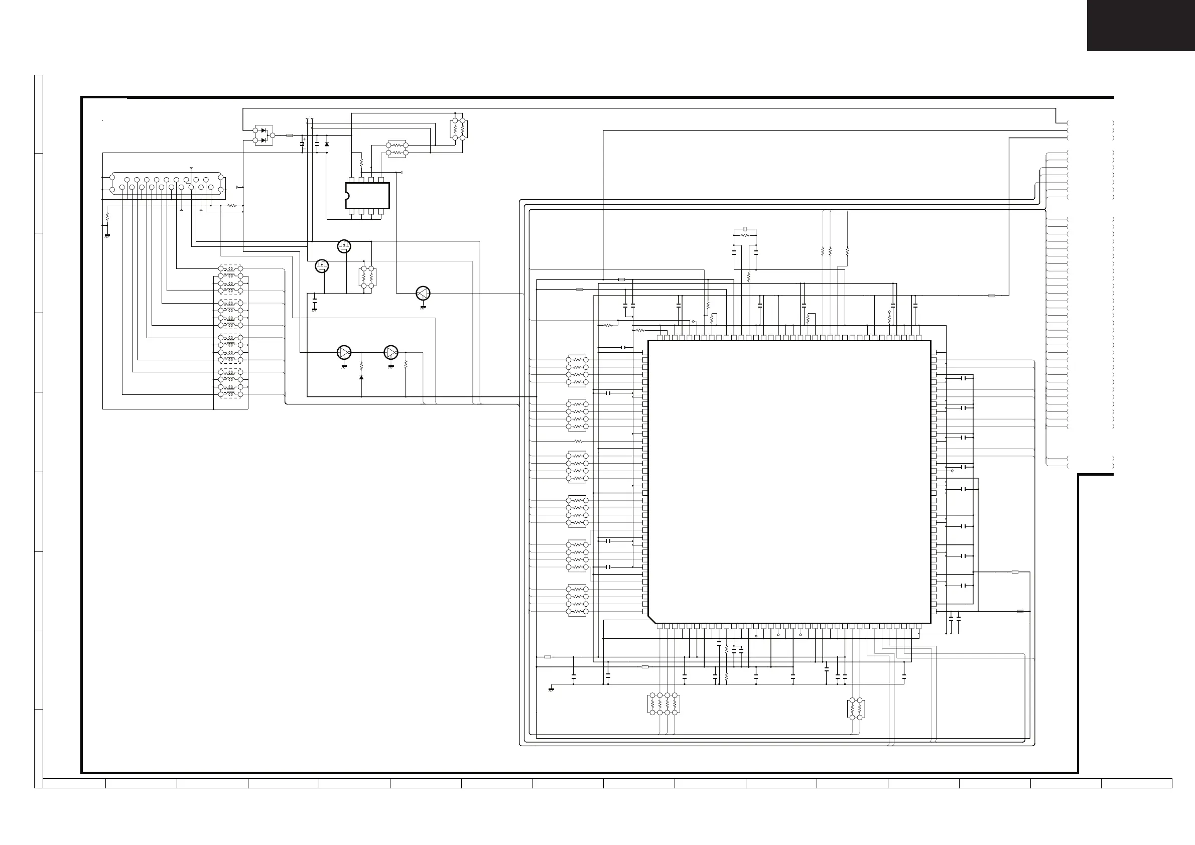
LC-32GD8, LC-32BT8 Main Unit Diagram 1/6 (HDMI)
+3.3V(D)_FB1903
+3.3V(D)_FB1902
RR1X2-
RR1X2+
RR1X1+
RR1X1-
RR1X0+
RR1X0-
RR1XC+
RR1XC-
DINR[7]
DINR[6]
DINR[4]
DINR[5]
DINR[2]
DINR[3]
DINR[1]
DINR[0]
DING[6]
DING[7]
DING[5]
DING[1]
DING[3]
DING[4]
DING[2]
DING[0]
DINB[6]
DINB[0]
DINB[2]
DINB[4]
DINB[3]
DINB[1]
DINB[5]
DINB[7]
HDMI_CLK
DINCK
R0PWR5V
DSDA0
DSCL0
+3.3V_IOVCC
+3.3V_IOVCC
+3.3V_IOVCC
+3.3V_IOVCC
HOTP_CONT1
RR1X2+
RR1X2-
RR1X1+
RR1X1-
RR1X0+
RR1X0-
RR1XC+
RR1XC-
DSCL1
DSDA1
R1PWR5V
SDA3
SCL3
HDMI_WP
HDMI-VS
HDMI-HS
DINEN
DSDA1
DSCL1
HDMI_SCK
HDMI_WS
HDMI_SDO
R1PWR5V
HDMI_RST
HDMI_RST
HDMI_INT
+1.8V_SIICVCC
EDID5V
+3.3V
+3.3VSIIAVCC
+3.3VSIIAVCC
+3.3VSIIAVCC
+3.3V(D)_SIIPVCC
C1948
1000P
C1923
1000P
FB1903
0060TA
C1924
1000P
C1953
0.1u
25V
Z
C1968
1000P
SII9021
HDMI RECEIVER
1
DE
2
HSYNC
3
VSYNC
4
0
OGND
5
OVCC
6
DACOVCC
7
DACAVCC
8
DACAGND
9
VREF
10
RSET
11
COMP
12
DACGNDR
13
DACVCCR
14
AnRPr
15
DACGNDG
16
DACVCCG
17
AnGY
18
DACGNDB
19
DACVCCB
20
AnBPb
21
DACDGND
22
DACDVCC
23
VCC
24
GND
25
OGND
26
OVCC
27
CSDA
28
CSCL
29
DSDA1
30
DSCL1
31
DSDA0
32
DSCL0
33
R1PWR5V
34
R0PWR5V
35
DVCC
36
DGND
37
PVCC0
38
AVCC
39
R0XC-
40
R0XC+
41
AGND
42
AVCC
43
R0X0-
44
R0X0+
45
AGND
46
AVCC
47
R0X1-
48
R0X1+
49
AGND
50
AVCC
51
R0X2-
52
R0X2+
53
AGND
54
PGND
55
PVCC1
56
ANTSTO
57
AVCC
58
R1XC-
59
R1XC+
60
AGND
61
AVCC
62
R1X0-
63
R1X0+
64
AGND
65
AVCC
66
R1X1-
67
R1X1+
68
AGND
69
AVCC
70
R1X2-
71
R1X2+
72
AGND
73
DGND
74
DVCC
75
OGND
76
OVCC
77
MUTEOUT
78
SPDIF
79
VCC
80
GND
81
NC
82
NC
83
NC
84
SD0
85
WS
86
SCK
87
MCLKIN
88
MCLKOUT
89
OVCC
90
OGND
91
GND
92
VCC
93
NC
94
DVCC2
95
DGND2
96
XTALOUT
97
XTALIN
98
XTALVCC
99
REGVCC
100
NC
101
TEST
102
RESET#
103
SCDT
104
INT
105
VCC
106
GND
107
CLK48B
108
OGND
109
OVCC
110
Q23
111
Q22
112
Q21
113
Q20
114
VCC
115
GND
116
Q19
117
Q18
118
Q17
119
Q16
120
OGND
121
ODCK
122
OVCC
123
Q15
124
Q14
125
Q13
126
Q12
127
GND
128
VCC
129
Q11
130
Q10
131
Q9
132
Q8
133
Q7
134
OVCC
135
OGND
136
Q6
137
Q5
138
GND
139
VCC
140
Q4
141
Q3
142
Q2
143
Q1
144
Q0
R1917
10K
C1956
1000P
L1903
FA134WJ
1
2
3
4
5
6
7
8
C1955
1000P
C1913
1000P
R1933
1.5K
C1928
0.01u
FB1904
0060TA
R1932
1M
C1943
1000P
D1903
1SS355
+1.8V
C1930
1000P
SDA3
HDMI_INT
C1912
1000P
C1929
12P
(CH)
FB1901
0060TA
C1934
12P
(CH)
C1974
1000P
L1902
FA134WJ
1
2
3
4
5
6
7
8
R1929
4.7K
R1906
47K
EDID5V
R1908
10K
SCL3
C1927
1000P
HDMI_RST
C1941
1000P
L1901
FA134WJ
1
2
3
4
5
6
7
8
FB1906
0060TA
HOTP_CONT0
Q1909
DTC144EE
R1930
91 F
C1975
1000P
C1946
1000P
C1916
1000P
Q1907
DTC144EE
FB1905
0060TA
C1959
0.1u
25V
Z
+3.3V
D1901
DAN202K
1
2
3
R1926
4.7K
C1960
1000P
C1947
0.1u
25V
Z
C1967
1000P
*C1901
47u
16V
ASY
C1965
1000P
R1928
22K
*C1906
0.1u
25V Z
Q1905
DTC144EE
C1917
1000P
R1903
1.5K
FB1909
0210TA
SC1901
ZA117WJ
1
2
3
4
5
6
7
8
9
10
11
12
13
14
15
16
17
18
19
20
21
22
23
C1903
0.1u
25V
Z
X1901
SCA108WJ
28.322MHz
R1931
91
F
C1971
1000P
C1973
1000P
D1905
1SS355
FB1908
0060TA
C1969
1000P
Q1903
2SK536
SD
G
R1901
2.7K
R1935
33
C1936
1000P
Q1901
2SK536
S
D
G
L1904
FA134WJ
1
2
3
4
5
6
7
8
R1920
10
1
2
3
4
5
6
7
8
R1921
10
1
2
3
4
5
6
7
8
R1922
10
1
2
3
4
5
6
7
8
R1923
10
1
2
3
4
5
6
7
8
R1924
10
1
2
3
4
5
6
7
8
R1925
10
1
2
3
4
5
6
7
8
R1919
10
DINR[7]
DINR[6]
DINR[5]
DINR[4]
DINR[3]
DINR[1]
DINR[2]
DINR[0]
DING[7]
DING[3]
DING[5]
DING[0]
DING[6]
DING[4]
DING[1]
DING[2]
DINB[0]
DINB[1]
DINB[5]
DINB[2]
DINB[4]
DINB[7]
DINB[6]
DINB[3]
DINCK
HDMI_WP
HDMI_WS
HDMI_SDO
HDMI_SCK
FB1907
0210TA
HOTP_CONT1
HDMI-VS
DINEN
HDMI-HS
R1914
10
2
1
3
4
R1913
47K
2
1
3
4
R1911
470K
2
1
3
4
R1934
100
2
1
3
4
C1935
10u
KZA073WJ
16V
C1921
10u
16V
KZA073WJ
C1910
10u
16V
KZA073WJ
C1918
10u
16V
KZA073WJ
C1931
10u
16V
KZA073WJ
C1919
10u
16V
KZA073WJ
R1927
10
1
2
3
4
5
6
7
8
TL1909
TL1915
TP1913
TP1916
TP1909
TP1911
TL1911
TP1901
TP1902
TP1907
TP1903
TP1908
TP1904
R3306
22
R3307
22
R3308
22
DUNTKD890WE06
R1936
33
R1937
10K
24LC2BIN
EEPROM
1
A0
2
A1
3
A2
4
VSS
5
SDA
6
SCL
7
WP
8
VCC
TO MAIN 6/6
TO MAIN 3/6
TO MAIN 2/6
Ver.N2 (2006.05.16)
IC1905
IC1901
HDMI
(MAIN 1)
0
0
0
3.3
3.3
3.3
0
0
0
3.3
0
3.3
0
0
3.3
0
0
3.3
0
0
1.8
1.8
0
0
3.3
3.3
3.3
3.3
3.3
3.3
3.3
0
0
1.8
0
3.3
3.3
3.3
3.3
0
3.3
3.3
3.3
0
3.3
3.3
3.3
0
3.3
3.3
3.3
0
0
3.3
0
3.3
3.3
3.3
0
3.3
3.3
3.3
0
3.3
3.3
3.3
0
3.3
3.3
3.3
0
0
1.8
0
3.3
0
0
1.8
0
0
0
0
0
0
0
0
0
3.3
0
0
1.8
0
1.8
0
1.75
1.67
3.3
3.3
0
0
3.3
0
0
1.8
0
0
0
3.3
3.3
3.3
3.3
0
1.8
0
3.3
3.3
3.3
3.3
0
0
3.3
3.3
3.3
3.3
3.3
0
1.8
0
0
3.3
3.3
0
3.3
0
3.3
3.3
0
1.8
3.3
0
0
3.3
3.3
0
5.0
0
0
0
2.4
0
2.4
0
3.2
4.5
3.3
3.2
4.5
3.3
0 0 0 0
5.05.05.05.0
LC-32GD8E
CONFIDENTIAL
Ver.N2 (2006.05.16)
1
2 3 4 5 6 7 8 9 10
11
12
13
14
15 16
I
H
G
F
E
D
C
B
A

Related product manuals