EasyManua.ls Logo

Sharp LC-32GD8EE - Page 117

Sharp LC-32GD8EE
169 pages
Print Icon
To Next Page IconTo Next Page
To Next Page IconTo Next Page
To Previous Page IconTo Previous Page
To Previous Page IconTo Previous Page
Loading...
117
LC-32/37GD8E/RU
LC-32/37BT8E/RU
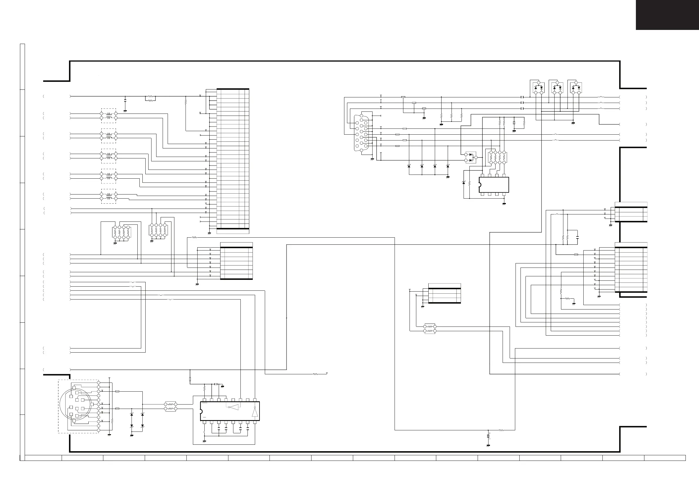
LC-37GD8, LC-37BT8 Main Unit Diagram 4/6 (FRC) Not used for these models
LC-37GD8, LC-37BT8 Main Unit Diagram 5/6 (MISC)
RS232C_3.3V
LVDS0P
LVDS0N
LVDSCP
LVDS1N
LVDS1P
LVDS2N
LVDS2P
LVDSCN
LVDS3N
LVDS3P
PCVV
RGB_V
APC_B
PCVHRGB_H
EDID5V
EDID5V
DSUB_DDC5V
RIN3+
RIN3-
CLKIN+
CLKIN-
RIN2+
RIN2-
RIN1+
RIN1-
RIN0+
RIN0-
SEL_LVDS
IR_VCC
LCD+5V
LEDPOWG
LEDOPC
LEDSLP
LEDPOWR
TEMP1
TEMP2
TEMP2
TEMP3
QSSET
FRAME
APC_G
APC_R
BU_SDA3
PCVG
PCVR
PCVB
PC_DDC5V
LCD5V
KEY_PSW
KEY_ETC
BU+3.3V
BU+3.3V
BU+3.3V
R2301
0
*
TL2306
C2302
0.1u
25V
Z
TL2301
D2303
EX1271CE
12V
R2307
100
2
1
3
4
R2314
10K
TL2302
C2304
0.1u
25V
Z
TL2305
C2301
0.1u
25V
Z
D2304
EX1271CE
12V
D2302
EX1271CE
12V
FB2309
0061TA
C2305
0.1u
25V
Z
D2301
EX1271CE
12V
TL2303
TL2304
C2303
0.1u
25V
Z
1
EN
2
C1+
3
V+
4
C1-
5
C2+
6
C2-
7
V-
8
910
NC
1112
NC
1314
GND
15
VCC
16
SHDN
BU+3.3V
RXD
TXD
P1_6
P1_7
CADC3
CADC4
RESET_N
R2343
1K F
R2342
10K
P1_4
KEY_PSW
LEDPOWR
LEDSLP
LEDOPC
LEDPOWG
OPCIN
SC2301
DA036WJ
12 3456 78 9 10 1112
IRIN
R2339
1K
R2341
39K
PWMOUT
R2334
10K
C2306
10u
16V
ASX
QSSET
LCDLR
LVDSCN
LVDS3N
LVDS1P
LVDS1N
LVDS0N
TEMP2
LVDS2P
L2302
FA071WJ
1
2
3
4
TEMP3
R2302
10K
1
2
3
4
5
6
7
8
LVDS0P
FRAME
LVDS3P
LCD5V
TEMP1
LVDS2N
L2301
FA071WJ
1
2
3
4
L2303
FA071WJ
1
2
3
4
R2309
4.7K
L2304
FA071WJ
1
2
3
4
LCDUD
L2305
FA071WJ
1
2
3
4
LVDSCP
R2313
10
R2305
10K
1
2
3
4
5
6
7
8
D2311
1SS226
1 2
3
D2306
EX1247CE
5.6V
D2308
EX1247CE
5.6V
TL2316
FB2306
0061TA
TL2315
C2307
0.1u
FL2303
N0003TA
FB2307
0061TA
TL2313
D2310
1SS226
1 2
3
TL2314
FB2308
0061TA
R2322
75
1/4W
R2332
47K
D2309
DAN202K
1
2
3
1 2 3 4
GND
5
SDA
6
SCL
7
VCLK
8
VCC
FL2302
N0003TA
R2335
1K
TL2311
TL2317
PCVH
R2333
100
CH
1
2
3
4
5
6
7
8
FB2305
0061TA
TL2319
FL2301
N0003TA
D2312
1SS226
1 2
3
PCVV
SC2303
NA229WJ
1
2
3
4
5
6
7
8
9
10
11
12
13
14
15
16
17
EDID5V
D2307
EX1247CE
5.6V
R2325
75
1/4W
R2329
10K
TL2312
D2305
EX1247CE
5.6V
R2324
75
1/4W
TL2318
R2326
1K
TL2308
TL2309
TL2310
VIN20
VIN21
VIN19
RJ2302
RJ2301
RJ2303
RJ2304
RJ2305
TL2322
TL2323
TL2324
TL2325
TL2326
TL2327
TL2328
TL2329
TL2330
TL2331
TL2332
TL2333
TL2334
TL2335
TL2336
TL2337
TL2338
TL2339
TL2340
TL2341
TL2342
TL2343
TL2344
TL2353
TL2355
TL2356
TL2357
TL2358
TL2359
TL2360
TL2361
TL2362
TL2363
TL2364
TL2365
TL2366
TL2367
FB2302
0061TA
FB2301
0061TA
RJ2307
RJ2306
FB2310
0210TA
P2301
NA341WJ
SH
1
2
TEMP1
3
TEMP2
4
TEMP3
5
ROMSEL0
6
OSEN
7
ROMSEL1
P2305
NA493WJ
LV
1
2
3
4
5
6
7
8
9
10
11
12
13
14
15
16
17
18
19
20
21
22
23
24
25
26
27
28
29
30
31
32
R2315
100
2
1
3
4
TL2345
TL2346
P2302
NA337WJ
KM TO KEY
1
KEY_PSW
2
KEY_ETC
3
GND
P2303
NA344WJ
RA TO LED/IR/OPC
1
R/C
2
BU+3.3V
3
GND
4
LED-G
5
POWR_LED
6
OPC
7
SLEEP_LED
8
NC
9
LED_OPC
10
GND
P2306
N0565FJ
1
2
3
C2308
0.1u
C2309
0.1u
C2310
0.1u
R2321
0
RJ2309
RJ2308
RJ2311
RJ2310
BU_SDA3
BU_SCL3
D2313
EX1247CE
5.6V
+3.3V
C2312
0.1u
25V
Z
*C2318
100P
(CH)
FB2304
0.56
1/4W
FB2303
0.56
1/4W
TO MAIN 6/6
TO MAIN 3/6
TO MAIN 6/6
TO MAIN 2/6
TO MAIN 6/6
TO MAIN 3/6
TO MAIN 2/6
TO MAIN 3/6
TO MAIN 2/6
TO MAIN 6/6
Ver.N2 (2006.05.16)
IC2301
ISL83220
IC2303
BR24C21F
DUNTKD890WE07
1366x768 PANEL Connect
JAE FIX30M
0 6.2 6.2 3.3 5.7 -3.0 -5.6 0
3.3
03.30-5.603.33.3
0 0 0 0
4.24.4
0
4.4
LC-37GD8E
MISC
(MAIN 5)
CONFIDENTIAL
Ver.N2 (2006.05.16)
1
2 3 4 5
6
7 8 9 10
11
12
13
14
15 16
I
H
G
F
E
D
C
B
A

Related product manuals