EasyManua.ls Logo

Sharp LC-32GD8EE - Page 129

Sharp LC-32GD8EE
169 pages
Print Icon
To Next Page IconTo Next Page
To Next Page IconTo Next Page
To Previous Page IconTo Previous Page
To Previous Page IconTo Previous Page
Loading...
129
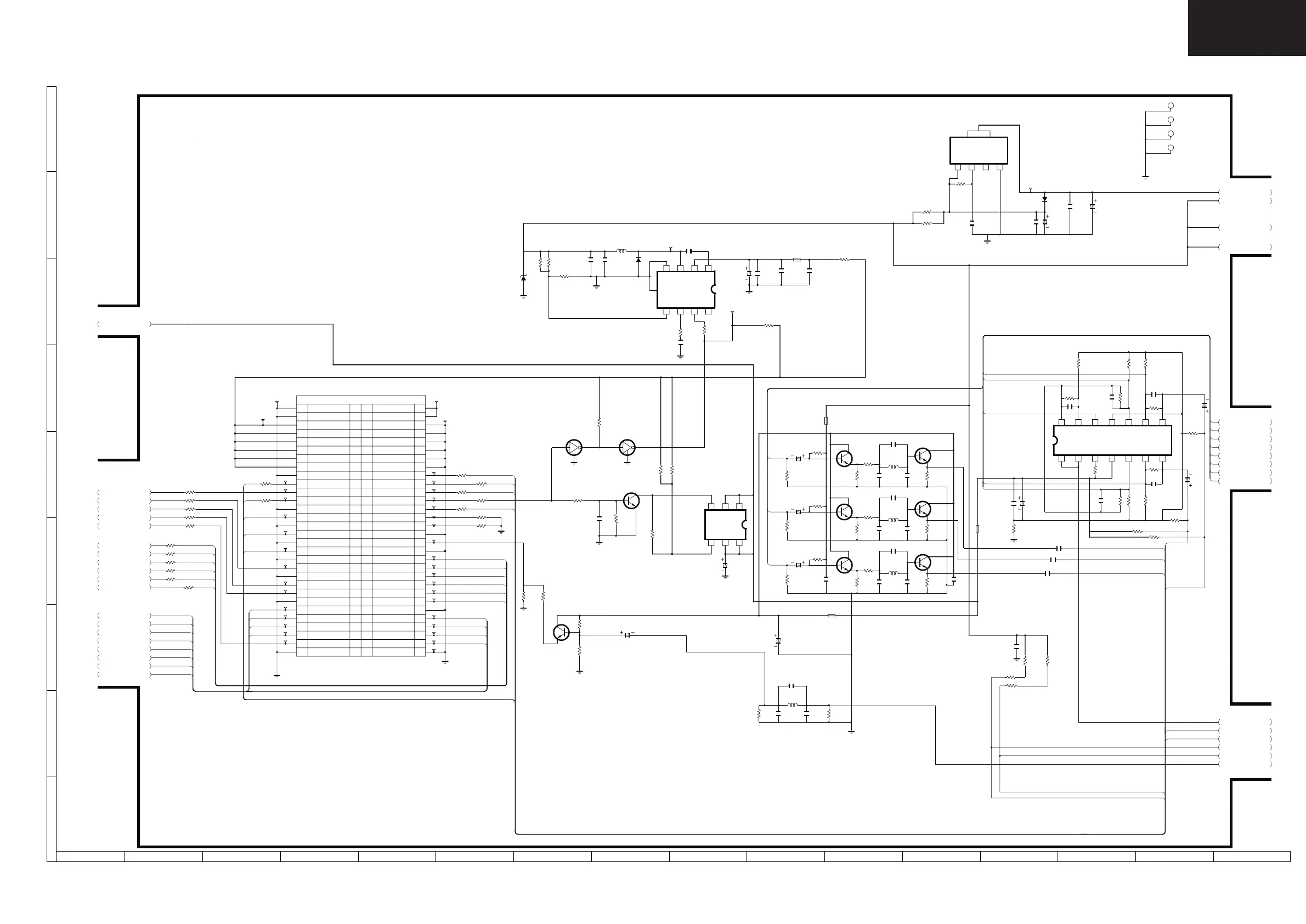
LC-32/37GD8E/RU
LC-32/37BT8E/RU
LC-32/37GD8, LC-32/37BT8 Digital Unit Diagram 4/4 (AUDIO / VIDEO OUT / REG)
FED[4]
FED[2]
FED[6]
FED[0]
FED[5]
FED[3]
FED[1]
FED[7]
VBGFIL
VMID
LEFTP
LEFTM
RIGHTP
RIGHTM
ASPECT
RSTIN
CVBS
FED[1]
FED[4]
FED[6]
FED[3]
FED[5]
FED[7]
MUTE
GPIO01
TVSDA
TVSCL
ASPECT
TVSCL
TVSDA
AOUTL
FEERROR1
GPIO00
FERESET1
RSTIN
I2CSCL1
I2CSDA1
GPIO00
FEERROR1
FERESET1
ROUT
GOUT
BOUT
BB
GG
RR
RR
GG
+12V
GPIO01
AOUTR
BOUT
GOUT
ROUT
FED[0]
FED[2]
P5V
P1V8
B
AOUTR
AOUTL
P5VAUD
P3V3
P3V3
P3V3
I2CSDA1
I2CSCL1
+5V
P5VVID
GNDAUD
DUNTKD628WE01
R4633
4.7K
R4629
47
R4630
47
R4638
4.7K
TVSCL
TVSDA
R4617
330
F
R4616
47
10u
16V
C4606
ASX
FED[0]
GPIO1
GPIO0
FEOFF
I2CSDA
I2CSCL
FESTROUT
FEVALID
FEERROR
FERESET
FED[6]
FED[7]
FED[5]
FED[4]
FED[3]
FED[2]
FED[1]
TSH73CPT
1 2 3 4 5 6 7
89
1011121314
10u
16V
C4634
ASX
10u
16V
C4635
ASX
R4639
470
R4636
24
R4631
470
R4634
24
R4640
470
R4637
24
R4635
24R4632
47010u
16V
C4623
ASX
R4626
0
ASPECT
RSTIN
P1V8
CVBS
VBGFIL
RIGHTP
RIGHTM
R
LEFTP
LEFTM
G
B
SC4601
WA202WJ
TO MAIN
1
+12V
2
GND
3
+12V
4
GND
5
GND
6
+5V
7
GND
8
+5V
9
GND
10
+5V
11
GND
12
+5V
13
GND
14
+5V
15
GND
16
+5V
17
ASPECT
18
GND
19
SCL
20
RESETn
21
SDA
22
IRQ
23
POWON
24
R
25
L
26
GND
27
V
28
BLUE
29
H
30
GND
31
GND
32
GREEN
33
CVBS
34
GND
35
GND
36
RED
37
FERESETn
38
GND
39
FESCL
40
FEOFF_X4M
41
FESDA
42
GND
43
FEGP0_COMP
44
FESTR_PSYNC
45
FEGP1_LOCK
46
FEVAL_DEN
47
FEERR_UNCOR
48
GND
49
GND
50
FED0
51
FED1
52
FED2
53
FED3
54
FED4
55
FED5
56
FED6
57
FED7
58
FECLK
59
GND
60
GND
MUTE
IRQ
C4711
10u
16V
KZA073WJ
R4702
27K F
D4702
SFPA73
C4701
22u
6.3V
KZA070WJ
C4707
68u
10V
AAPD
R4703
15K
F
22uH
L4701
PA214WJ
R4701
470K F
C4709
10u
16V
KZA073WJ
R4707
10K
R4713
1
1/2W
C4708
0.1u
C4705
1500P
C4706
0.1u
25V
Z
TL4701
C4702
1u
16V
R4710
100
FB4701
0250TA
Q4701
DTC144EE
TL4702
R4712
10K
Q4702
DTC144EE
R4708
3.3K
Q4703
2SC3928AR
SSM6J51TU
1
D
2
D
3
G
4
S
5
D
6
D
R4706
10K
R4704
5.6K
R4717
100
C4716
1u
10V
TL4703
C4715
47u
6.3V
ASX
C4717
22u
6.3V
ASX
C4713
0.1u
R4716
0
1/2W
*D4703
HSU119
C4714
0.1u
R4715
0
1/2W
TL4603
TL4601
FECLK
R4711
0
1/2W
R4709
0
1/2W
47u
16V
C4710
ASY
P3V3
TL4602
R4657
100
R4658
100
C4607
47P
(CH)
C4608
10P
(CH)
C4610
47P
(CH)
C4611
33P
(CH)
C4612
33P
(CH)
C4613
33P
(CH)
C4617
82P
(CH)
C4618
82P
(CH)
C4619
82P
(CH)
C4614
6P
(CH)
C4615
6P
(CH)
C4616
6P
(CH)
C4621
0.1u
C4626
0.1u
C4627
3300P
C4628
3300P
C4632
3300P
C4633
3300P
C4629
0.1u
Z
R4618
330
F
R4619
270
F
R4620
270
F
R4621
270
F
R4622
270
F
R4623
270
F
R4624
270
F
R4627
2.7K
F
R4628
2.4K
F
R4646
47
R4647
47
R4648
47
R4649
47
R4650
47
R4645
47
R4601
47
R4602
47
R4604
47
R4603
47
R4605
47
R4607
47
R4608
47
R4606
47
R4643
47
R4609
47
R4644
47
10uH
L4601
D9Mj
FB4601
A215WJ
FB4602
A215WJ
5.6uH
L4603
D9Mj
5.6uH
L4604
D9Mj
5.6uH
L4605
D9Mj
R4659
330
C4636
0.1u
C4637
0.1u
C4638
0.1u
Q4606
2SC3928AR
Q4604
2SC3928AR
Q4602
2SC3928AR
R4662
270
F
R4663
270
F
R4664
270
F
Q4601
2SC3928AR
Q4603
2SC3928AR
Q4605
2SC3928AR
R4666
10K
FB4603
A215WJ
R4668
10K
R4670
10K
C4622
10u
16V
KZA073WJ
C4624
0.1u
Z
Q4607
2SC3928AR
R4672
10K
R4673
10K
C4703
0.1u
Z
R4705
10K
R4674
0
D4701
EX1234CE
3.6V
MP1583
1
BS
2
IN
3
SW
4
GND
5
FB
6
COMP
7
EN
8
NC
R4675
47
TL4606
TL4605
TL4637
TL4607
TL4608
TL4609
TL4610
TL4611
TL4612
TL4613
TL4614
TL4615
TL4616
TL4617
TL4618
TL4619
TL4620 TL4631
TL4630
TL4629
TL4628
TL4632
TL4627
TL4626
TL4625
TL4624
TL4623
TL4622
TL4621
TL4636
TL4635
TL4634
TL4633
P3V3
P3V3
TL4604
P5V
PQ018ENA
1 2
3
4 5
10u
16V
C4625
ASX
10u
16V
C4639
ASX
10u
16V
C4640
ASX
10u
16V
C4641
ASX
LUG4604
LUG4601
LUG4602
LUG4603
R4665
160
F
R4667
160
F
R4669
160
F
R4660
47K
R4661
47K
R4651
18K
R4652
18K
TO 1/4
TO 1/4
TO 1/4
TO 3/4
TO 1/4
TO 3/4
TO 2/4
Ver.N2 (2006.04.12)
LC-32P70E/LC-26P70E/LC-37P70E
LC-32GD9E/LC-37GD9E
LC-32GD8E/LC-37GD8E
AUDIO/VIDEO OUT / REG
(DIGITAL 4/4)
IC4604
IC4702
IC4701
DC-DC 3.3V
IC4704
2.4 2.4 5.18 5.18 0.5 0.5 2.04
2.040.50.5
01.231.232.63
0
0.03
3.27
0
5.17
0.03
0
0.02
0.64
5.185.180.02
5.18 5.18 5.18
1.68
5.182.34
1.68
5.182.34
1.68
5.182.34
2.34
5.18
3.0
2.34
5.18
3.0
2.34
5.18
3.0
1.79
5.18
2.5
6.94.933.35
0
1.25 1.19 5.17 1.49
3.3 3.3
1.8
0 0
CONFIDENTIAL
Ver.N2 (2006.04.12)
1
2 3 4 5
6
7 8 9 10
11
12
13
14
15 16
I
H
G
F
E
D
C
B
A

Related product manuals