EasyManua.ls Logo

Sharp LC-60LE635E - LC-60 LE638 E Dimensions

Sharp LC-60LE635E
74 pages
Print Icon
To Next Page IconTo Next Page
To Next Page IconTo Next Page
To Previous Page IconTo Previous Page
To Previous Page IconTo Previous Page
Loading...
LC-60LE635E/636E/638E (1st Edition)
3 – 2
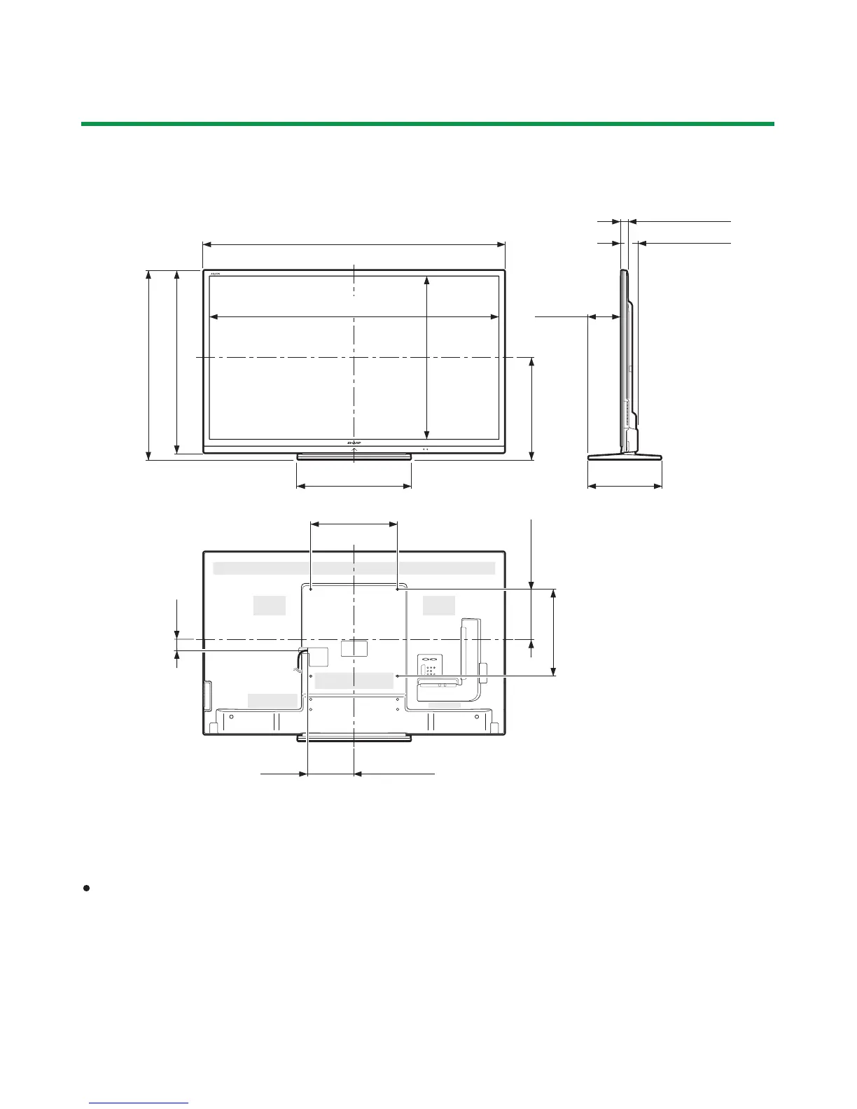
[2] DIMENSIONS (LC-60LE638E)
Dimensional drawings
LC-60LE638E
(1329.12)
*1
(1329,12)
*1
(872)
(839)
(1383)
(747.63)
*1
(747,63)
*1
(536)
(470)
(400)
(52)
(215)
(230)
(400)
(149)
(333)
(72.0) (72,0)
(26.4) (26,4)
*2
Active area
Thinnest part
NOTE
Dimensions do not include pr otrusions such as screws and some parts.
*1
*2
7PKVOO

Other manuals for Sharp LC-60LE635E

Related product manuals