EasyManua.ls Logo

Sharp MX-M550N - MFP Controller

Sharp MX-M550N
412 pages
Print Icon
To Next Page IconTo Next Page
To Next Page IconTo Next Page
To Previous Page IconTo Previous Page
To Previous Page IconTo Previous Page
Loading...
MX-M700N ELECTRICAL SECTION 11 – 2
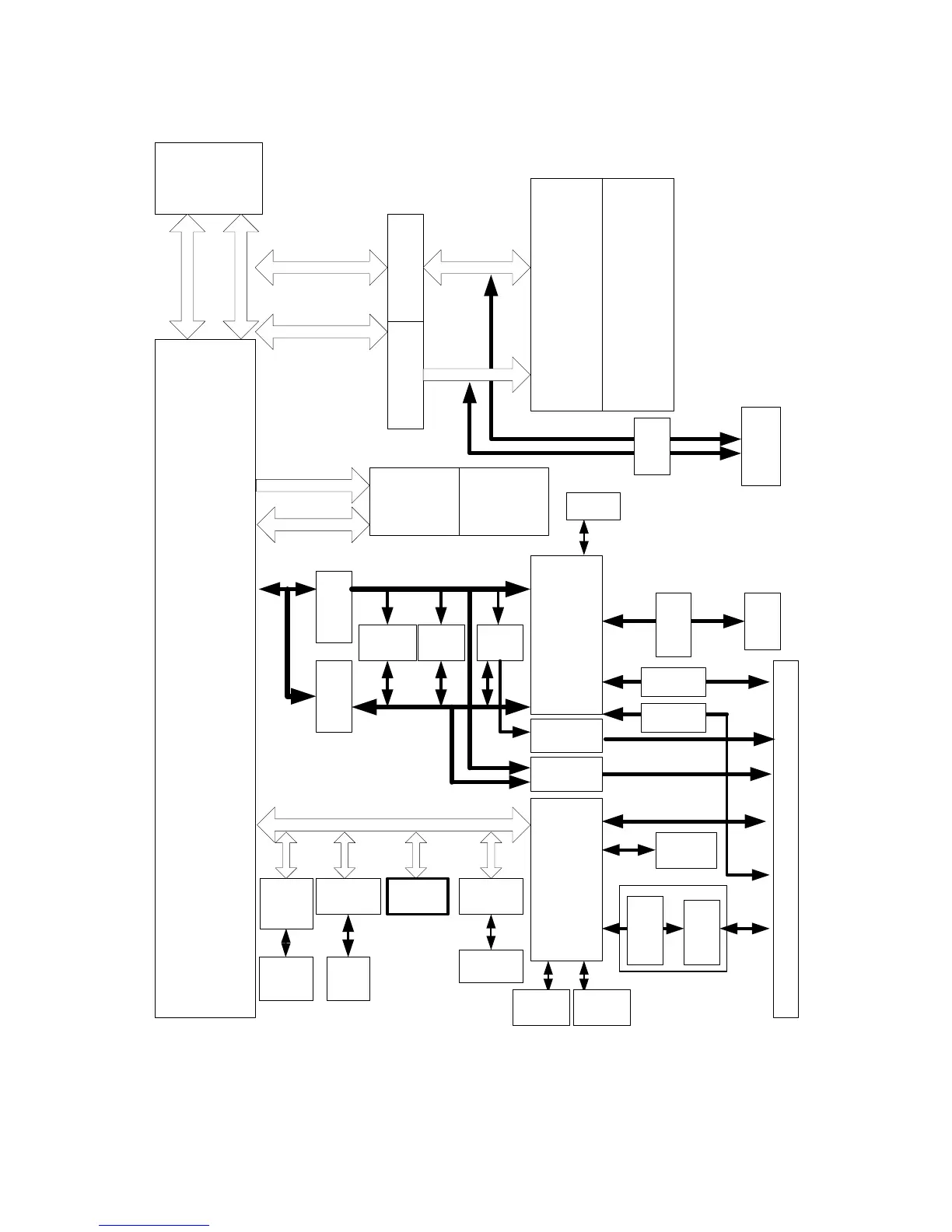
B. MFP controller
CPU
RM7065C-
600MHz
SYSTEM
Controller
Dracula
ON BOARD
(128MB)
SDRAMSDRAM
DIMM(168pin)
128/256MB
MD[63:0]
MAA[12:0]
SysCMD[8:0]
SysAD[63:0]
SysAD[54:34]
Address Buffer Gate
LA[22:2]
MEMD[31:0]
Flash
DIMM
(16MB x1
8MB x2)
BOOT
MAIN
OPTION
Mask
DIMM
(32MB)
PS Kanji
LDATA[15:0]
Address
Buffer
Data
Gate
EEPROM
(64Kbit)
I/O G/A
(ASIC1)
IOA[17:0]
IOD[15:0]
232C
Driver
RIC I/F
Engine I/F Scanner I/F
TD62503F
PCI Bus
ICU ASIC
SDRAM
(32MB)
PM1075
IDE
Controller
Soft-NIC
RTC
LCD
Controller
FAX I/F
SysAD[31:0]
SRAM
(4Mbit)
USB
Controller
USB I/F
CPLD
(EPM3064A)
PM-22A PM-22B
IDE
I/F
CPU I/F
Memory I/F
Local I/F
PCI I/F
Buffer
TD62503F
PM2060i (For 55/62ppm)
USB
HOST
Controller
USB
HOST I/F
D/A
Converter
CPLD

Table of Contents

Related product manuals