EasyManua.ls Logo

Sharp PRO-60X5FD - Page 14

Sharp PRO-60X5FD
88 pages
Print Icon
To Next Page IconTo Next Page
To Next Page IconTo Next Page
To Previous Page IconTo Previous Page
To Previous Page IconTo Previous Page
Loading...
PRO-60/70X5FD
4 – 3
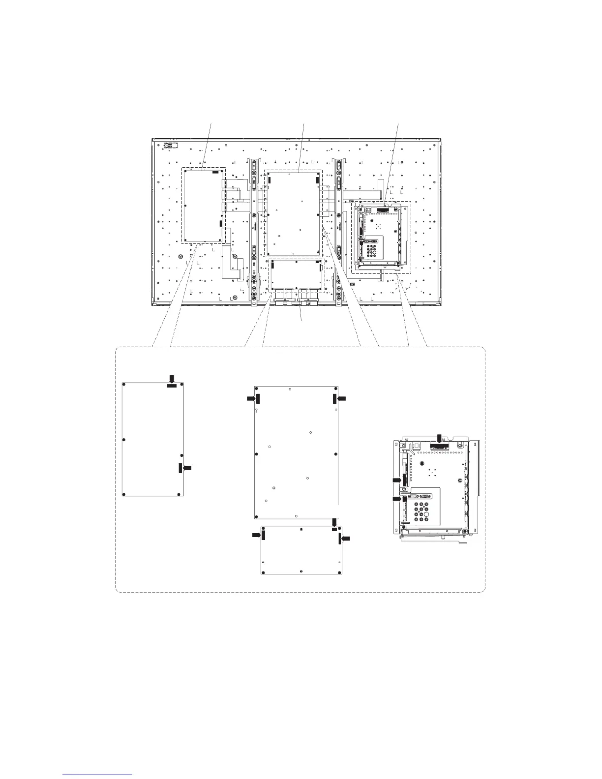
3. Removing of Connectors
1. Disconnect the following connectors from the MAIN Unit. (LW, PD, PL)
2. Disconnect the following connectors from the POWER Unit. (PD, LA)
3. Disconnect the following connectors from the LCD CONTROL Unit. (LB, LW, PL)
4. Disconnect the following connectors from the LED DRIVE Unit. (LA, LB)
[LB]
[PD]
[LA]
[LW]
[PL]
LED DRIVE Unit
POWER Unit
LCD CONTROL Unit
MAIN Unit
[PD]
[LA]
[LW]
[LB]
[PL]
LED DRIVE Unit
LCD CONTROL
Unit
POWER Unit
MAIN Unit

Other manuals for Sharp PRO-60X5FD

Related product manuals