EasyManua.ls Logo

Sharp W/DIVX Series - Page 17

Sharp W/DIVX Series
44 pages
Print Icon
To Next Page IconTo Next Page
To Next Page IconTo Next Page
To Previous Page IconTo Previous Page
To Previous Page IconTo Previous Page
Loading...
ELECTRICAL ADJUSTMENTS
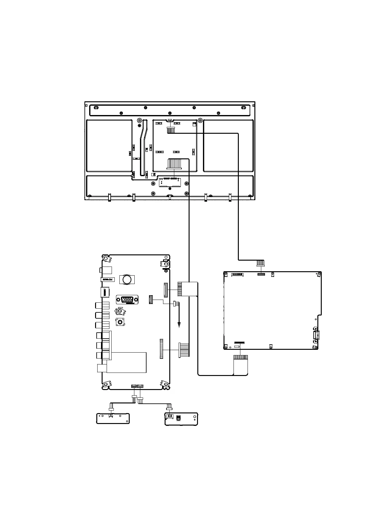
3. ELECTRICAL ADJUSTMENT PARTS LOCATION GUIDE (WIRING CONNECTION)
LCD PANEL
CN10
CN4
CN12
CN18
CN5
AV2
CN11
CN9
CN6
CN7
AV3
AV1
T1
OPERATION PCB
REMOCON PCB
MAIN UNIT
POWER PCB
OS2201
CP2201
CP2202
CD2801
SPEAKER
CP7001
CP3806
D-2

Related product manuals