EasyManua.ls Logo

Siemens 6SE7022-1EC85-1AA0 - 8.2.5 Replacing thyristor blocks

Siemens 6SE7022-1EC85-1AA0
274 pages
To Next Page IconTo Next Page
To Next Page IconTo Next Page
To Previous Page IconTo Previous Page
To Previous Page IconTo Previous Page
Loading...
Maintenance 09.02
8-12 Siemens AG 6SE7087-6AK85-1AA0
Rectifier/Regenerating Unit Operating Instructions
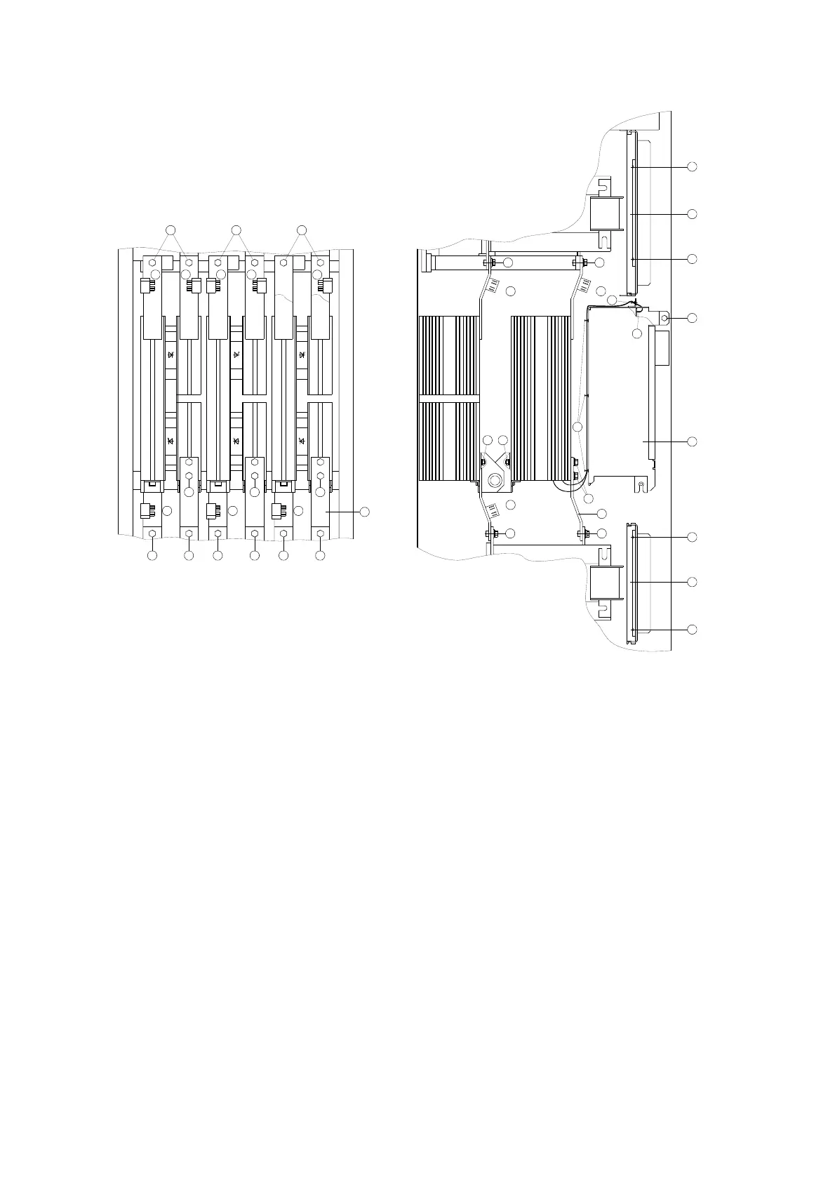
8.2.5 Replacing thyristor blocks
8.2.5.1 Disassembling the thyristor blocks for size H
G
K
G
K
G
K
G
K
G
K
G
K
12
13
3
2
2
4
7
8
5
5
13
7
12
8
7
8
6
1
14 11
12
2
2
1
13 8
G
K
7
G
K
7
G
K
12
G
K
12
G
K
12
13 8
13 13
8 8
9 9 9
9
10
10
Front thyristor block, level A (weight of a thyristor block, approx. 9.5 kg)
Swing out the two doors a by removing two M4 slit Torx screws s in each case.
Detach cable d from the modules and the screen fixture.
Remove 2 M6 hexagon-head bolts f and swing out electronics box as far as the stop.
Only on disassembling the central thyristor block, open 4 twisted cables g and detach cable h for the two
thermistors that are only located on the central thyristor block.
Unplug the gate and cathode cables (G, K) j.
Remove 3 M8 hexagon-head bolts k
Loosen the two M8 hexagon-head screws l, push rail ; approx. 150 mm upwards and swing the thyristor
block out forwards.
Loosen M6 nut A and pull the thyristor block out upwards at an angle.
Rear thyristor block, level B (weight of a thyristor block, approx. 9.5 kg)
Unplug the gate and cathode cables(G, K) S .
Remove 3 M8 hexagon-head bolts D .
Loosen M6 nut F and pull the thyristor block out upwards at an angle.
The thyristor blocks are installed in the reverse order.
https://www.aotewell.com
AoteWell Automation Sales Team
Sales@aotewell.com
AoteWell LTD
Buy Siemens PLC HMI Drives at AoteWell.com
https://www.aotewell.com

Table of Contents

Related product manuals