EasyManua.ls Logo

Siemens 6SE7041-0EH85-1AA0 - Dimension Drawings

Siemens 6SE7041-0EH85-1AA0
274 pages
To Next Page IconTo Next Page
To Next Page IconTo Next Page
To Previous Page IconTo Previous Page
To Previous Page IconTo Previous Page
Loading...
05.00 Transport, Unpacking and Assembly
Siemens AG 6SE7087-6AK85-1AA0
2-3
Rectifier/Regenerating Unit Operating Instructions
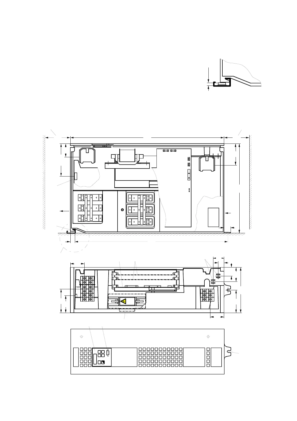
2.4 Dimension drawings
SIEMENS
SIEMENS
WA RNUNG
DA NGER
V1 W1U1 DC1PE
L2 L3L1 L+
L-
WARNUN G
DANGE R
X9
X1
82
54
16
23
25
600
126,7
180
X9
X1
X30.1
X30.2
2)
3)
3)
4)
6)
1 2 3 4 5
69
43
90
34
56
350
86
52
100 100600
1)
F2
F1
R100
1V2
1W21U2
1T2 1T31T1
X4
X4
F10
A10
A10
A23
V11+14 V13+16 V15+12
V21+24
V23+26
V25+22
X20.1
X47
X48
R77
R78
R75
R76
A23
X300
5)
F10
54
Z
Options
PMU
max. 5,7
Detail Z
1) Mounting hole for screw M6.
2) Hook (suspension) for mounting on a
g-rail according to EN50035
3) Space required for cooling the unit.
4) Screen connection for two cables.
5) Shock-hazard protection
6) Connector for power supply DC24V and
main contactor
No displacement of the centre of gravity
Weight: refer to section 14 (technical data)
Dimension: mm
View without front cover
Exhaust air
Air intake
Figure 2.2 Dimension drawing, size C
https://www.aotewell.com
AoteWell Automation Sales Team
Sales@aotewell.com
AoteWell LTD
Buy Siemens PLC HMI Drives at AoteWell.com
https://www.aotewell.com

Table of Contents

Related product manuals