EasyManua.ls Logo

Siemens LMV51.000C2 - Operating modes load controller; Operating mode 1 (ExtLC X5-03)

Siemens LMV51.000C2
327 pages
To Next Page IconTo Next Page
To Next Page IconTo Next Page
To Previous Page IconTo Previous Page
To Previous Page IconTo Previous Page
Loading...
101/327
Building Technologies Basic Documentation LMV5... CC1P7550en
7 Boiler controller / load controller 22.05.2018
7.3 Operating modes load controller
For the connection of a load controller, the LMV5 can be operated in different
configurations. In that case, the internal load controller, different external load
controllers, or a load controller via BACS can be used.
To ensure all involved bus users (LMV5, load controller, AZL5) are correctly configured,
global parameter LC_OptgMode is defined.
This parameter is set on the AZL5 when selecting the operating mode and is delivered
to all bus users involved. Then, each bus user makes the configurations required for
the relevant operating modes.
Parameter LC_OptgMode (ExtLC X5-03/Int LC/Int LC Bus/Int LC X62/Ext LC
X62/Ext LC Bus)
External load controller.
In this operating mode, an external load controller (e.g. RWF5) is used. The internal
control algorithm is not active.
The internal temperature limiter function can be activated.
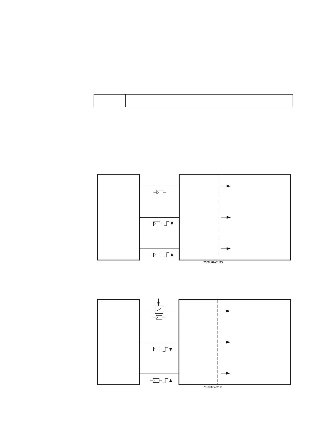
The external load controller must have 3 contact outputs which – as shown below –
must be connected to the LMV5.
External
load controller
Basic unit LMV51...
ON/OFF
or
stage 1
OPEN
or
stage 2
CLOSED
or
stage 3
Evaluation
contact checkback
network
Demand for heat FA
OPEN or stage 2 ELV
ON/OFF
CLOSED or stage 3 ELV
X5-03 pin 1
3
2
X5-03 pin 2
X5-03 pin 3
Figure 46: Operating mode 1 with load controller
Special case: BACS for control via a contact.
External
load controller
Demand for heat FA
Evaluation
contact checkback
network
ON/OFF
or
stage 1
OPEN
or
stage 2
CLOSED
or
stage 3
Basic unit LMV51...
OPEN or stage 2 ELV
CLOSED or stage 3 ELV
GA
ON/OFF
X5-03 pin 1
3
2
X5-03 pin 2
X5-03 pin 3
Figure 47: Operating mode 1 with load controller – special case
Operating mode 1
(ExtLC X5-03)

Table of Contents

Related product manuals