EasyManua.ls Logo

Siemens MICROMASTER Vector - Block Diagram - MIDIMASTER Vector

Siemens MICROMASTER Vector
79 pages
Print Icon
To Next Page IconTo Next Page
To Next Page IconTo Next Page
To Previous Page IconTo Previous Page
To Previous Page IconTo Previous Page
Loading...
3. INSTALLATION – MIDIMASTER Vector English
© Siemens plc 1999 G85139-H1751-U529-D1
31
4/8/9
9
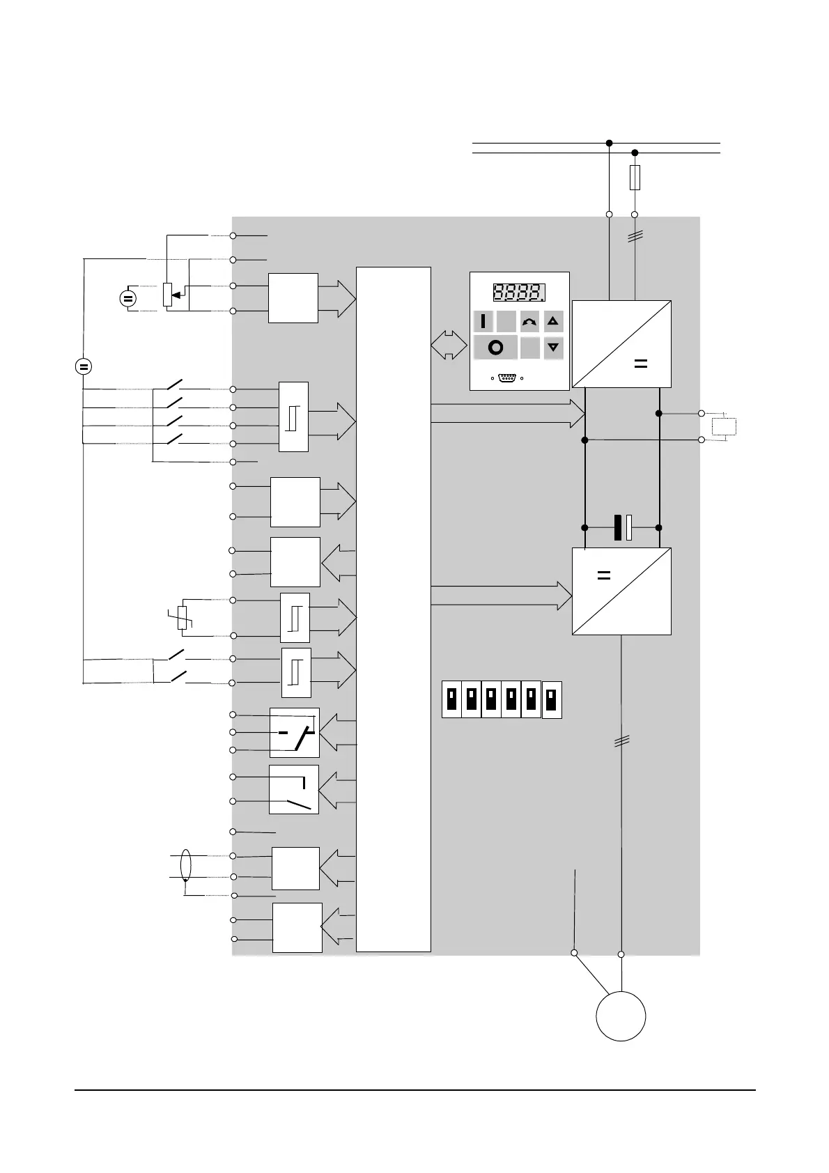
3.2.4 Block Diagram – MIDIMASTER Vector
1
7
CP
U
A
D
SI
RS48
5
3 AC 208 - 230 V
3 AC 380 - 500 V
3 AC 525 - 575 V
2
3
L1, L2, L
3
4
DC
-
15
2
7
2
6
25
2
4
2
3
2
2
21
2
0
1
3
1
3
1
4
5
PE
DC+
1
+10V
0V
O
R
PE
V
:
1
6
0 - 10 V
2 - 10 V
0 - 20 m
A
4 - 20 mA
I
:
AIN1
+
AIN1-
PE
³
4.7k
W
A2OUT
+
A1OUT
+
AIN2/PID -
RL2
N-
P
+
RS48
5
A
D
AIN2/PID
+
M
PE U, V, W
6
7
8
9
1
2
24 V
1
0
11
O
R
+15V
+
DIN1
DIN2
DIN
4
DIN
3
DIN
6
DIN
5
P
Jo
g
D
A
Motor
PTC
AOUT-
AOUT-
+5V
D
A
3 ~
~
EB
U
DIP Switches
(
Note:
Switch 6 not used)
6
5
2
4
3
1
1
8
1
9
RL1

Related product manuals