EasyManua.ls Logo

Siemens SAS61.33U - Functions and Control; 3-Position Control

Siemens SAS61.33U
61 pages
Print Icon
To Next Page IconTo Next Page
To Next Page IconTo Next Page
To Previous Page IconTo Previous Page
To Previous Page IconTo Previous Page
Loading...
28 / 60
Siemens Actuators SAS.., SAT.. for valves CE1P4041en
Smart Infrastructure Functions and control 2019-04-09
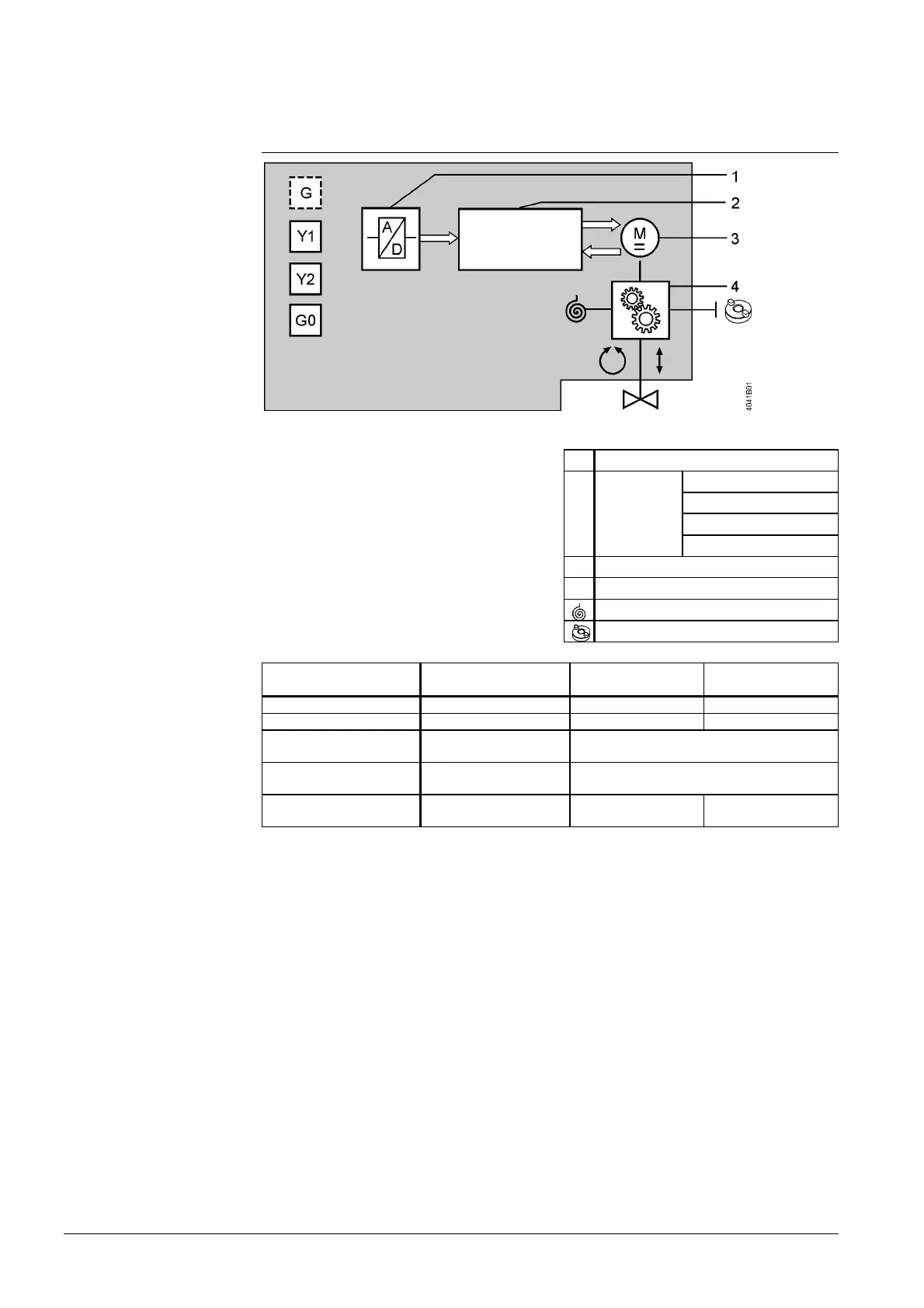
4 Functions and control
4.1 3-position control
Example: brushless DC motor with fail safe function
A 3-position signal drives the actuator
via connection terminals Y1 or Y2. The
required position is transferred to the
valve.
1 A/D conversion
2
Control
functions
Identification of seat
Control of direction
Motor control
Manual adjustment
3 Brushless DC motor
4 Gear train
Fail safe function
Manual adjuster
Positioning signal Stroke actuator
Control path valve
AàAB
Bypass valve
B à AB
Voltage at Y1 Actuator’s stem extends Opening Closing
Voltage at Y2 Actuator’s stem retracts Closing Opening
Voltage at Y1 and Y2
Actuator’s stem
maintains the position
Maintains the position
No voltage at Y1 and Y2
Actuator’s stem
maintains the position
Maintains the position
No voltage at Y1 and Y2;
with fail safe function
Actuator’s stem retracts Closing Opening
Observe information given in chapter 4.2.1 Positioning signal and flow
characteristic selection on page 31.
Internal control ensures very constant positioning times and determination of the
actuators position.
Note

Table of Contents

Other manuals for Siemens SAS61.33U

Related product manuals