EasyManua.ls Logo

Siemens SAS61.33U - Modulating Control

Siemens SAS61.33U
61 pages
Print Icon
To Next Page IconTo Next Page
To Next Page IconTo Next Page
To Previous Page IconTo Previous Page
To Previous Page IconTo Previous Page
Loading...
31 / 60
Siemens Actuators SAS.., SAT.. for valves CE1P4041en
Smart Infrastructure Functions and control 2019-04-09
4.2 Modulating control
The modulating positioning signal
drives the actuator steplessly. The
positioning signal range
(DC 0...10 V / DC 4...20 mA /
0...1000 Ω) corresponds in a linear
manner to the positioning range (fully
closed...fully open, or 0…100 %
stroke).
The actuator is controlled via terminal
Y or forced control Z (page 35). The
desired stroke is transferred to the
valve stem.
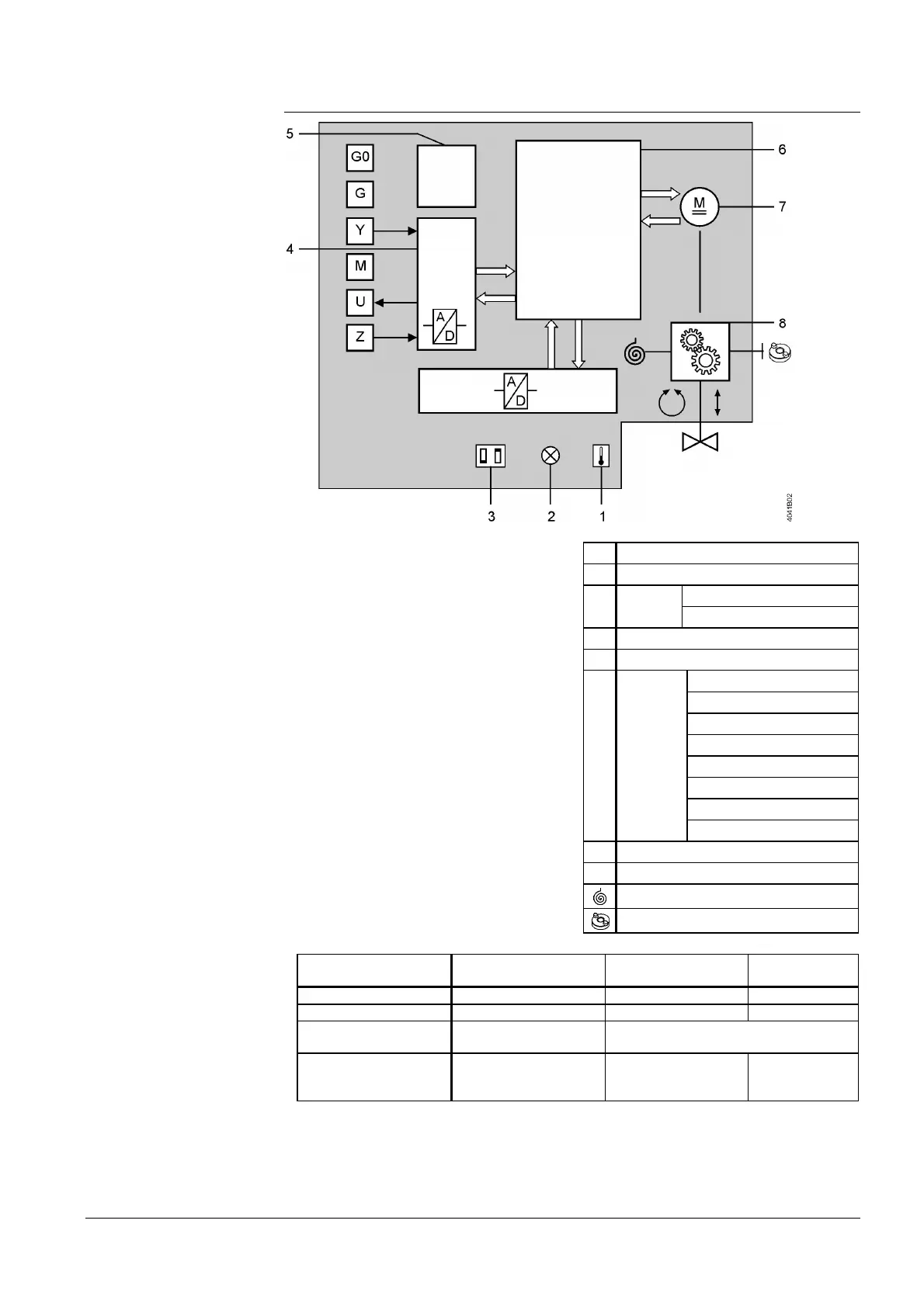
1 Calibration slot
2 LED (2 colors)
3
DIL
switches
Changeover of characteristic
Positioning signal
4 A/D conversion
5 Power supply
6
Control
functions
Identification of seat
Position control
Motor control
Detection of foreign bodies
Calibration
Forced control
Characteristics function
Manual adjustment
7 Brushless DC motor
8 Gear train
Fail safe function
Manual adjuster
Positioning signal Stroke actuator
Control path valve
AàAB
Bypass valve
B à AB
Signal Y, Z increasing Actuators stem extends Opening Closing
Signal Y, Z decreasing Actuator’s stem retracts Closing Opening
Signal Y, Z constant
Actuator’s stem
maintains the position
Maintains the position
No voltage at Y1 and
Y2; with fail safe
function
Actuator’s stem retracts Closing Opening
Observe the information given in chapter 4.2.1 Positioning signal and flow
characteristic selection on page 31.
Note

Table of Contents

Other manuals for Siemens SAS61.33U

Related product manuals