EasyManua.ls Logo

Sime 1R - Page 14

Sime 1R
Print Icon
To Next Page IconTo Next Page
To Next Page IconTo Next Page
To Previous Page IconTo Previous Page
To Previous Page IconTo Previous Page
Loading...
12
1.1 INTRODUCCION
Las calderas de hierro fundido “1R -
2R freestanding” son proyectadas y
construidas en conformidad con la
Directiva Europea CEE 92/42. Funcio-
nan con gasóleo, con una combustión
perfectamente equilibrada y los muy
alto rendimientos permiten conseguir
importantes ahorros de combustible.
Este manual lleva las instrucciones
para la instalación, el funcionamiento y
el mantenimiento de las calderas. Los
grupos térmicos “1R - 2R freestan-
ding” se suministran en tres bultos
separados: cuerpo caldera, la envol-
vente con una bolsita contenente los
documentos y el panel de mandos.
1 DESCRIPCION DE LA CALDERA
1R4 1R5 1R6 1R7 1R8 1R9
Potencia útil kW 39,2 52,0 64,8 74,0 84,0 93,3
kcal/h 33.700 44.700 55.700 63.600 72.200 80.200
Potencia nominal kW 44,7 59,1 73,4 83,1 93,8 103,4
kcal/h 38.400 50.800 63.100 71.500 80.700 88.900
P (profundidad) mm 440 520 595 670 750 825
Elementos 4 5 6 7 8 9
Presión máxima de servicio
bar 4 4 4 4 4 4
Contenido de agua l 28,5 33,0 37,5 42,0 46,5 51,0
Pérdidas de carga
Lado humos mbar 0,10 0,15 0,20 0,16* 0,22* 0,30*
Lado agua (t 1C) mbar 17,5 25,0 30,0 34,0 40,0 45,5
Presión cámara combust. mbar – 0,02 – 0,02 – 0,01 0,06 0,08 0,08
Depresión mín. chimenea mbar 0,12 0,17 0,21 0,22 0,30 0,38
Temperatura humos °C 225 225 225 217 209 201
Caudal humos m
3
n/h 41,4 54,7 68,0 77,7 88,0 97,6
Campo de regulación
Calefacción °C 30÷85 30÷85 30÷85 30÷85 30÷85 30÷85
Volume humos dm
3
33 37 42 46 50 55
Peso kg 201 229 261 293 325 357
1.3 DATOS TECNICOS
1.3.1 Caldera “1R”
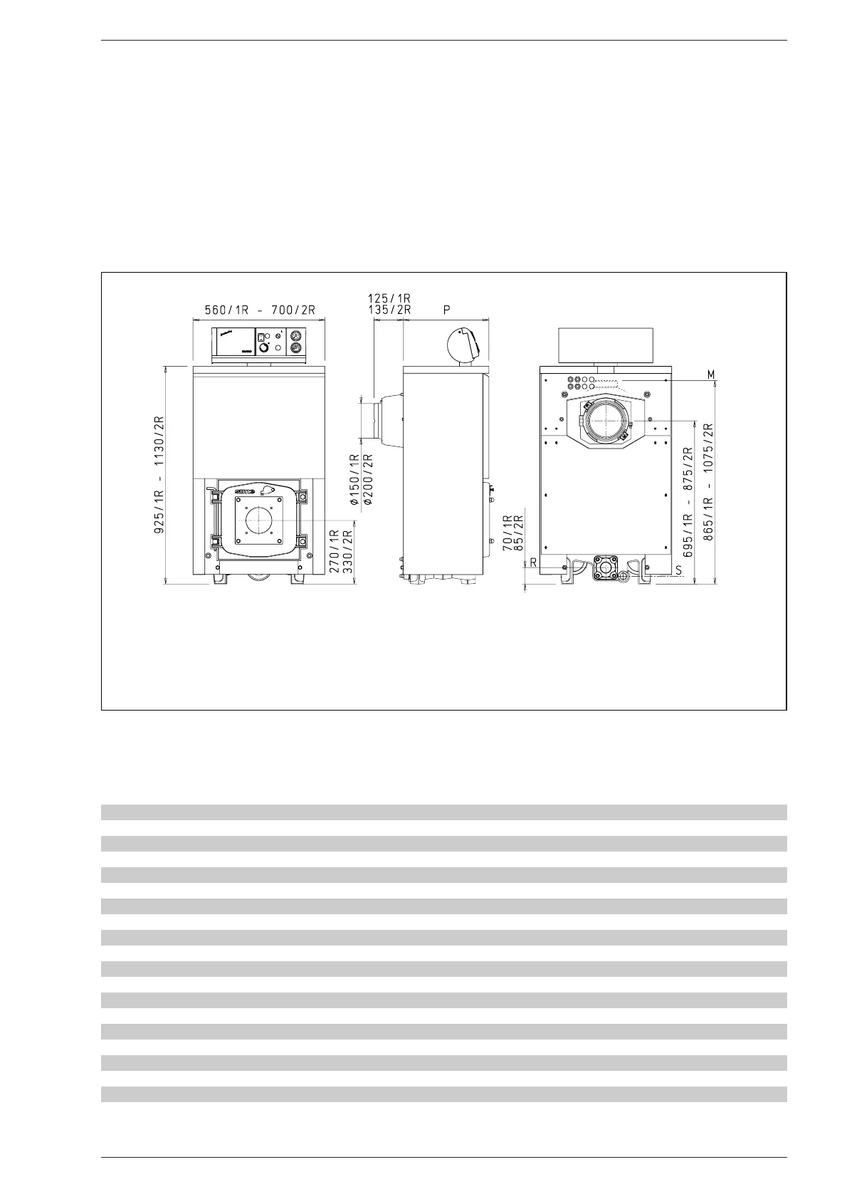
1.2 DIMENSIONES
Fig. 1
1R 2R
M Ida instalación 1
1
/
2
2”
R Retorno instalación 1
1
/
2
2”
S Vaciado caldera 3/4” 3/4”
* Sin turbuladores

Related product manuals