EasyManua.ls Logo

Sime Open.zip 25 BF TS - Page 9

Sime Open.zip 25 BF TS
Print Icon
To Next Page IconTo Next Page
To Next Page IconTo Next Page
To Previous Page IconTo Previous Page
To Previous Page IconTo Previous Page
Loading...
particolarmente rigidi, formazioni di
rugiada all’esterno della tubazione.
Con condotto di scarico posto all’ester-
no dell’edificio, o in ambienti freddi, è
necessario procedere alla coibentazione
per evitare mancate partenze del brucia-
tore. In questi casi, occorre prevedere
sulla tubazione un sistema di raccolta
condensa.
In caso di attraversamento di pareti
combustibili isolare il tratto di attraver-
samento del condotto scarico fumi con
coppella in lana di vetro sp. 30 mm, den-
sità 50 kg/m
3
.
La lunghezza massima complessiva, otte-
nuta sommando le lunghezze delle tuba-
zioni di aspirazione e scarico, viene deter-
minata dalle perdite di carico dei singoli
accessori inseriti e non dovrà risultare
superiore a 7,6 mm H2O nella vers. “25
BF TS” - 9 mm H2O nella vers. “30 BF TS”.
Per le perdite di carico degli accessori fare
riferimento alla Tabella 2.
Per realizzare questa tipologia di scarico
viene fornito un kit condotti separati cod.
8089904. Per il montaggio dei componenti
del kit vedere le istruzioni riportate al punto
2.7.1. Per il collegamento alla caldaia e le
diverse tipologie di modalità di scarico vede-
re fig. 8/a.
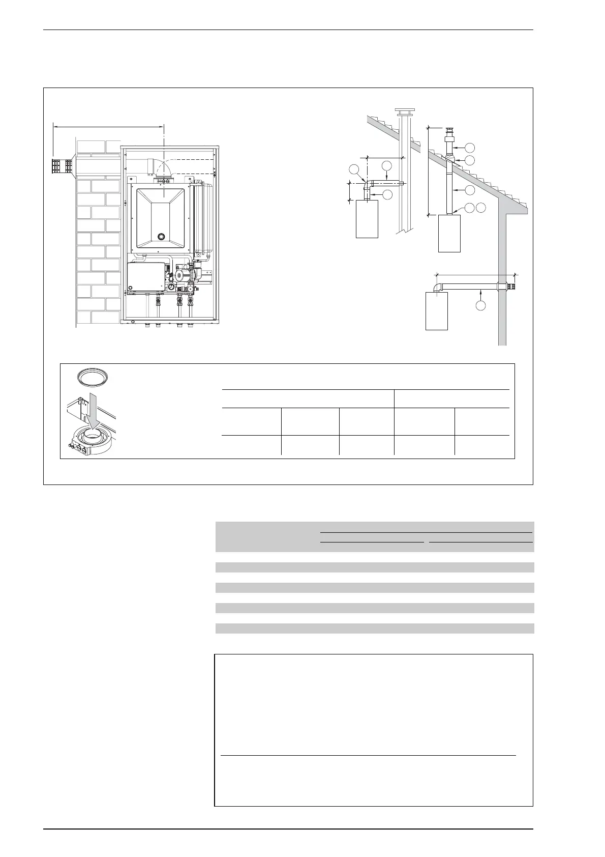
7
max 3,5 m vers.
"25"
max 3 m vers.
"30 - 35"
Fig. 8
C12
C32
C42
3
1
2
7
6
4
3
2
min 1,3 m - max 5 m
8
x
y
x + y = max 3,5 m "25"
x + y = max 3,0 m "30-35"
max 3,5 m "25"
max 3,0 m "30-35"
LEGENDA
1 Kit condotto coassiale
cod. 8084811
2 a Prolunga L. 1000 cod. 8096103
2 b Prolunga L. 500
cod. 8096102
3 Prolunga verticale L. 200
cod. 8086908
4 Curva supplementare a 90°
cod. 8095801
6 Tegola con snodo
cod. 8091300
7 Terminale uscita tetto
L. 1284 cod. 8091200
8 Recupero condensa vert.
L. 200 cod. 8092803
Nelle tipologie di scarico
C12-C42 utilizzare i dia-
frammi ø 86 e ø 87,5
solo quando la lunghezza
del condotto coassiale è
inferiore a 1 metro.
TIPOLOGIA DI SCARICO COASSIALE
ATTENZIONE:
L’inserimento di ogni curva supplementare a 90°
riduce il tratto disponibile di 0,90 metri.
L’inserimento di ogni curva supplementare a 45°
riduce il tratto disponibile di 0,45 metri.
L’inserimento del recupero condensa (8) é consi-
gliabile per tratti verticali superiori a 2,5 metri e
limita la lunghezza max a 4 metri.
Nella tipologia di scarico C32 utilizzare, in funzione della lunghezza del condotto e
senza curve aggiunte, i diaframmi ø 86 e ø 87,5 nel seguente modo:
Installazioni con la prolunga Installazioni con il recupero
verticale L. 200 cod. 8086908 condensa cod. 8092803
Diaframma Diaframma Senza Diaframma Nessun
ø 86 ø 87,5 diaframma ø 87,5 diaframma
(cod. 6028623) (cod. 6028624) (cod. 6028624)
L min = 1,3 m L min = 2,5 m L min = 4 m L max = 2,5 m L min = 2,5 m
L max = 2,5 m L max = 4 m L max = 5 m L max = 4 m
TABELLA 2
Accessori ø 80 Perdita di carico (mm H
2O)
25 BF TS 30 BF TS
Aspirazione Scarico Uscita tetto Aspirazione Scarico Uscita tetto
Curva a 90° MF 0,30 0,40 0,30 0,45
Curva a 45° MF 0,20 0,30 0,20 0,35
Prolunga L. 1000 (orizzontale) 0,20 0,30 0,20 0,35
Prolunga L. 1000 (verticale) 0,30 0,20 0,30 0,25
Terminale di scarico 0,30 0,35
Terminale di aspirazione 0,10 0,10
Collettore 0,20 0,30
Terminale uscita tetto L.1390 0,50 0,55
Tee recupero condensa 1,00 1,05
Esempio di calcolo di installazione consentita nella vers. “25 BF TS” in quanto la somma
delle perdite di carico dei singoli accessori inseriti è inferiore a 7,6 mm H
2O:
Aspirazione Scarico
8 metri tubo orizzontale ø 80 x 0,20 1,60
8 metri tubo orizzontale ø 80 x 0,30 2,40
2 curve 90° ø 80 x 0,30 0,60
2 curve 90° ø 80 x 0,40 0,80
1 terminale ø 80 0,10 0,30
Perdita di carico totale 2,30 + 3,50 = 5,8
mm H2O
Con questa perdita di carico totale occorre togliere dal diaframma aspirazione i settori
dal numero 1 al numero 7.

Table of Contents

Related product manuals