EasyManua.ls Logo

Sime Open.zip 25 BF TS - Page 10

Sime Open.zip 25 BF TS
Print Icon
To Next Page IconTo Next Page
To Next Page IconTo Next Page
To Previous Page IconTo Previous Page
To Previous Page IconTo Previous Page
Loading...
2.8 ALLACCIAMENTO ELETTRICO
Per l’alimentazione elettrica, che dovrà
essere effettuata con tensione monofase
230V-50Hz, utilizzare il cavo tripolare a cor-
redo della caldaia che andrà collegato ad un
interruttore generale protetto da fusibili,
con distanza tra i contatti di almeno 3 mm.
In caso di sostituzione detto cavo dovrà
essere richiesto alla SIME.
NOTA: L’apparecchio deve essere collegato
a un efficace impianto di messa a terra.
La SIME declina qualsiasi responsabilità
per danni a persone o cose derivanti dalla
mancata messa a terra della caldaia.
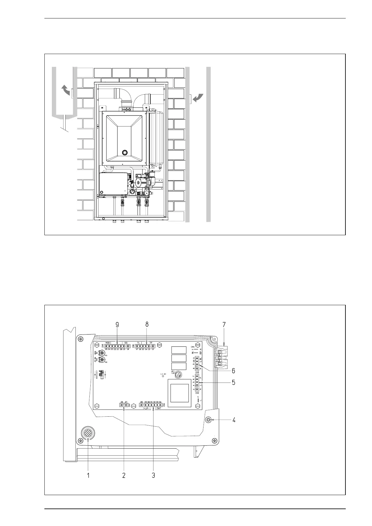
2.8.1 Quadro elettrico (fig. 9)
Per accedere al quadro disinserire l’alimen-
tazione elettrica e svitare le viti che fissano
il coperchio alla scatola che racchiude i col-
legamenti. Il quadro può essere inclinato
verso il basso togliendo le due viti inferiori
che lo fissano al telaio.
8
scarico
condensa
LEGENDA
1 Pulsante sblocco apparecchiatura
2 Connettore cablato CN7
3 Connettore cablato CN4
4 Segnalatore mancanza acqua
5 Connettore cablato CN2
6 Connettore cablato CN3
7 Collegamento comando remoto
8 Connettore cablato CN6
9 Connettore cablato CN5
Fig. 9
TIPOLOGIA DI SCARICO SEPARATI
C12 Scarico e aspirazione a parete sottoposti
alle stesse condizioni di vento. Se con con-
dotti separati i terminali devono essere
inscritti in un quadrato di 50 cm di lato.
C32 Scarico e aspirazione a tetto sottoposti alle
stesse condizioni di vento, ma solo con ter-
minale a tetto concentrico.
C42 Scarico e aspirazione in canne fumarie
comuni separate, ma sottoposte alle stesse
condizioni di vento.
C52 Scarico e aspirazione separati a parete o a
tetto e comunque in zone a pressione diver-
se, ma non su pareti opposte.
C82 Scarico in canna fumaria singola o comune e
aspirazione a parete.
Fig. 8/a

Table of Contents

Related product manuals