EasyManua.ls Logo

Sipromac 350 - Page 26

Sipromac 350
57 pages
Print Icon
To Next Page IconTo Next Page
To Next Page IconTo Next Page
To Previous Page IconTo Previous Page
To Previous Page IconTo Previous Page
Loading...
005E0832
SBU
1
M
350 & 350D
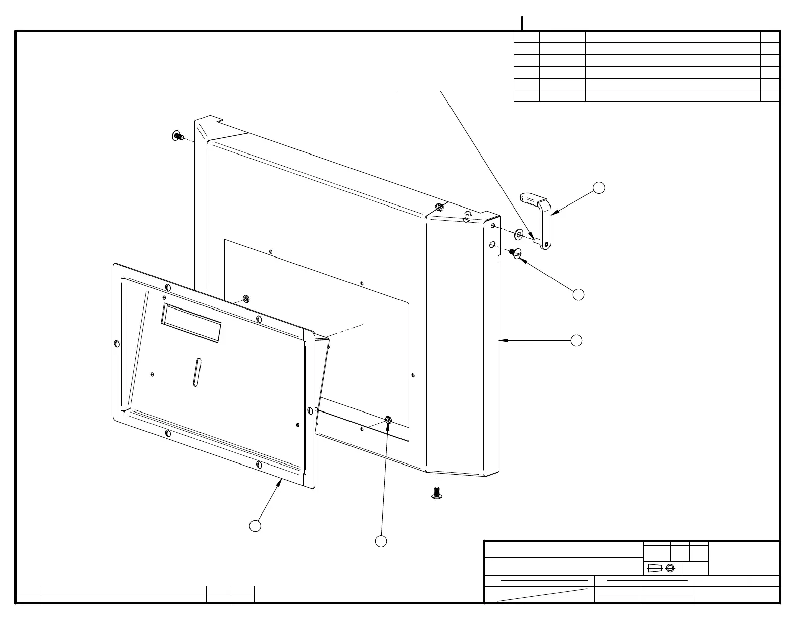
MC-40 FRONT PANEL ASSEMBLY
15-02-23
005E0832
MACHINE
PART
ITEM
MAT.
CNC
DWG BY
APP. BY
DATE
DATE
QTY.
DEPT.
SIPROMAC
ST-GERMAIN DE GRANTHAM
QUEBEC CANADA
DEPT. TOL.
USINAGE
TOLERIE
SOUDAGE
METRIC
± 0.1
±
0.5
±
0.
5
INCH
± 0.004"
±
0.020"
±
0.020"
N.T.S.
NO.
LET.
MODIFICATION
DATE
INT.
ITEM PART # DESCRIPTION QT.
1 001E3123 FRONT PANEL 1
2 005C0583 MC-40 CONTROL BOARD 1
3 004B1651 COVER HOLD DOWN ASS'Y 1
4 051-0571 NUT #10-24 S/S 11
5 051-01865 SCREW 1/4-20x 1/2"TRUSS SLOT SS 4
INSTALLER POUR QUE LA BARRURE PUISSE BOUGER LIBREMENT SANS JEUX AXIAL.
INSTALL SO THAT THE LOCK CAN TURN WITHOUT AXIAL PLAY.
3
5
1
4
2

Related product manuals