EasyManua.ls Logo

Siterwell GS508C - Ceiling and Wall Mounting; Ceiling Mounting Preference; Mobile Home Ceiling Mounting; Wall Mounting Guidelines

Siterwell GS508C
7 pages
Print Icon
To Next Page IconTo Next Page
To Next Page IconTo Next Page
To Previous Page IconTo Previous Page
To Previous Page IconTo Previous Page
Loading...
Document NO.:RD-508C-39-001
Version: E 20170920
- 5 -
and spread horizontally. Mounting the smoke alarm on the
ceiling in the center of the room places it closest to all
points in the room. Ceiling mounting is preferred in
ordinary residential construction.
For mobile home installation, select locations carefully to
avoid thermal barriers that may form at the ceiling. For
more details, see
MOBILE HOME INSTALLATION below.
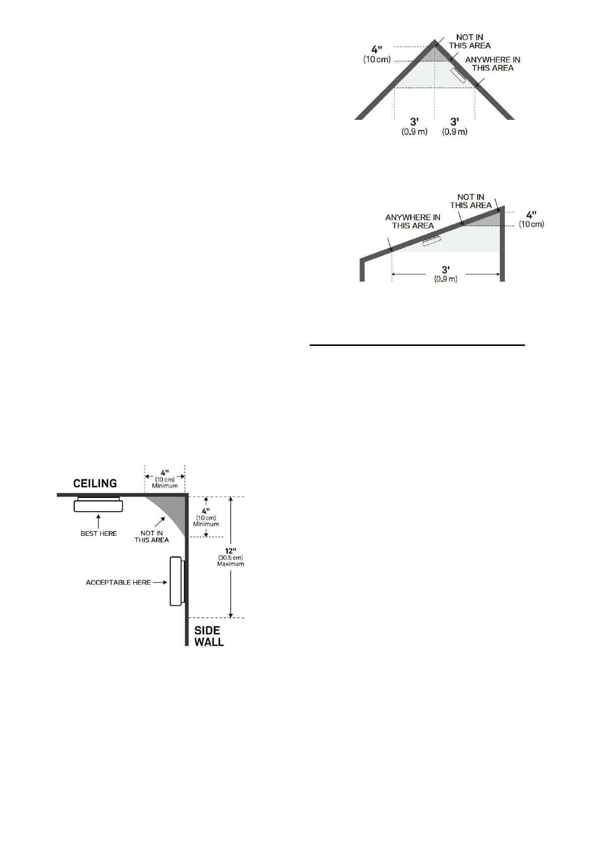
When mounting an alarm on the ceiling, locate it at a
minimum of 4" (10cm) from the side wall (Refer to
Diagram 2).
When mounting the alarm on the wall, use an inside wall
with the top edge of the alarm at a minimum of 4" (10cm)
and a maximum of 12" (30.5cm) below the ceiling (Refer
to Diagram2).
Put smoke alarms at both ends of a bedroom hallway or
large room if the hallway or room is more than 30 ft (9.1 m)
long.
Install Smoke Alarms on sloped, peaked or cathedral
ceilings at or within 3 ft (0.9m) of the highest point
(measured horizontally). NFPA 72 states: “Smoke alarms in
rooms with ceiling slopes greater than 1 ft in 8 ft (.3m in
2.4m) horizontally shall be located on the high side of the
room.” NFPA 72 states: “A row of alarms shall be spaced
and located within 3 ft (0.9m) of the peak of the ceiling
measured horizontally” (Refer to Diagram 3).
Diagram 2
Diagram 3
MOBILE HOME INSTALLATION
Modern mobile homes have been designed and built to be
energy efficient. Install smoke alarms as recommended above
(refer to RECOMMENDED LOCATIONS and diagram 2
and 3).
In older mobile homes that are not well insulated compared
to present standards, extreme heat or cold can be transferred
from the outside to the inside through poorly insulated walls
and roof. This may create a thermal barrier which can prevent
the smoke from reaching an alarm mounted on the ceiling. In
such units, install the smoke alarm on an inside wall with the
top edge of the alarm at a minimum of 4" (10cm) and a
maximum of 12" (30.5cm) below the ceiling (see Diagram
2 ).
If you are not sure about the insulation in your mobile home,
or if you notice that the outer walls and ceiling are either hot
or cold, install the alarm on an inside wall. For minimum
protection, install at least one alarm close to the bedrooms.
For additional protection, see SINGLE FLOOR PLAN in
Diagram 4 and MULTIPLE FLOOR PLAN in Diagram 5.
WARNING
: TEST YOUR SMOKE ALARM OPERATION
AFTER RV OR MOBILE HOME VEHICLE HAS BEEN IN
STORAGE, BEFORE EACH TRIP AND AT LEAST ONCE A
WEEK DURING USE.

Related product manuals