EasyManua.ls Logo

Skil 3315 - Miter Cut

Skil 3315
64 pages
Print Icon
To Next Page IconTo Next Page
To Next Page IconTo Next Page
To Previous Page IconTo Previous Page
To Previous Page IconTo Previous Page
Loading...

3>/<?>
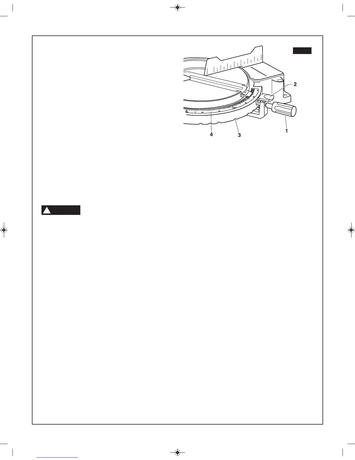
I :6A2?0BA6@:.12.AH/2C29.;1.;F:6A2?.;4926;A52
?
.;423?<:H923AA<H?645A
I '52:6A2?@0.926@0.@A6;<;A52/.@23<?2.@F?2.16;4
I $<@6A6C212A2;A@5.C2/22;=?<C61213<?3.@A.;1.00B?.A2
:6A2?6;4.AHHHH.;1H923A.;1?645A
I '52?2 6@ .9@< . 0?<D; :<916;4 12A2;A .A H @22
BAA6;4?<D;!<916;43<? :<?26;3<?:.A6<;=.42@ 
.;1
Follow these instructions for making your miter
cut:
 <<@2;:6A2?9<088;</$?2@@A52:6A2?12A2;AA?6442?
.;1:<C2A52@.DA<A5212@6?21.;492B@6;426A52?A52
12A2;A@ <? A52:6A2?@0.92  '645A2;:6A2?9<088;</
64B?2
 $?<=2?9F =<@6A6<; D<?8=6202 !.82 @B?2 D<?8=6202 6@
09.:=2136?:9F.4.6;@AA52A./92.;1A5232;02
(@2 09.:=6;4 =<@6A6<; A5.A 1<2@ ;<A
6;A2?32?2 D6A5 <=2?.A6<;23<?2@D6A056;4
<;9<D2?52.1.@@2:/9FA<:.82 @B?2 09.:= 092.?@ 4B.?1
.;152.1.@@2:/9F
 0A6C.A2A52@D6A05 <D2?A5252.1.@@2:/9F.;1:.82
F<B?0BA
 *.6A B;A69 /9.12 0<:2@ A< . 0<:=92A2 @A<= /23<?2
?2AB?;6;452.1 .@@2:/9F A< A52 ?.6@21 =<@6A6<; .;1<?
?2:<C6;4D<?8=6202
$+A!:/<+>398=

WARNING
!
&!$!$.42

Table of Contents

Related product manuals