EasyManua.ls Logo

Skil 3315 - Safety; Connection To A Power Source

Skil 3315
64 pages
Print Icon
To Next Page IconTo Next Page
To Next Page IconTo Next Page
To Previous Page IconTo Previous Page
To Previous Page IconTo Previous Page
Loading...
$+0/>C
L% "&'%('#"&MK.69B?2A<3<99<DA52&',%( &612;A63621/F( 'I@F:/<996@A21
 #*.;1<A52?@.32AF=?20.BA6<;@:.F?2@B9A6;@2?6<B@=2?@<;.96;7B?F
Motor Specifications
; A52 2C2;A <3 . :.93B;0A6<; <? /?2.81<D; 4?<B;16;4
=?<C612@ . =.A5 <3 92.@A ?2@6@A.;02 3<? 2920A?60 0B??2;A A<
?21B02A52?6@8<32920A?60@5<08'56@A<<96@2>B6==21D6A5.;
2
920A?600<?15.C6;4.;2>B6=:2;A4?<B;16;40<;1B0A<?.;1.
4?<B;16;4=9B4'52 =9B4 :B@A /2=9B44216;A< .:.A056;4
<BA92A A5.A6@=?<=2?9F6;@A.9921.;14?<B;1216; .00<?1.;02
D
6A5 .99 9<0.90<12@ .;1 <?16;.;02@ '56@ @.D 6@ D6?21 3<?
<=2?.A6<;<;C<9A@G.9A2?;.A6;40B??2;A23<?2
0<;;20A6;4A52:<A<?0<?1A<=<D2?@<B?02:.8202?A.6;A52
@D6A056@6;A52L#M=<@6A6<;.;1/2@B?2A522920A?600B??2;A
6@<3A52@.:205.?.0A2?6@A60@.@@A.:=21<;A52:6A2?@.D
;.:2=9.A2
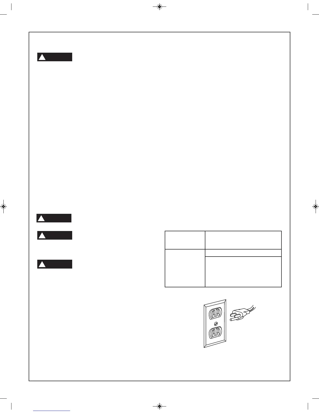
Connection To A Power Source
'56@ :.056;2:B@A /2 4?<B;121D5692 6;B@2A<=?<A20AA52
<=2?.A<?3?<:2920A?60@5<08
$9B4 =<D2? 0<?1 6;A< . ) =?<=2?9F 4?<B;121AF=2
<BA92A=?<A20A21/F..:=1B.9292:2;AA6:2129.F3B@2<?
06?0B6A/?2.82?
"<A.99<BA92A@.?2=?<=2?9F4?<B;1213F<B.?2;<A@B?2A5.A
F<B?<BA92A.@=60AB?21<;A56@ =.42 6@ =?<=2?9F 4?<B;121
5.C26A0520821/F.>B.9636212920A?606.;
'<.C<612920A?60@5<08 1< ;<AA<B05A52
:2A.9=?<;4@<;A52=9B4D52;6;@A.996;4<?
?2:<C6;4A52=9B4A<<?3?<:A52<BA92A
.69B?2A<=?<=2?9F 4?<B;1A56@ =<D2? A<<9
0.;0.B@22920A?<0BA6<;<?@2?6<B@@5<08
=.?A60B9.?9FD52; B@21;2.? :2A.9=9B:/6;4 <?<A52? :2A.9
</720A@3@5<0821F<B? ?2.0A6<;0<B91 0.B@2F<B?5.;1@A<
56AA52A<<9
3=<D2? 0<?16@D<?; 0BA<?1.:.4216;
.;F D.F5.C2 6A?2=9.0216::216.A29FA<
.C<61@5<08<?36?25.G.?1
,<B?B;6A6@3<?B@2<;C<9A@6A5.@.=9B4A5.A9<<8@9682
A52<;2@5<D;<;A56@=.42
'56@ =<D2? A<<9 6@ 2>B6==21 D6A5 . 0<;1B0A<? 0<?1 .;1
4?<B;16;4 AF=2 =9B4 .==?<C21/F(;12?D?6A2?@ ./<?.A<?62@
.;1 A52 .;.16.; &A.;1.?1@ @@<06.A6<; '52 4?<B;1
0<;1B0A<? 5.@ . 4?22; 7.082A .;1 6@ .AA.0521 A< A52 A<<9
5<B@6;4.A<;22;1.;1A<A524?<B;1=?<;46;A52.AA.05:2;A
=9B4.AA52<A52?2;1
3A52<BA92AF<B.?2=9.;;6;4A<B@23<?A56@=<D2?A<<96@<3A52
AD<=?<;4 AF=2 # "#' %!#) #% '% '
%#("" $%#""",!""% .C2. >B.963621
2920A?606.; ?2=9.02 A52 '*#=?<;4<BA92A D6A5 . =?<=2?9F
4?<B;121'%=?<;4<BA92A
:=?<=2? 0<;;20A6<;<3A52 2>B6=:2;A4?<B;16;40<;1B0A<?
0.; ?2@B9A6; . ?6@8 <3 2920A?60 @5<08 '52 0<;1B0A<? D6A5
6;@B9.A6<;5.C6;4.;<BA2?@B?3.02A5.A6@4?22;D6A5<?D6A5<BA
F299<D @A?6=2@ 6@ A52 2>B6=:2;A0<;1B0A<? 3 ?2=.6? <?
?
2=9.02:2;A<3A522920A?600<?1 <?=9B46@;202@@.?F1<;<A
0<;;20AA522>B6=:2;A4?<B;16;40<;1B0A<?A<.96C2A2?:6;.9
5208D6A5.>B.963621 2920A?606.;<?@2?C602 =2?@<;;29 63 A52
4?<B;16;46;@A?B0A6<;@ .?2;<A0<:=92A29FB;12?@A<<1<?636;
1<B/A.@A<D52A52?A52A<<96@=?<=2?9F4?<B;121
Extension Cords
9D.F@B@2=?<=2?2EA2;@6<;0<?1'52B@2<3.;F2EA2;@6<;
0<?1 D699 0.B@2 @<:2 9<@@ <3 =<D2? '< 822= A56@ A< .
:6;6:B:.;1A<=?2C2;A<C2?52.A6;4.;1:<A<?/B?;<BAB@2
A52A./92/29<DA<12A2?:6;2A52:6;6:B:D6?2@6G2*
2EA2;@6<; 0<?1(@2 <;9F D6?22EA2;@6<; 0<?1@D56055.C2
=?<;44?<B;16;4AF=2=9B4@ .;1 =<92?202=A.092@D5605
.002=AA52 A<<9O@ =9B4 !.82 @B?2F<B? 2EA2;@6<;0<?16@ 6;
4<<10<;16A6<;
I %2=9.02 1.:.4210<?1@6::216.A29F (@2<31.:.421
0<?1@0.;@5<08/B?;<?2920A?<0BA2
I 3.;2EA2;@6<;0<?1 6@;202@@.?F.0<?1D6A5.12>B.A2
@6G2 0<;1B0A<?@ @5<B91 /2 B@21 A< =?2C2;A 2E02@@6C2
C<9A.421?<= 9<@@<3 =<D2?<? <C2?52.A6;4 '52 A./92
@5<D@A520<??20A@6G2A<B@212=2;16;4<;0<?192;4A5
.;1;.:2=9.A2.:=2?.42?.A6;4<3A<<936;1<B/AB@2
A52;2EA52.C62?4.B429D.F@B@2( .;1&96@A21
2EA2;@6<;0<?1@
L$'%$ $%#&%! $M
%#!!"&-&#+'"&#"#%&
'<<9O@ )<9A'<<9@
:=2?2 <?1 2;4A56;22A
%.A6;4 <?1&6G26;*
   
    
    
    
   JJ
"#'N '52@:.992?A524.B42;B:/2?A5252.C62?A520<?1
WARNING
!
DANGER
!
DANGER
!
DANGER
!
&!$!$.42

Table of Contents

Related product manuals