EasyManua.ls Logo

Skil 3400 - Using The Miter Gauge

Skil 3400
64 pages
Print Icon
To Next Page IconTo Next Page
To Next Page IconTo Next Page
To Previous Page IconTo Previous Page
To Previous Page IconTo Previous Page
Loading...
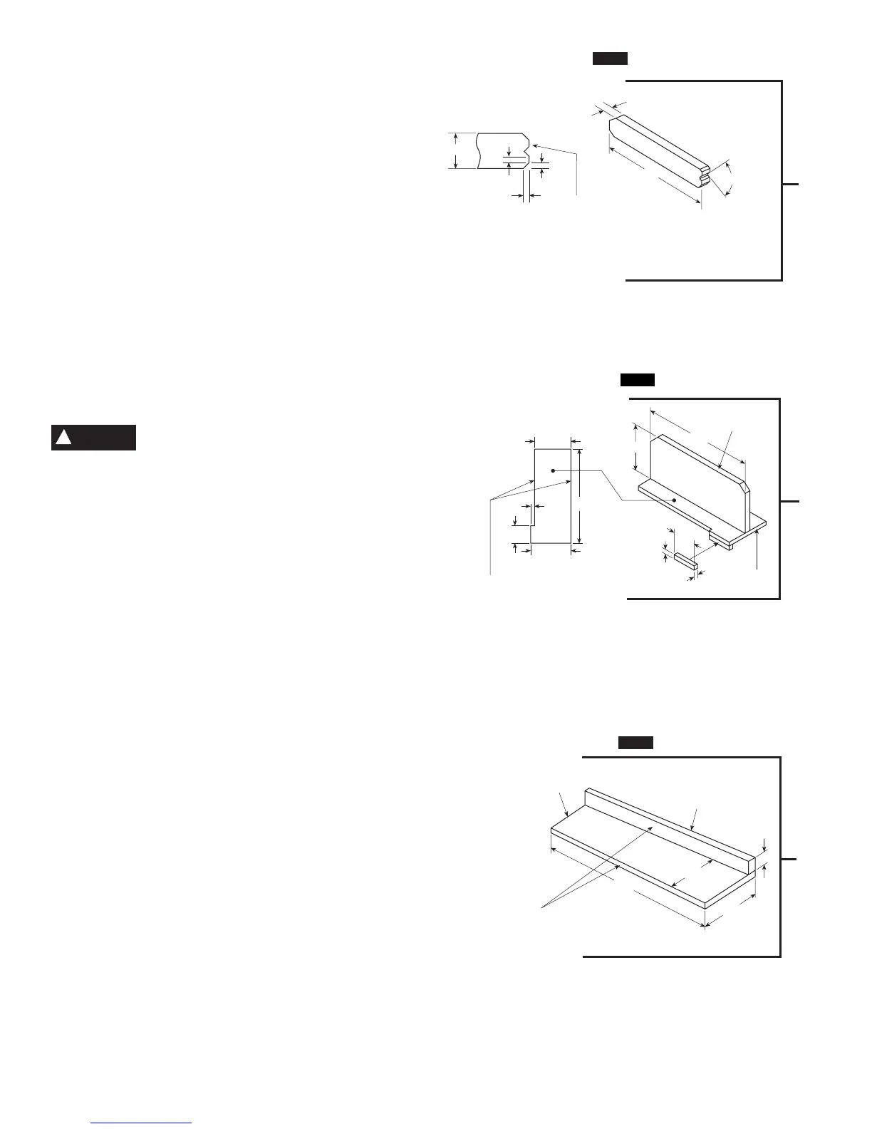
Push Stick and Push Block
Make the Push Stick 1 using a piece of 1 x 2 as shown (Fig. 32).
Make the Push Block 2 using pieces of 3/8" plywood 3 and 3/4"
hardwood 4 (Fig. 33).
The small piece of wood, 3/8" x 3/8" x 2-1/2", should be GLUED
to the plywood DO NOT USE NAILS. This is to prevent dulling
the sawblade in the event you mistakenly cut into the Push Block.
Position the handle in the center of the plywood and fasten
together with glue and woodscrews.
Auxiliary Fence
Make one using pieces of 3/8" plywood 3 and 3/4" hardwood 4.
Fasten together with glue and woodscrews (Fig. 34).
NOTE: Since the Push Block 2 is used with the Auxiliary Fence 5,
the 4-3/4" dimensions must be held identical on both the pieces.
Using The Miter Gauge
CROSSCUTTING, MITER CUTTING, BEVEL CUTTING, COM-
POUND MITER CUTTING and when RABBETING across the end
of a narrow workpiece, the MITER GAUGE is used.
For your own safety, always observe the following
safety precautions in addition to the safety
instructions on Pages 2, 3, 4 & 5.
1. Never make these cuts freehand (without using the miter gauge
or other auxiliary devices) because the blade could bind in the cut
and cause a KICKBACK or cause your fingers or hand to slip into
the blade.
2. Always tighten the miter gauge handle securely when in use.
3. Remove rip fence from table during any operations which utilize
the miter gauge.
4. Make sure blade guard is installed for all thru-sawing
operations (when sawblade cuts entirely thru the thickness of the
workpiece). Replace guard IMMEDIATELY after completion of
dadoing, molding or rabbeting cuts.
5. Have blade extend approximately 1/8" above top of workpiece.
Additional blade exposure would increase the hazard potential.
6. Do not stand directly in front of the blade in case of a
THROWBACK (small cut-off piece caught by the back of the blade
and thrown toward the operator). Stand to either side of the blade.
7. Keep your hands clear of the blade and out of the path of the
blade.
8. If blade stalls or stops while cutting, TURN SWITCH OFF before
attempting to free the blade.
9. Do not reach over or behind the blade to pull the workpiece
through the cut to support long or heavy workpieces to
remove cut-off pieces of material or FOR ANY OTHER REASON.
10. Do not pick up small pieces of cut-off material from the table.
REMOVE them by pushing them OFF the table with a long stick.
Otherwise they could be thrown back at you by the rear of the
blade.
11. Do not remove small pieces of cut-off material that may
become TRAPPED inside the blade guard while the saw is
RUNNING. THIS COULD ENDANGER YOUR HANDS or cause a
KICKBACK. Turn the saw OFF. After the blade has stopped
turning, lift the guard and remove the piece.
12. If workpiece is warped, place the CONCAVE side DOWN. This
will prevent it from rocking while it is being cut.
40.
WARNING
!
3
4
THESE EDGES
MUST BE PARALLEL
CES BORDS DOIVENT
ÊTRE PARALLÈLES
ESTOS BORDES DEBEN
SER PARALELOS
NOTE: All dimensions in inches.
REMARQUE : Toutes les dimensions sont en pouces.
NOTA: Todas las dimensiones están en pulgadas.
THIS FACE AND
THIS EDGE MUST
BE PARALLEL
CETTE FACE ET CE
BORD DOIVENT ÊTRE
PARALLÈLES
ESTA CARA Y ESTE
BORDE DEBEN SER
PARALELOS
4
3
45° NOTCH
ENCOCHE À
45°
MUESCA DE
45°
FIG. 34
1
2
WORKPIECE
END
EXTRÉMITÉ
CONTACT AVEC
LOUVRAGE
EXTREMO DE
LA PIEZA DE
TRABAJO
FIG. 32
FIG. 33
1/4"
1/4"
1/4"
1-1/2"
3/4"
15"
4-3/4"
5"
12"
12"
2-1/2"
3/8" 3/8"
3/8"
5-1/8"
2-1/2"
1-3/4"
5-1/2"
4-3/4"
19"
5

Table of Contents

Related product manuals